11 584 416 Р 143 100 $ или 123 500

Информация о квартире

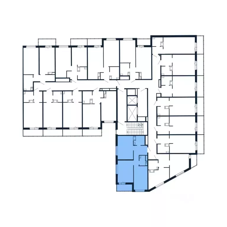
56 м2
Площадь
20 м2
Кухня
2
Комнаты
12
Этаж
20
Этажность

Дополнительная информация

Тип дома
монолит
Развернуть
Агент
+7 (923) 895-64-41
Начать чат с агентом

2-к кв. Ленинградская область, Мурино Всеволожский район, Урбанист ...

2-комн. квартира от застройщика с отделкой в ЖК Аквилон RIVA на 12 этаже. Общая площадь: 56.95 кв.м., площадь просторной кухни-столовой: 20.55 кв.м. Высота потолков 2.73 м. Дом монолитный, трехподъездный, переменной этажности, от 16 до 20 этажей. Квартира находится в 1-й секции высотой 20 этажей в корпусе 1. На этаже 15 квартир. В подъезде 2 пассажирских и 1 грузовой лифт. Окончание строительства - 4 квартал 2027 года. Оформление сделки по договору долевого участия. В шаговой доступности от дома имеется станция метро (расстояние по прямой) Девяткино (1.9 км). ЖК Аквилон RIVA - жилой комплекс комфорт класса у метро Девяткино от Группы Аквилон В самом сердце двора раскинулся собственный водоём — не просто украшение, а часть вашей повседневной жизни. Летом — это благоустроенная набережная для прогулок, отдыха в тени деревьев и тихих вечеров у воды. А зимой водоём превращается в залитый каток — место, где звучит смех, скользят коньки и рождаются семейные традиции. Здесь каждое время года раскрывает свой характер.Зона уединения:Места для занятия йогой и медитаций Мульти скворечники Качели с подсветкой для уютных бесед Высокие скамейки на набережной для отдыха и чтения на свежем воздухе Активная зона:Развивающие детские площадки для разных возрастов Спортивные площадки с зоной Ворк-аут, Столы для настольного тенниса Площадка для пляжного волейбола ПреимуществаУвеличенные окна с заполнением аргоном Корзины под кондиционеры Сити-боксы вместо балконов Безбарьерная среда Бесшумные скоростные лифты Контроль доступа на территорию и видеонаблюдение Отделка квартирЧистовая отделка в трех цветовых решениях: Sand, Terra и Graphite Дозаказ для любой квартиры Стандарты Группы Аквилон для вашей комфортной жизниThermo-S экономия на коммунальных платежах за счет дополнительно утепленных стен, кровли и цоколя. Энергоэффективные окна с селективным покрытием и аргоновым заполнением Soundstop - дополнительная шумоизоляция внутренних перегородок и межэтажных перекрытий, шумозащитные окна, малошумные лифтыLight-in - в квартирах устанавливаются широкоформатные окна, увеличены на 30 . Высота подоконников на уровне 60 см от пола.Vent-in - в каждой комнате есть клапаны индивидуальной вентиляции, которые обеспечивают приток свежего воздуха с улицы. inHOME умный дом в каждой квартире Интеллектуальная цифровая система, которая позволит дистанционно решать бытовые вопросы, управлять квартирой и экономить на оплате коммунальных услуг. В состав inHOME входят: IP-домофон, Face key, умные счетчики, датчики протечки, дистанционное отключение розеток, и т.д. Паркинг Отдельно стоящий 3-х уровневый паркинг Электрозарядки на территории ЖК Локациям. Девяткино 5 минут Центр города - 20 минут КАД 5 минут. Zmumbo

Читать полностью
    Позвонить Написать
    11 584 416 Р143 100 $ или 123 500
    Агент
    +7 (923) 895-64-41
    Начать чат с агентом
    Похожие предложения в Мурино
    3-к кв. Ленинградская область, Мурино Всеволожский район, Урбанист ... - Фото 1
    3-к кв. Ленинградская область, Мурино Всеволожский район, Урбанист ... - Фото 2
    3-комнатная квартира, общая площадь 56м²

    Продаётся 3-комнатная квартира в строящемся доме (Корпус 1), срок сдачи: IV-кв. 2027, общей площадью 56.79 кв.м., на 4 этаже. Новый жилой комплекс Аквилон RIVA от застройщика Группа Аквилонасположен по адресу:Ленинградская область, Всеволожский район,...
    • 56 м²
    • 3-ком
    • 4/20 эт.
    11 018 899 Р
    Агент
    +7 (984) Показать номер
    Посмотреть контакты
    2-к кв. Ленинградская область, Мурино Всеволожский район, ул. ... - Фото 1
    2-к кв. Ленинградская область, Мурино Всеволожский район, ул. ... - Фото 2
    2-комнатная квартира, общая площадь 44м², жилая 22м², кухня 12м²

    Прямая продажа от застройщика Готовая Евро-трёшка 44.8 кв.м с кухней 12.32 кв.м с чистовой отделкой на 3 этаже в сданном ЖК Полис Лаврики . Скидка до 400 000, семейная ипотека от 4,5 без удорожания квартиры на весь срок кредита, рассрочка до 18 месяцев...
    • 44 м²
    • 2-ком
    • 3/12 эт.
    • монолит
    11 111 888 Р
    Агент
    +7 (981) Показать номер
    Посмотреть контакты
    2-к кв. Ленинградская область, Мурино Всеволожский район, просп. ... - Фото 1
    2-к кв. Ленинградская область, Мурино Всеволожский район, просп. ... - Фото 2
    2-комнатная квартира, общая площадь 46м², жилая 23м², кухня 12м²

    Прямая продажа от застройщика Готовая Евро-трёшка 46.8 кв.м с кухней 12.84 кв.м с чистовой отделкой на 12 этаже в сданном ЖК Полис Лаврики . Скидка до 400 000, семейная ипотека от 4,5 без удорожания квартиры на весь срок кредита, рассрочка до 18 месяцев...
    • 46 м²
    • 2-ком
    • 12/12 эт.
    • монолит
    11 237 889 Р
    Агент
    +7 (981) Показать номер
    Посмотреть контакты
    2-к кв. Ленинградская область, Мурино Всеволожский район, Новые ... - Фото 1
    2-к кв. Ленинградская область, Мурино Всеволожский район, Новые ... - Фото 2
    2-комнатная квартира, общая площадь 61м², жилая 27м², кухня 14м²

    Строим кварталы для жизни с заботой о будущем. Предлагается 2-комнатная квартира комфорт-класса 61,86 кв.м в корпусе 1.3 на 2 этаже, в ЖК Новые Лаврики Квартира с чистовой отделкой. Доступность дополнительных опций уточняйте у застройщика.Приобрести...
    • 61 м²
    • 2-ком
    • 2/12 эт.
    • монолит
    11 230 621 Р
    Агент
    +7 (983) Показать номер
    Посмотреть контакты
    2-к кв. Ленинградская область, Мурино Всеволожский район, Новые ... - Фото 1
    2-к кв. Ленинградская область, Мурино Всеволожский район, Новые ... - Фото 2
    2-комнатная квартира, общая площадь 62м², жилая 26м², кухня 15м²

    Строим кварталы для жизни с заботой о будущем. Предлагается 2-комнатная квартира комфорт-класса 62,17 кв.м в корпусе 1.3 на 2 этаже, в ЖК Новые Лаврики Квартира с чистовой отделкой. Доступность дополнительных опций уточняйте у застройщика.Приобрести...
    • 62 м²
    • 2-ком
    • 2/12 эт.
    • монолит
    11 523 272 Р
    Агент
    +7 (983) Показать номер
    Посмотреть контакты

    Не нашли подходящего объявления?

    Оставьте заявку, и наши риэлторы подберут квартиру в новостройке в районе Мурино

    (0)