57 975 Р 718 $ или 626

Информация о помещении и здании

3
Этаж
3
Этажность
Развернуть
Агент
+7 (911) 828-08-23
Начать чат с агентом

Офис в Ленинградская область, Всеволожский район, Кузьмоловский пгт ...

Акционерное общество Российский научный центр Прикладная химия (ГИПХ) предлагает арендовать помещения офисного назначения, расположенные на 3-м этаже здания корпуса центральной проходной по адресу: Российская Федерация, Ленинградская область, Всеволожский район, г. п. Кузьмоловский. Размер арендной платы, с учетом НДС и без учета коммунальных платежей, составляет за 1 квадратный метр. Перечень предлагаемых к сдаче в аренду офисных площадей: 1. помещение 9 с площадью 29 кв.м.; 2. помещение 10 площадью 10.8 кв.м. 3. помещение 11 с площадью 20 кв.м.; 4. помещение 12 площадью 17,5 кв.м. Возможна сдача части помещений.Здание обеспечено всеми городскими коммуникациями: Электроснабжение, теплоснабжение, водоснабжение, канализация.Состояние помещений удовлетворительное/хорошее. Подъезд осуществляется с улицы Заводская. Непосредственно к зданию подходит дорога с бетонным покрытием.Расстояние до ближайшей крупной транспортной магистрали (Ленинградское шоссе) 2,5 км, расстояние до КАД около 11 кмЖ/д станция Капитолово находится на расстоянии около 0,5 км от объекта.

Читать полностью
    Позвонить Написать
    57 975 Р718 $ или 626
    Агент
    +7 (911) 828-08-23
    Начать чат с агентом
    Похожие предложения
    Офис в Санкт-Петербург Таллинская ул., 7 (49 м) - Фото 1
    Офис в Санкт-Петербург Таллинская ул., 7 (49 м) - Фото 2
    3-й этаж, всего 4 этажа

    Сдается в аренду просторный офис 48.9 кв.м недалеко от метро.Договор аренды заключаете с собственником помещения. Без надбавки к итоговой стоимости аренды.В арендную ставку включено: - коммунальные услуги, включая электроэнергию,- уборка общих мест,-...
    • 3/4 эт.
    58 680 Р
    Агент
    +7 (981) Показать номер
    Посмотреть контакты
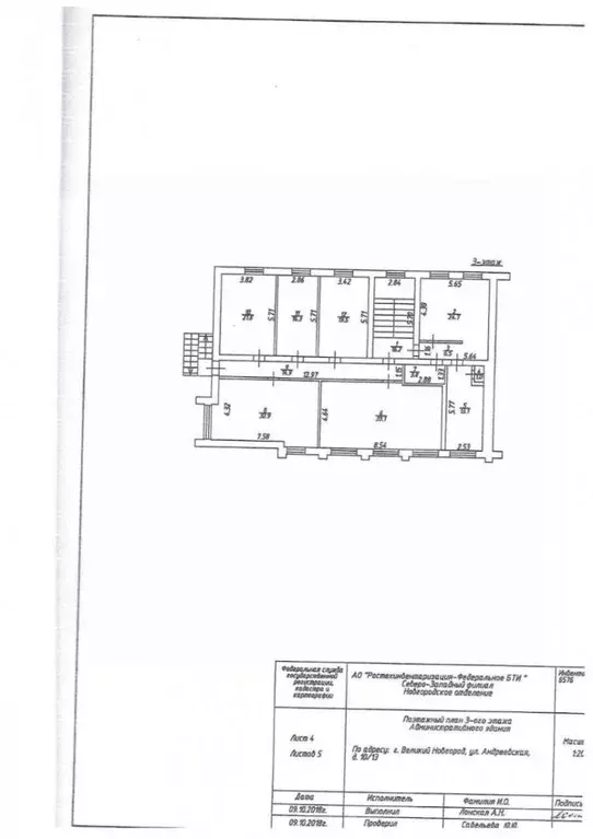
    Офис в Новгородская область, Великий Новгород Район Торговая сторона, ... - Фото 1
    Офис в Новгородская область, Великий Новгород Район Торговая сторона, ... - Фото 2
    3-й этаж, всего 3 этажа

    АРЕНДА ОТ СОБСТВЕННИКА.БЕЗ КОМИССИИ ДЛЯ АРЕНДАТОРА.Сдаётся в аренду офисный блок, состоящий из 3 кабинетов, площадью 57,6 м расположенный по адресу: ул. Aндpeeвcкая, д.10/13В ближайшее время закончится ремонт и появится возможность увеличить площадь в...
    • 3/3 эт.
    57 600 Р
    Агент
    +7 (911) Показать номер
    Посмотреть контакты
    Офис в Самарская область, Самара Московское ш., 17 (46 м) - Фото 1
    Офис в Самарская область, Самара Московское ш., 17 (46 м) - Фото 2
    14-й этаж, всего 27 этажей

    Арт.Аренда помещения в многофункциональном центре Вертикаль по адресу - Московское шоссе, 17.Ближайшее пересечение - с улицей Гагарина. В окружении располагаются: строящиеся ЖК Самара Сити , Баланс Tower и Король Лев , построенный ЖК Королев ,...
    • 14/27 эт.
    58 000 Р
    Агент
    +7 (989) Показать номер
    Посмотреть контакты
    Офис в Иркутская область, Иркутск ул. Коммунаров, 1А (46 м) - Фото 1
    Офис в Иркутская область, Иркутск ул. Коммунаров, 1А (46 м) - Фото 2
    1-й этаж, всего 4 этажа

    ОТ СОБСТВЕННИКА БЕЗ КОМИССИИСдается офисное помещение в цокольном этажеТихий центр городаОтличная парковка перед зданиемОхрана на входеКруглосуточный доступОхранно-пожарная сигнализация в кабинетеОтличный ремонтПолноценные окна
    • 1/4 эт.
    59 000 Р
    Агент
    +7 (914) Показать номер
    Посмотреть контакты
    Офис в Московская область, Подольск Парковая ул., 48 (52 м) - Фото 1
    Офис в Московская область, Подольск Парковая ул., 48 (52 м) - Фото 2
    2-й этаж, всего 2 этажа

    БЕЗ КОМИССИИ В центральной части Подольска на 2-ом этаже 2-х этажного бизнес-центра сдаётся в аренду офисное помещение площадью 52 кв. м. Помещение представляет собой обособленный блок, состоит из 2-х комнат и собственного санузла. Сделан евроремонт,...
    • 2/2 эт.
    57 000 Р
    Агент
    +7 (985) Показать номер
    Посмотреть контакты

    Не нашли подходящего объявления?

    Оставьте заявку, и наши риэлторы подберут офис в районе Кузьмоловского

    (0)