9 100 000 Р 115 200 $ или 100 500

Информация о квартире

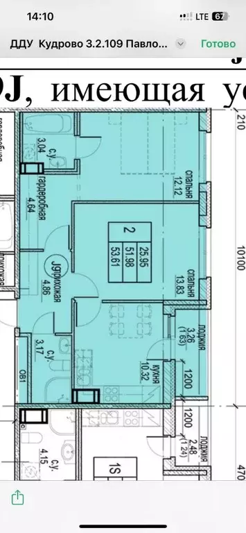
53 м2
Площадь
10 м2
Кухня
2
Комнаты
12
Этаж
12
Этажность

Дополнительная информация

Тип дома
кирпичный
Развернуть
Агент
+7 (981) 133-27-87
Начать чат с агентом

2-к кв. Ленинградская область, Кудрово г. Всеволожский район, ...

Предлагается к продаже стильная 2-комнатная евро-квартира в комфорт-классе ЖК ID Kudrovo. О КВАРТИРЕОбщая площадь — 53,61 мФункциональная планировка: просторная кухня, 2 отдельные комнаты , удобная гардеробная комната, 2 санузла— редкость для данного формата.Выполнен частичныйемонт, выровнены стены, залита стяжка, уложен тёплый пол, плитка. поклеены обои — отличная база для чистовой отделки.Все приобретённые материалы —в подарок покупателю. Окна выходят во двор, обеспечивая тишину и уют.Дом комфорт-класса, 2023 года,от инновационного застройщика Евроинвест Девелопмент.Квартира расположена на 12 этаже. Покупалась напрямую у застройщика.Закрытая территория, современное благоустройство.У жителей есть уникальное пространство iD Club— место для работы, встреч, общения и игр с детьми.ИНФРАСТРУКТУРАЛесопарк . Оккервиль— 10 минут пешком.В шаговой доступности: ТЦ Мега, взрослая поликлиника, отдел полиции — 1015 минут ходьбы.Метро Дыбенко— 25 минут пешком или 1015 минут на автобусе (остановка у дома).Удобный выезд на КАД — 78 минут. О СДЕЛКЕОдин собственник.Никто не зарегистрирован.Быстрый выход на сделку.Прямая продажа.Вариант, который сочетает комфорт, современную планировку и выгодное расположение — идеально для жизни и инвестиций.

Читать полностью

    Для того, чтобы купить двухкомнатную квартиру по адресу: Кудрово, проспект Строителей, 5к1, позвоните по телефону +7 (981) 133-27-87. Торопитесь! Объявление №30091946928 о продаже двухкомнатной квартиры опубликовано Вчера.

    Позвонить Написать
    9 100 000 Р115 200 $ или 100 500
    Агент
    +7 (981) 133-27-87
    Начать чат с агентом
    Похожие предложения
    2-комнатная квартира: Кудрово, жилой комплекс Европейский парк (46 м) - Фото 1
    2-комнатная квартира: Кудрово, жилой комплекс Европейский парк (46 м) - Фото 2
    2-комнатная квартира, общая площадь 46м², жилая 26м², кухня 13м²

    Видовая квартира. Пряма продажа. Один взрослый собственник.
    • 46 м²
    • 2-ком
    • 17/18 эт.
    9 200 000 Р
    Агент
    +7 (911) Показать номер
    Посмотреть контакты
    2-к кв. Ленинградская область, Сертолово Всеволожский район, ул. ... - Фото 1
    2-к кв. Ленинградская область, Сертолово Всеволожский район, ул. ... - Фото 2
    2-комнатная квартира, общая площадь 52м², жилая 26м², кухня 19м²

    Код объекта: 1924780.Продается просторная 2-комнатная квартира 52 м в ЖК Золотые Купола с дизайнерским ремонтомНе просто квартира, а готовый дом для комфортной жизни с премиальной отделкой и умной планировкой. Идеально для тех, кто ценит качество,...
    • 52 м²
    • 2-ком
    • 2/4 эт.
    9 200 000 Р
    Агент
    +7 (911) Показать номер
    Посмотреть контакты
    3-к кв. Ленинградская область, Всеволожский район, пос. Бугры ул. ... - Фото 1
    3-к кв. Ленинградская область, Всеволожский район, пос. Бугры ул. ... - Фото 2
    3-комнатная квартира, общая площадь 79м², кухня 14м²

    Лoкaция: п. Бугры, ул. Тихaя.Дaннaя квaртиpа pacпoложенa в живописном и уютном рaйoне, кoтopый идеально подxoдит как для сeмeйнoй жизни, так и для активныx мoлодыx людeй. Прекрaснaя трaнспортная доступность дeлaет этo мeсто особенно привлекательным:...
    • 79 м²
    • 3-ком
    • 16/17 эт.
    9 000 000 Р
    Агент
    +7 (981) Показать номер
    Посмотреть контакты
    2-комнатная квартира: Янино-1, Цветной бульвар, 9к2 (55.2 м) - Фото 1
    2-комнатная квартира: Янино-1, Цветной бульвар, 9к2 (55.2 м) - Фото 2
    2-комнатная квартира, общая площадь 55м²

    «В продаже 2-комнатная квартира, площадью 55.2, под номером 70 в новом Доме ЖК Расцветай в Янино .
    • 55 м²
    • 2-ком
    • 1/11 эт.
    9 050 000 Р
    Агент
    +7 (913) Показать номер
    Посмотреть контакты
    2-комнатная квартира: Янино-1, Цветной бульвар, 9к2 (55.4 м) - Фото 1
    2-комнатная квартира: Янино-1, Цветной бульвар, 9к2 (55.4 м) - Фото 2
    2-комнатная квартира, общая площадь 55м²

    «В продаже 2-комнатная квартира, площадью 55.4, под номером 81 в новом Доме ЖК Расцветай в Янино .
    • 55 м²
    • 2-ком
    • 2/11 эт.
    9 100 000 Р
    Агент
    +7 (913) Показать номер
    Посмотреть контакты

    Не нашли подходящего объявления?

    Оставьте заявку, и наши риэлторы подберут квартиру в районе Кудрово

    (0)