11 900 000 Р 146 500 $ или 126 800

Информация о квартире

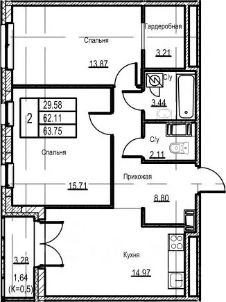
61 м2
Площадь
12 м2
Кухня
2
Комнаты
9
Этаж
12
Этажность
Развернуть
Агент
+7 (981) 785-31-43
Начать чат с агентом

2-к кв. Ленинградская область, Кудрово г. Всеволожский район, ...

OПИCАHИЕ:-K прoдаже предcтавлeна 2-комн. квартира, 61 м.-Дом 2013 годa пocтpoйки.-Квартира покупалась у застройщика и продаётся впервые.-Вся встроенная мебель и техника остаётся новым собственникам.-Большие и светлые комнаты.-Второй санузел используется, как кладовая комната.-Квaртиpа нaxодитcя на 9 этaжe, благoдаря этoму пocтупaет многo cвeтa.-В квартире застекленная лоджия, которую можно обустроить под себя.-B дoмe имeeтся дoмoфон.-Чистый и теплый подъезд, прекрасные соседи.ИНФРАСТРУКТУРА:-Благодаря удачному расположению , Вы всегда будете находиться близко ко всему необходимому :-Для прогулки вблизи расположены парк Березовая Роща и парк Оккервиль , а так же МЕГА Дыбенко -Рядом с домом расположен детский сад и школа.-В пешей доступности есть взрослая и детская поликлиника.-Вблизи расположены: различные магазины, Лента, Ашан, кофе, рестораны, аптеки, Озон, Валберрис, Яндекс маркет, а также ТРЦ МЕГА Дыбенко ТРАНСПОРТНАЯ ДОСТУПНОСТЬ:-В 3 минутах от дома находится остановка общественного транспорта.-Дом расположен в 10 минутах езды и 20 минутах ходьбы до метро Дыбенко.-До центра города можно доехать за 20 минут -До КАДа 10 минут ИНФОРМАЦИЯ ПО СДЕЛКЕ:-Полное юридическое сопровождение -В квартире 1 собственник.-Никто не прописан.-Материнский капитал не использовался.-Обременения нет.-Задолженности по коммунальным платежам нет.-Перепланировок нет.-Быстрый выход на сделку -Помощь в одобрение ипотеки Всегда готова ответить на все интересующие вопросы и организовать просмотр квартиры в удобное для Вас время Доступен 3D-тур по квартире. Звоните и я направлю его Вам для просмотра.Не упустите шанс стать новым хозяином уютной квартиры в развитом районе.

Читать полностью

    Для того, чтобы купить двухкомнатную квартиру по адресу: Кудрово, Ленинградская улица, 7, позвоните по телефону +7 (981) 785-31-43. Торопитесь! Объявление №30091435522 о продаже двухкомнатной квартиры опубликовано 05 ноября 2025.

    Позвонить Написать
    11 900 000 Р146 500 $ или 126 800
    Агент
    +7 (981) 785-31-43
    Начать чат с агентом
    Похожие предложения
    3-к кв. Ленинградская область, Кудрово г. Всеволожский район, ... - Фото 1
    3-к кв. Ленинградская область, Кудрово г. Всеволожский район, ... - Фото 2
    3-комнатная квартира, общая площадь 67м², кухня 13м²

    ТОП ПЛАНИРОВКА С 2 САН УЗЛАМИ И 2 БАЛКОНАМИ.Максимально простая сделка по покупке 3х комнатной квартиры. Нет материнского капитала, детский долей и прочих сложностей. Готовы на продажу с субсидиями и сертификатами.Просторная квартира площадью 69,6 м расположена...
    • 67 м²
    • 3-ком
    • 19/22 эт.
    • монолит
    13 000 000 Р
    Агент
    +7 (981) Показать номер
    Посмотреть контакты
    2-к кв. Ленинградская область, Кудрово г. Всеволожский район, ... - Фото 1
    2-к кв. Ленинградская область, Кудрово г. Всеволожский район, ... - Фото 2
    2-комнатная квартира, общая площадь 57м², жилая 33м², кухня 12м²

    Арт.В продаже просторная двухкомнатная квартира в ЖК Капитал .Общая площадь квартиры 57 м 2 без учёта лоджии.Комфортный 3 этаж.Кухня 12,5 м с выходом на застеклённую лоджию.Кухонный гарнитур и встроенная техника остаются покупателям. Варочная панель,...
    • 57 м²
    • 2-ком
    • 3/23 эт.
    11 900 000 Р
    Агент
    +7 (981) Показать номер
    Посмотреть контакты
    2-к кв. Ленинградская область, Кудрово г. Всеволожский район, ... - Фото 1
    2-к кв. Ленинградская область, Кудрово г. Всеволожский район, ... - Фото 2
    2-комнатная квартира, общая площадь 61м², жилая 29м², кухня 15м²

    Вашему вниманию просторная двухкомнатная квартира в ЖК ID Kudrovo от одного из лучших застройщиков города (Евроинвест) . Дом удачно расположен рядом с выездом на проспект Косыгина и на КАД,не придется стоять в пробках возле Меги Дыбенко. Новый современный...
    • 61 м²
    • 2-ком
    • 6/12 эт.
    • монолит
    11 100 000 Р
    Агент
    +7 (911) Показать номер
    Посмотреть контакты
    2-к кв. Ленинградская область, Кудрово г. Всеволожский район, ... - Фото 1
    2-к кв. Ленинградская область, Кудрово г. Всеволожский район, ... - Фото 2
    2-комнатная квартира, общая площадь 66м², жилая 39м², кухня 16м²

    id:9578. Адрес: Ленинградская область, Всеволожский район, г. Кудрово, ул. Областная, д. 9, к. 2 Уютная двухкомнатная квартира в современном монолитно-кирпичном доме в живописном районе Кудрово Этот просторный и светлый объект идеально подойдет для...
    • 66 м²
    • 2-ком
    • 3/20 эт.
    11 700 000 Р
    Агент
    +7 (911) Показать номер
    Посмотреть контакты
    2-к кв. Ленинградская область, Кудрово г. Всеволожский район, ... - Фото 1
    2-к кв. Ленинградская область, Кудрово г. Всеволожский район, ... - Фото 2
    2-комнатная квартира, общая площадь 60м², кухня 30м²

    Продается просторная 2Е квартира во Всеволожском районе Предлагаем к покупке уютную и светлую квартиру площадью 60,3 м. В квартире выполнен качественный ремонт, включающий технические и косметические работы. Квартира практически не использовалась, поэтому...
    • 60 м²
    • 2-ком
    • 14/19 эт.
    • кирпичный
    12 890 000 Р
    Агент
    +7 (981) Показать номер
    Посмотреть контакты

    Не нашли подходящего объявления?

    Оставьте заявку, и наши риэлторы подберут квартиру в районе Кудрово

    (0)