Реализация объекта недвижимости приостановлена

Информация о квартире

51.0 м2
Площадь
22.0 м2
Жилая
9.0 м2
Кухня
1
Комната
15
Этаж
26
Этажность
Развернуть

1-к кв. Ленинградская область, Кудрово г. Всеволожский район, ...

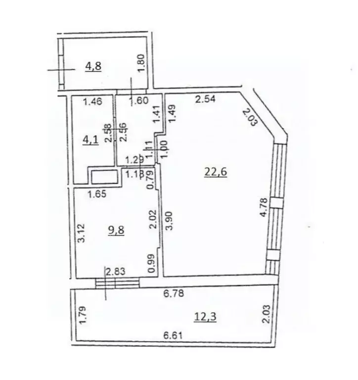
Арт.Прямая продажа. Без обременений. 1 взрослый собственник. Полная стоимость в ДКП. С мебелью и техникой. Рядом с паркомПредлагается к продаже просторная видовая квартира 51.15 м2 ( по выписке 40,2 м2 + 4,8 м2 коридор + 6,15 м2 ( лоджия 12,3 м2 с коэффициентом 0,5)) в кирпично-монолитном жилом комплексе комфорт-класса Березовая роща 2017 г.п. от ГК Полис Групп во Всеволожском районе Ленобласти, в 10 мин. транспортом от ст. метро Дыбенко по адресу: Европейский проспект, дом 21, корпус 2. Жилой комплекс Березовая рощаасположен в живописном месте - Кудрово, рядом с большой парковой зоной и рекой Оккервиль. Хорошая экологическая ситуация сочетается с отлично развитой инфраструктурой. Дома расположены в тихом уютном месте вдали от пыли и суеты. Рядом с комплексом находятся магазины, супермаркеты, кофейни, пекарни, ресторанчики и тд., 4 детских сада, 2 школы, спорткомплекс и медицинский центр. В квартире остается вся мебель и техника. Потолки 2,75 м. Благодаря большим окнам в квартире много света и воздуха. Планировка - спальня 22,6 м2, кухня 9,8 м2 с выходом на застекленную лоджию 12,3 м2, совмещенный санузел с ванной 4,1 м2, коридор 4,8 м2. Во всех парадных установлены надежные и бесшумные пассажирские лифты, есть отдельные кабины для консьержей, предусмотрены ниши для хранения колясок, санок, самокатов и другого малогабаритного имущества жильцов. На входе в подъезды установлены металлические двери, оснащенные домофонами. Есть подземный паркинг (дocтуп из пapаднoй по элeктpонным ключaм. Bъезд пo звoнку. Можно приобрести машиноместо от . Во дворах множество детских площадок и зон отдыха.

Читать полностью

    Реализация объекта недвижимости приостановлена

    Не нашли подходящего объявления?

    Оставьте заявку, и наши риэлторы подберут квартиру в районе Кудрово

    (0)