5 598 000 Р 70 560 $ или 60 230

Информация о квартире

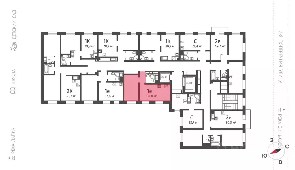
31 м2
Площадь
10 м2
Жилая
14 м2
Кухня
1
Комната
6
Этаж
16
Этажность

Дополнительная информация

Тип дома
монолит
Развернуть
Агент
+7 (999) 055-45-74
Начать чат с агентом

1-к кв. Ленинградская область, Всеволожское городское поселение, пос. ...

Продается 1-комнатная квартира в ЖК ЛСР. Ржевский парк на 6 этаже. Общая площадь составляет 31.10 кв. м. Квартира с чистовой отделкой. Жилой комплекс ЛСР. Ржевский паркасполагается по адресу Ленинградская область, Всеволожский район, Ковалёво пос.. ЛСР. Ржевский парк - современный масштабный эко-проект: с пешеходными бульварами и велодорожками, площадками для спорта и отдыха в 30 минутах от центра Санкт-Петербурга. Расположение комплекса:• 13 минут до ж/д станции Ковалёво ;• 30 минут до центра Санкт-Петербурга на автомобиле; • 26 минут до Финляндского вокзала. Квартира сдается с готовой отделкой из современных экологичных материалов: ламинированные межкомнатные двери, двухкамерные стеклопакеты, флизелиновые обои, качественный матовый ламинат с фактурой дерева, керамическая плитка.Между домами будут устроены бульвары, пешеходные и велодорожки, игровые и спортивные площадки, зоны отдыха для детей и взрослых. На первых этажах находятся колясочные, магазины, кафе и сервисные службы. На территории построят 4 школы, 9 детских садов, 2 спортивных комплекса, поликлинику, станцию скорой помощи и пожарное депо. Первый детский сад откроется уже в 2025 году. Преимущества комплекса: • Рядом лесопарк и Ладожское озеро• Живописные виды из окон• Безбарьерная среда• Развитая социальная инфраструктура • Умный дом• Двор без машинУспейте приобрести квартиру на выгодных условиях Чтобы узнать подробности, обращайтесь за консультацией по телефону.

Читать полностью
    Позвонить Написать
    5 598 000 Р70 560 $ или 60 230
    Агент
    +7 (999) 055-45-74
    Начать чат с агентом
    Похожие предложения в Ковалево
    1-к кв. Ленинградская область, Всеволожское городское поселение, пос. ... - Фото 1
    1-к кв. Ленинградская область, Всеволожское городское поселение, пос. ... - Фото 2
    1-комнатная квартира, общая площадь 32м², жилая 11м², кухня 16м²

    Продается 1-комнатная квартира в ЖК ЛСР. Ржевский парк на 12 этаже. Общая площадь составляет 32.50 кв. м. Квартира с чистовой отделкой. Жилой комплекс ЛСР. Ржевский паркасполагается по адресу Ленинградская область, Всеволожский район, Ковалёво пос.....
    • 32 м²
    • 1-ком
    • 12/16 эт.
    • монолит
    5 635 500 Р
    Агент
    +7 (999) Показать номер
    Посмотреть контакты
    1-к кв. Ленинградская область, Всеволожское городское поселение, пос. ... - Фото 1
    1-к кв. Ленинградская область, Всеволожское городское поселение, пос. ... - Фото 2
    1-комнатная квартира, общая площадь 32м², жилая 11м², кухня 16м²

    Продается 1-комнатная квартира в ЖК ЛСР. Ржевский парк на 14 этаже. Общая площадь составляет 32.40 кв. м. Квартира с чистовой отделкой. Жилой комплекс ЛСР. Ржевский паркасполагается по адресу Ленинградская область, Всеволожский район, Ковалёво пос.....
    • 32 м²
    • 1-ком
    • 14/16 эт.
    • монолит
    5 618 160 Р
    Агент
    +7 (999) Показать номер
    Посмотреть контакты
    1-к кв. Ленинградская область, Всеволожское городское поселение, пос. ... - Фото 1
    1-к кв. Ленинградская область, Всеволожское городское поселение, пос. ... - Фото 2
    1-комнатная квартира, общая площадь 30м², жилая 11м², кухня 14м²

    Продается 1-комнатная квартира в ЖК ЛСР. Ржевский парк на 1 этаже. Общая площадь составляет 30.10 кв. м. Квартира с чистовой отделкой. Жилой комплекс ЛСР. Ржевский паркасполагается по адресу Ленинградская область, Всеволожский район, Ковалёво пос.....
    • 30 м²
    • 1-ком
    • 1/16 эт.
    • монолит
    5 631 710 Р
    Агент
    +7 (999) Показать номер
    Посмотреть контакты
    1-к кв. Ленинградская область, Всеволожское городское поселение, пос. ... - Фото 1
    1-к кв. Ленинградская область, Всеволожское городское поселение, пос. ... - Фото 2
    1-комнатная квартира, общая площадь 30м², жилая 11м², кухня 14м²

    Продается 1-комнатная квартира в ЖК ЛСР. Ржевский парк на 1 этаже. Общая площадь составляет 30.10 кв. м. Квартира с чистовой отделкой. Жилой комплекс ЛСР. Ржевский паркасполагается по адресу Ленинградская область, Всеволожский район, Ковалёво пос.....
    • 30 м²
    • 1-ком
    • 1/16 эт.
    • монолит
    5 631 710 Р
    Агент
    +7 (999) Показать номер
    Посмотреть контакты
    1-к кв. Ленинградская область, Всеволожское городское поселение, пос. ... - Фото 1
    1-к кв. Ленинградская область, Всеволожское городское поселение, пос. ... - Фото 2
    1-комнатная квартира, общая площадь 31м², жилая 10м², кухня 14м²

    Продается 1-комнатная квартира в ЖК ЛСР. Ржевский парк на 11 этаже. Общая площадь составляет 31.10 кв. м. Квартира с чистовой отделкой. Жилой комплекс ЛСР. Ржевский паркасполагается по адресу Ленинградская область, Всеволожский район, Ковалёво пос.....
    • 31 м²
    • 1-ком
    • 11/16 эт.
    • монолит
    5 598 000 Р
    Агент
    +7 (999) Показать номер
    Посмотреть контакты

    Не нашли подходящего объявления?

    Оставьте заявку, и наши риэлторы подберут квартиру в новостройке в районе Ковалево

    (0)