8 500 000 Р 104 500 $ или 90 240

Информация о квартире

83 м2
Площадь
48 м2
Жилая
10 м2
Кухня
3
Комнаты
3
Этаж
9
Этажность

Дополнительная информация

Тип дома
панельный
Развернуть
Агент
+7 (911) 103-67-83
Начать чат с агентом

3-к кв. Ленинградская область, Колтуши Всеволожский район, ул. ...

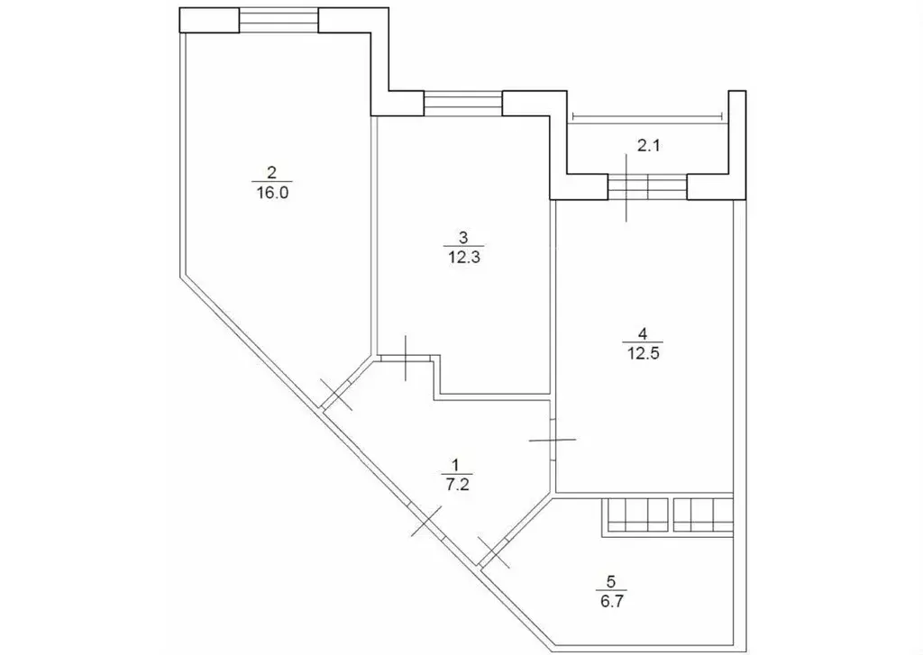
Арт.Продается просторная теплая 3-х комнатная квартира.Параметры:Общая площадь — 83,9 м.Кухня — 10,7 м.Комната 1 — 17,4 м.Комната 2 — 16,3 м.Комната 3-14,9 . Коридор — 11,8 м. Отличная планировка все комнаты изолированны. Вид из окон на две стороны. Дом панельный, 2009 года постройки. Квартира расположена на 3 этаже.Вокруг дома много зелени, детская и спортивная площадки. Чистая и просторная парадная. Всегда есть парковочные места.Инфраструктура: Рядом :детскиесады, школа, Сбербанк, Почта, OZON, Wb, Магни т,/шагов, Яндекс маркет, Улыбка радуги, кабинет педиатрии с соседнем доме, поликлиника, удобная транспортная развязка до метро Дыбенко и Ладожская. В 1,5 км. Расположена ледовая арена с хоккейным клубом и школой фигурного катания.В 8 км. Начинается охранная природная зона Колтушские высоты — прекрасное место для прогулок с потрясающими пешими маршрутами по живописному природному ландшафту: хвойному лесу, вдоль озер.До ближайших станций метро Дыбенко и Ладожская 20 мин транспортом .Выезд на Кад через Колтушское шоссе всего в 7 километрах, на таком же расстоянии находится крупный торговый центр Мега Дыбенко . В квартире частично остается мебель и бытовая техника. Квартира без обременения.Более пяти лет в собственности. Три взрослых собственника. Легкая встречка .

Читать полностью

    Для того, чтобы купить трехкомнатную квартиру по адресу: Колтуши, Верхняя улица, 3к1, позвоните по телефону +7 (911) 103-67-83. Торопитесь! Объявление №30091383355 о продаже трехкомнатной квартиры опубликовано 04 ноября 2025.

    Позвонить Написать
    8 500 000 Р104 500 $ или 90 240
    Агент
    +7 (911) 103-67-83
    Начать чат с агентом
    Похожие предложения
    2-к кв. Ленинградская область, Колтуши Всеволожский район, пер. ... - Фото 1
    2-к кв. Ленинградская область, Колтуши Всеволожский район, пер. ... - Фото 2
    2-комнатная квартира, общая площадь 57м², жилая 35м², кухня 9м²

    Арт.Продаётся просторная 2-комнатная квартира для счастливой жизни Готова к переезду под ключ .Мечтаете о доме, где продумана каждая деталь? Эта квартира — ваш идеальный вариант Простор и комфорт: Изолированные комнаты для уединения каждого члена семьи....
    • 57 м²
    • 2-ком
    • 8/9 эт.
    8 500 000 Р
    Агент
    +7 (981) Показать номер
    Посмотреть контакты
    2-комнатная квартира: Колтуши, Школьный переулок, 1 (57 м) - Фото 1
    2-комнатная квартира: Колтуши, Школьный переулок, 1 (57 м) - Фото 2
    2-комнатная квартира, общая площадь 57м², жилая 35м², кухня 12м²

    Арт.Продаётся просторная 2-комнатная квартира для счастливой жизни Готова к переезду «под ключ . Мечтаете о доме, где продумана каждая деталь? Эта квартира — ваш идеальный вариант · Простор и комфорт: Изолированные комнаты для уединения каждого члена...
    • 57 м²
    • 2-ком
    • 8/10 эт.
    8 500 000 Р
    Агент
    +7 (965) Показать номер
    Посмотреть контакты
    2-к кв. Ленинградская область, Мурино Всеволожский район, Новая ул., ... - Фото 1
    2-к кв. Ленинградская область, Мурино Всеволожский район, Новая ул., ... - Фото 2
    2-комнатная квартира, общая площадь 54м², кухня 12м²

    За объект уже внесли аванс, готовим документы к сделке.
    • 54 м²
    • 2-ком
    • 6/27 эт.
    8 440 000 Р
    Агент
    +7 (981) Показать номер
    Посмотреть контакты
    1-комнатная квартира, общая площадь 69м²

    Квартира, кадастровый номер 47:07:1039001:18403, общей площадью 69,9 кв.м., расположенная по адресу: Ленинградская область, Всеволожский муниципальный район, Заневское городское поселение, гп. Янино-1, микрорайон Янила Кантри, ул. Тюльпанов, д. 2, корп....
    • 69 м²
    • 1-ком
    • 3/3 эт.
    8 568 000 Р
    Агент
    +7 (981) Показать номер
    Посмотреть контакты
    2-к кв. Ленинградская область, Всеволожский район, пос. Бугры бул. ... - Фото 1
    2-к кв. Ленинградская область, Всеволожский район, пос. Бугры бул. ... - Фото 2
    2-комнатная квартира, общая площадь 53м², жилая 27м², кухня 11м²

    Номер объявления: 18392 - назовите его оператору. Сложившаяся инфраструктура Девяткино, 15 минут пешком до метро Квартира двухсторонняя, окна выходят на запад и восток, на улицу и во двор, застеклённая лоджия шириной 1,25 метра в комнате выходящей на...
    • 53 м²
    • 2-ком
    • 7/12 эт.
    8 500 000 Р
    Агент
    +7 (911) Показать номер
    Посмотреть контакты

    Не нашли подходящего объявления?

    Оставьте заявку, и наши риэлторы подберут квартиру в районе Колтуши

    (0)