СНТ Сосновый Бор
грузино
1 км.
47:07:1603001:360
47:07:1603001:25
8 900 000 Р 113 800 $ или 96 640

Информация о коттедже

КП СНТ Сосновый Бор
Название КП
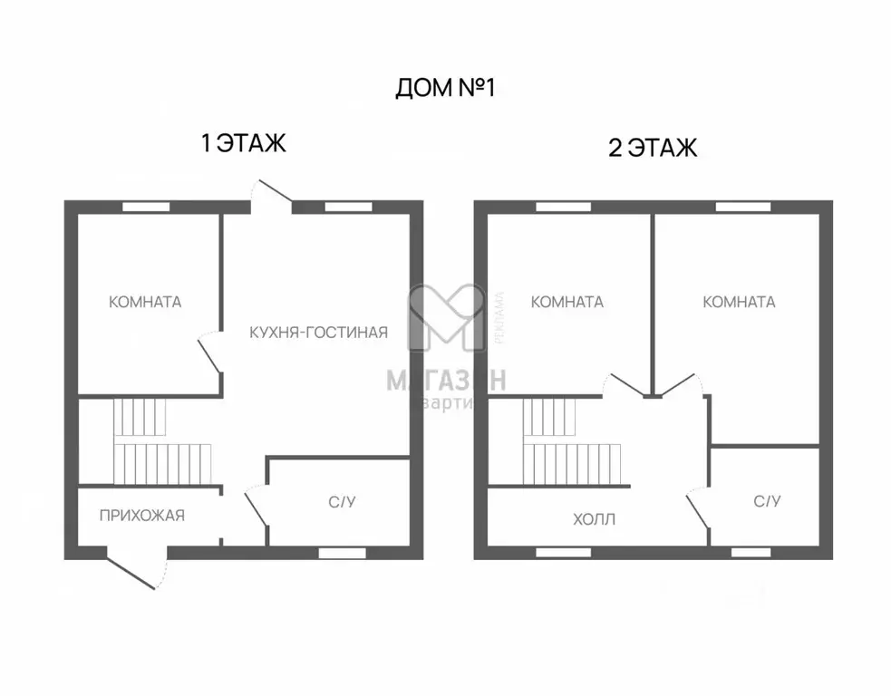
111.5 м2
Площадь
60 м2
Жилая
2024
Построен
1
Этажность
3
Количество комнат
12 cоток
Участок

Состояние и оснащение

Дом
каркасный
Год постройки
2024
Ремонт
без отделки
Окна
пластиковые
Входная дверь
железная

Дополнительная информация

Количество санузлов
1
Тип санузла
совмещенный
Расположение туалета
в доме
Расположение душа
в доме
Количество спален
2
Вид разрешенного использования для участка
зсн для садоводства или огородничества
Категория назначения землепользования
зсн земли сельскохозяйственного назначения
Участок является частью
садового товарищества
Ближайший населённый пункт
грузино
Расстояние до ближайшего населённого пункта
1 км.
Ближайшая железнодорожная станция
47 км
Расстояние до станции
0.3 км.

Коммуникации

Канализация
септики
Электроснабжение
обеспечено действующим договором с электросбытовой компанией в количестве 15 квт.

Территория

Форма участка
не правильная
Рельеф местности
ровный
Лиственные деревья
есть
Хвойные деревья
есть
Кусты
есть
Газон
есть
Водоём
озеро
Развернуть
Жу Татьяна
PRO
+7 (964) 374-72-44
Профессионал AFY.ru с 2015 г.
Начать чат с агентом

Продажа дома 11,5м2 с уч. 12 сот в СНТ Сосновый Бор.

Продается участок 12 сот (крайний к лесу),ровный, посажены маленькие сосны и жилой дом 111,5м2 (1 этаж), каркасный на сваях, наружная отделка полностью готова, внутри зашиты потолки вагонкой, пол и стены утеплены и готовы к чистовой отделке, на окнах установлены стекло пакеты, входная дверь металлическая.
Дом каркасный, полностью утепленный, крыша черепица, фундамент сваи, есть кольца для установки канализации.
В СНТ "Сосновый Бор", массив Грузино, Всеволожский р-н. Прекрасная нетронутая природа, сосновый лес, рядом чистейшее озеро Белое, пеш 5 мин, в СНТ всего 75 участков, 5 мин пеш ж.д. ст. 47км, до СПБ 25 мин на автомобиле по Новоприозерскому ш., удобное транспортное сообщение, в 1 км от СНТ остановка автобусов, до магазина 700м. Садоводство граничит с одной стороны со старыми СНТ, с другой стороны с дорогой и ж.д. путями и с третий стороны с лесничеством. В лесу ягоды - малина, черника, земляника, много живности, зайцы, белки.
В СНТ установлена собственная подстанция, электричество 15кВт подключено.
Дороги, асфальтовая крошка, установлена детская площадка для общего пользования футбольное поле. Многие проживают круглогодично.
В ближайшее садоводство приезжают машины с продовольственными товарами, магазин на жд/станции, рядом с переездом продуктовый магазин и строительный Вимос, все необходимое в шаговой доступности.
Водоснабжение организовывается на каждом участке индивидуально в виде колодцев, делали анализ воды - вода питьевая.
Дом и участок зарегистрированы, ЗУ - сельхоз назначения для ведения садоводства, Дом- жилой.
Собственность физ. лица, один собственник, менее 3 лет, возможна ипотека. Респектабельное окружение, отличное место для постоянного проживания на природе.

Читать полностью

    Для того, чтобы купить дачу площадью 111 кв. метр по адресу: Керро, позвоните по телефону +7 (964) 374-72-44. Торопитесь! Объявление №506724671 о продаже дачи площадью 111 кв. метр опубликовано 31 декабря 2025.

    Позвонить Написать
    8 900 000 Р113 800 $ или 96 640
    Жу Татьяна
    PRO
    +7 (964) 374-72-44
    Профессионал AFY.ru с 2015 г.
    Начать чат с агентом
    Похожие предложения
    Дом в Ленинградская область, Всеволожский район, Куйвозовское с/пос, ... - Фото 1
    Дом в Ленинградская область, Всеволожский район, Куйвозовское с/пос, ... - Фото 2
    1 этаж, общая площадь 49м², участок 6 соток

    Ленинградская область, Всеволожский район, Куйвозовское сельское поселение, массив Екатериновка-1, улица Кутузовская, дом 20.Продается сказочный дом у леса. Заезжай и живиОписание:Уютный дом с дизайнерским ремонтом для круглогодичного проживания на лесной...
    • 1 эт.
    • 49 м²
    • 6 сот.
    8 900 000 Р
    Агент
    +7 (989) Показать номер
    Посмотреть контакты
    Дом в Ленинградская область, Всеволожский район, Юкковское с/пос, ... - Фото 1
    Дом в Ленинградская область, Всеволожский район, Юкковское с/пос, ... - Фото 2
    2 этажа, общая площадь 86м², участок 7 соток

    Арт.Продается теплый дом почти 90 кв. метров Земля 8 соток ( 7,6 соток, согласно выписке ЕГРН )в СНТ Белоостров 6 линия, дом 138Автобусная остановка в 7-10 минутах от дома Комфортные автобусы (номер 434) с кондиционером отходят от метро Просвещения...
    • 2 эт.
    • 86 м²
    • 7 сот.
    9 000 000 Р
    Агент
    +7 (981) Показать номер
    Посмотреть контакты
    Дом в Ленинградская область, Всеволожский район, Имени Свердлова пгт ... - Фото 1
    Дом в Ленинградская область, Всеволожский район, Имени Свердлова пгт ... - Фото 2
    1 этаж, общая площадь 45м², участок 7 соток

    Арт.. В продаже уникальный участок 7.5 соток с домом на первой береговой линии НевыВаша мечта о жизни у воды с видом на проплывающие яхты станет реальностью. Мы предлагаем готовый дом прямо на берегу Невы.Преимущества участка:— Участок находится на первой...
    • 1 эт.
    • 45 м²
    • 7 сот.
    9 000 000 Р
    Агент
    +7 (911) Показать номер
    Посмотреть контакты
    Дом в Ленинградская область, Всеволожский район, Колтушское городское ... - Фото 1
    Дом в Ленинградская область, Всеволожский район, Колтушское городское ... - Фото 2
    2 этажа, общая площадь 142м², участок 12 соток

    Код объекта: 1879038.В продаже двухэтажный дом площадью 142,7м2 на участке 12 сот. в отличной локации.Коттеджный поселок Прилесный в 16км от КАД.Отлично подойдет для большой семьи:1й этаж:- Большая кухня гостиная 29.2м2. с нее же выход на террасу площадью...
    • 2 эт.
    • 142 м²
    • 12 сот.
    8 800 000 Р
    Агент
    +7 (911) Показать номер
    Посмотреть контакты
    Дом в Ленинградская область, Всеволожский район, Куйвозовское с/пос, ... - Фото 1
    Дом в Ленинградская область, Всеволожский район, Куйвозовское с/пос, ... - Фото 2
    2 этажа, общая площадь 112м², участок 10 соток

    Представьте себе дом, в котором можно встретить Рождество, наслаждаться жизнью на природе, а летом купаться в озерах рядом и бесконечно радоваться прекрасным садом В 25 минутах езды на машине от Санкт-Петербурга, выполненный в стиле минимализм, расположен...
    • 2 эт.
    • 112 м²
    • 10 сот.
    9 000 000 Р
    Агент
    +7 (981) Показать номер
    Посмотреть контакты

    Не нашли подходящего объявления?

    Оставьте заявку, и наши риэлторы подберут дачу в районе Керро

    (0)