Реализация объекта недвижимости приостановлена

Информация об помещении

1
Этаж

Состояние и оснащение

Количество этажей
12
Развернуть

Помещение свободного назначения в Ленинградская область, Всеволожский ...

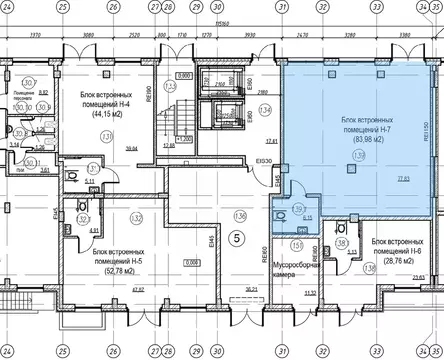
Коммерческое помещение (помещение свободного назначения) в жилом квартале Энфилд, Ленинградская область, п. Бугры. Площадь помещения - 119.3 кв. м, Корпус - Дом 24, Секция - 1, высота потолков - 4.2 м., выделенная мощность - 23,9 кВт.Есть возможность покупки в рассрочку.Рассрочка 2 года.Высокая проходимость, срок окупаемости 9-10 лет.Квартал Энфилд это 17 жилых корпусов, 295 000м2 жилья, 6208 квартир. 15 000 жителей. На территории работает два детских сада и школа с углубленным изучением английского языка. Рядом удобный выезд на КАД.

Читать полностью

    Реализация объекта недвижимости приостановлена

    Не нашли подходящего объявления?

    Оставьте заявку, и наши риэлторы подберут псн в районе

    (0)