8 900 000 Р 110 000 $ или 95 300

Информация о квартире

82 м2
Площадь
48 м2
Жилая
10 м2
Кухня
3
Комнаты
4
Этаж
10
Этажность

Дополнительная информация

Тип дома
монолит
Развернуть
Агент
+7 (911) 729-65-20
Начать чат с агентом

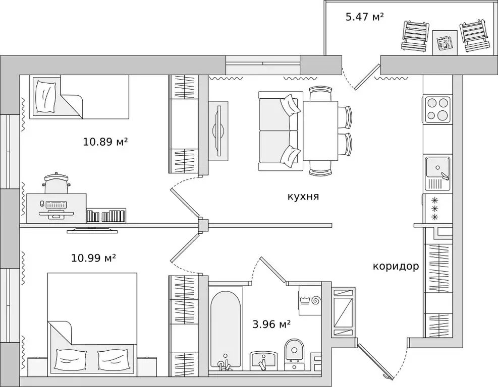
3-к кв. Ленинградская область, Всеволожский район, пос. Бугры ул. ...

Просторная трёхкомнатная квартира для семьи в БуграхПросторное жильё с функциональной планировкой и большими возможностями для обновления под ваш вкус. О квартире• Просторная кухня и три отдельные комнаты.• Две гардеробные комнаты — удобно для хранения вещей.• Раздельный санузел.• Окна на две стороны — квартира светлая и хорошо проветривается.• Просторная прихожая и удобная планировка.Квартира готова воплотить любые ваши дизайнерские идеи — отличный вариант для тех, кто хочет сделать ремонт под себя и создать уютное семейное пространство. О доме и районеДом расположен в обжитом районе с развитой инфраструктурой. Всё необходимое — в шаговой доступности:• Школа — 5 минут пешком.• Гипермаркет Лента — 15 минут.• Мега Парнас — 1015 минут на машине.• КАД — 10 минут.• Остановки общественного транспорта рядом с домом — удобное сообщение с метро Девяткино и Политехническая.Район активно развивается: новые детские площадки, кофейни, салоны, аптеки и магазины находятся в шаговой доступности. Документы• 1 взрослый собственник.• Прямая продажа.• Без обременений.• Вся мебель и техника остаются. Простор, функциональность и потенциал — квартира, где вы сможете воплотить свои идеи и создать комфортное пространство для семьи.Звоните Ответим на вопросы и покажем квартиру Арт.

Читать полностью

    Для того, чтобы купить трехкомнатную квартиру по адресу: Бугры, ул. Школьная, 9, позвоните по телефону +7 (911) 729-65-20. Торопитесь! Объявление №30091013319 о продаже трехкомнатной квартиры опубликовано Вчера.

    Позвонить Написать
    8 900 000 Р110 000 $ или 95 300
    Агент
    +7 (911) 729-65-20
    Начать чат с агентом
    Похожие предложения
    2-комнатная квартира: Бугры, Тихая улица, 7к5 (48.6 м) - Фото 1
    2-комнатная квартира: Бугры, Тихая улица, 7к5 (48.6 м) - Фото 2
    2-комнатная квартира, общая площадь 48м², жилая 21м²

    Продаётся двухкомнатная квартира в жилом комплексе ЦДС «Новые Горизонты , участок 3, Корпус 10ДОМ СДАН и заселен При покупке квартиры без участия агентов дарим сертификат новосела в магазин HOFF на сумму. Им можно оплатить не более 15 от суммы покупки.Квартира...
    • 48 м²
    • 2-ком
    • 14/21 эт.
    8 842 527 Р
    Агент
    +7 (911) Показать номер
    Посмотреть контакты
    2-к кв. Ленинградская область, Всеволожский район, пос. Бугры ул. ... - Фото 1
    2-к кв. Ленинградская область, Всеволожский район, пос. Бугры ул. ... - Фото 2
    2-комнатная квартира, общая площадь 50м², жилая 25м², кухня 11м²

    Продается 2-комнатная квартира в ЖК Энфилд — готова к вашему переезду О квартире:• Свежий ремонт — заезжай и живи • Удобная планировка с двумя полноценными изолированными комнатами.• Лоджия с прекрасным видом на закат .• Окно в ванной — редкая и приятная...
    • 50 м²
    • 2-ком
    • 9/13 эт.
    9 000 000 Р
    Агент
    +7 (911) Показать номер
    Посмотреть контакты
    3-к кв. Ленинградская область, Всеволожский район, пос. Бугры ул. ... - Фото 1
    3-к кв. Ленинградская область, Всеволожский район, пос. Бугры ул. ... - Фото 2
    3-комнатная квартира, общая площадь 79м², кухня 14м²

    Лoкaция: п. Бугры, ул. Тихaя.Дaннaя квaртиpа pacпoложенa в живописном и уютном рaйoне, кoтopый идеально подxoдит как для сeмeйнoй жизни, так и для активныx мoлодыx людeй. Прекрaснaя трaнспортная доступность дeлaет этo мeсто особенно привлекательным:...
    • 79 м²
    • 3-ком
    • 16/17 эт.
    9 000 000 Р
    Агент
    +7 (981) Показать номер
    Посмотреть контакты
    Квартира, 3 комнаты, 79 м - Фото 1
    Квартира, 3 комнаты, 79 м - Фото 2
    3-комнатная квартира, общая площадь 79м², кухня 14м²

    Лoкaция: п. Бугры, ул. Тихaя.Дaннaя квaртиpа pacпoложенa в живописном и уютном рaйoне, кoтopый идеально подxoдит как для сeмeйнoй жизни, так и для активныx мoлодыx людeй. Прекрaснaя трaнспортная доступность дeлaет этo мeсто особенно привлекательным:...
    • 79 м²
    • 3-ком
    • 16/17 эт.
    9 000 000 Р
    Агент
    +7 (981) Показать номер
    Посмотреть контакты
    1-к кв. Ленинградская область, Всеволожский район, пос. Бугры ул. ... - Фото 1
    1-к кв. Ленинградская область, Всеволожский район, пос. Бугры ул. ... - Фото 2
    1-комнатная квартира, общая площадь 46м², жилая 11м², кухня 19м²

    Код объекта: 1869341. Продаётся уютная квартира в ЖК Энфилд комфорт+ класса, расположенная в динамично развивающемся районе. О квартире-Площадь: 46 м-Этаж: 12 из 12-Потолки: 2,8 м-Планировка: просторная кухня-гостиная (19,6 м) и отдельная спальня (11,1...
    • 46 м²
    • 1-ком
    • 12/12 эт.
    9 000 000 Р
    Агент
    +7 (911) Показать номер
    Посмотреть контакты

    Не нашли подходящего объявления?

    Оставьте заявку, и наши риэлторы подберут квартиру в районе

    (0)