5 700 000 Р 69 810 $ или 60 160

Информация о квартире

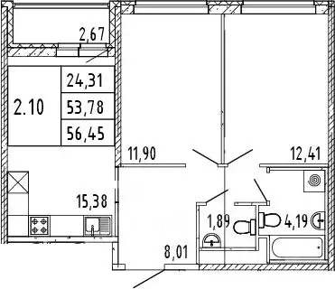
55 м2
Площадь
15 м2
Кухня
2
Комнаты
14
Этаж
19
Этажность
Развернуть
Агент
+7 (911) 991-46-32
Начать чат с агентом

2-к кв. Ленинградская область, Всеволожский район, пос. Бугры ул. ...

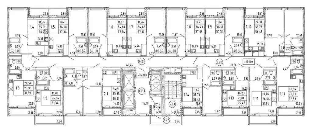
Продается просторная 2-комнатная квартира в современном доме 2024 года постройки. Общая площадь составляет 55.12 кв. м, кухня — 15.38 кв. м, высота потолков — 2.75 метра. Квартира расположена на 14 этаже 19-этажного здания, окна выходят во двор, что обеспечит вам тишину и уют. До ближайшего метро всего 9 минут на автомобиле.В квартире выполнен косметический ремонт, что позволит вам сразу переехать без дополнительных затрат. Планировка удобная: просторная кухня, совмещенный и отдельный санузлы, а также балкон, где можно наслаждаться вечерними видами. Дом оснащен пассажирским и двумя грузовыми лифтами, поэтому проблем с перемещением точно не возникнет.Дом новый, находится в отличном состоянии. Для вашего удобства предусмотрена подземная парковка, поэтому ваша машина всегда будет в безопасности. Близость магазинов позволит вам быстро и без труда совершать все необходимые покупки.Район прекрасно развит: рядом есть все необходимое для комфортной жизни — магазины, кафе, школы и детские сады. Удобная транспортная доступность: всего 9 минут на машине до метро, что делает это предложение особенно привлекательным для тех, кто ценит свое время.Квартира продается по договору купли-продажи. Возможна ипотека. Юридически чистая, без обременений, один взрослый собственник. Комиссия агентства уже включена в стоимость.Приглашаем вас на просмотр, чтобы лично оценить все преимущества этого предложения. Звоните и записывайтесь, чтобы не упустить шанс стать владельцем этой замечательной квартиры

Читать полностью

    Для того, чтобы купить двухкомнатную квартиру по адресу: Бугры, Тихая улица, 7к4, позвоните по телефону +7 (911) 991-46-32. Торопитесь! Объявление №30091006197 о продаже двухкомнатной квартиры опубликовано 19 октября 2025.

    Позвонить Написать
    5 700 000 Р69 810 $ или 60 160
    Агент
    +7 (911) 991-46-32
    Начать чат с агентом
    Похожие предложения
    Студия Ленинградская область, Всеволожский район, пос. Бугры аллея ... - Фото 1
    Студия Ленинградская область, Всеволожский район, пос. Бугры аллея ... - Фото 2
    студия, общая площадь 32м², жилая 20м², кухня 5м²

    Арт.Продается просторная студия - уникальной планировки. В элитном жилом комплексе Энфилд от надежного застройщика. Жилой квартал Энфилд представляет собой масштабный проект комплексного освоения территории с собственной развитой инфраструктурой....
    • 32 м²
    • студия-ком
    • 2/12 эт.
    5 800 000 Р
    Агент
    +7 (981) Показать номер
    Посмотреть контакты
    1-к кв. Ленинградская область, Всеволожский район, пос. Бугры ул. ... - Фото 1
    1-комнатная квартира, общая площадь 40м², кухня 10м²

    Продается большая однушка с ремонтом Общая площадь: 40 м Кухня - 10 метровКомната - 18 метровЛоджия - 3 метра Кухня: Современная с доводчиками и местом под посудомоечную машину Санузел: Раздельный Преимущества:• Тёплые полы в кухне и коридоре — уют...
    • 40 м²
    • 1-ком
    • 2/10 эт.
    5 600 000 Р
    Агент
    +7 (911) Показать номер
    Посмотреть контакты
    2-к кв. Ленинградская область, Всеволожский район, пос. Бугры ул. ... - Фото 1
    2-к кв. Ленинградская область, Всеволожский район, пос. Бугры ул. ... - Фото 2
    2-комнатная квартира, общая площадь 45м², кухня 6м²

    В продаже 2 к квартира в городе БугрыРассмотрим обмен на 1 к квартиру в Приморском районеО КВАРТИРЕ:- Функциональная планировка- Окна во двор- Раздельный санузел- Просторный коридор с местом под вместительный шкаф и гардеробную- Закрытый тамбур на 2 квартиры-...
    • 45 м²
    • 2-ком
    • 3/5 эт.
    5 800 000 Р
    Агент
    +7 (931) Показать номер
    Посмотреть контакты
    1-к кв. Ленинградская область, Всеволожский район, пос. Бугры ул. ... - Фото 1
    1-к кв. Ленинградская область, Всеволожский район, пос. Бугры ул. ... - Фото 2
    1-комнатная квартира, общая площадь 34м², жилая 15м², кухня 10м²

    Вашему вниманию предлагается уютная однокомнатная квартира в ЖК ЦДС Северные высоты .Общая площадь 34.9 кв.м.+ лоджия 3 кв.м.Комната 15 кв.м.Кухня 10 кв.м.Покупателем остаётся дорогой кухонный гарнитур со встроенной техникой (варочная панель, духовой...
    • 34 м²
    • 1-ком
    • 4/25 эт.
    5 690 000 Р
    Агент
    +7 (981) Показать номер
    Посмотреть контакты
    Студия Ленинградская область, Всеволожский район, пос. Бугры бул. ... - Фото 1
    Студия Ленинградская область, Всеволожский район, пос. Бугры бул. ... - Фото 2
    студия, общая площадь 27м², жилая 10м², кухня 7м²

    ЖК Энфилд комфортный комплекс для проживания: 1. На крыше имеется выход на современно обустроенную террасу-только для жителей. 2. Бульвар с фонтанами 3. Стадион, беговые и велодорожки, игровые детские площадки; спортивные площадки с баскетбольным полем,...
    • 27 м²
    • студия-ком
    • 2/13 эт.
    • панельный
    5 600 000 Р
    Агент
    +7 (981) Показать номер
    Посмотреть контакты

    Не нашли подходящего объявления?

    Оставьте заявку, и наши риэлторы подберут квартиру в районе

    (0)