Реализация объекта недвижимости приостановлена

Информация об помещении

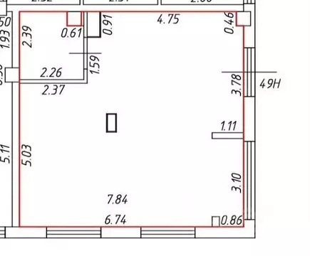
подвал
Этаж

Состояние и оснащение

Количество этажей
6
Развернуть

Торговая площадь в Ленинградская область, Всеволожск ул. Шевченко, ...

Предоставляется в аренду нежилое помещение в ЖК Ассорти (г. Всеволожск ЛО). Это динамично развивающийся район с дефицитом коммерческих помещений. Возможно, именно ваш бизнес здесь будет востребован и получит дополнительный импульс к развитию. ПОМЕЩЕНИЕ: Площадь 140.1 м2 Этаж: цоколь Высота потолка: 2,8 м Отделка: черновая Электричество: 15 кВт Вентиляция: трубы смонтированы, возможна установка оборудования под приточно-вытяжную вентиляцию. 2 входа (возможно разделение на 2 помещения) - вода, канализация, отопление - центральные. ДОМ: Год постройки - 2018 Статус: жилой дом, заселен. В составе ЖК Ассорти (всего 5 корпусов, 262 квартиры) МЕСТОПОЛОЖЕНИЕ: ЖК Ассорти удален на 11 км от КАД по Дороге Жизни. Проезд на его территорию с улицы Дорожной. Поблизости расположен роддом, поликлиника и больница, супермаркеты Пятерочка и Дикси , Спасская церковь. В 1,5 км, ближе к центру Всеволожска, работает лицей, музыкальная и несколько общеобразовательных школ. В 10 минутах пешком находится частный детский сад Эрудит . Всеволожск считается экологически чистым городом. На небольшом расстоянии от квартала раскинулся хвойный лесной массив и расположено несколько водоемов. Добраться до комплекса можно несколькими путями: по Дороге Жизни автомобилем, на автобусе или электричкой от Финляндского вокзала до ж/д станции, которая находится в 2 километрах. До станций метро Ладожская и Площадь Ленина ехать примерно полчаса.

Читать полностью

    Реализация объекта недвижимости приостановлена

    Не нашли подходящего объявления?

    Оставьте заявку, и наши риэлторы подберут торговое помещение в районе Всеволожска

    (0)