18 583 500 Р 244 800 $ или 208 700

Информация о таунхаусе

90 м2
Площадь
2
Этажность
3 cоток
Участок
Развернуть
Агент
+7 (981) 786-87-19
Начать чат с агентом

Таунхаус в Ленинградская область, Всеволожск ш. Южное (91 м)

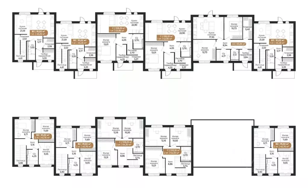
Двухэтажный таунхаус площадью 90.71 кв. м имеет две жилые комнаты (10.56 и 11.65 кв. м), отдельную гостиную (10.75 кв. м) и кухню (10.58 кв. м), просторную гардеробную и маленькую кладовую, два санузла. Во входной зоне предусмотрено место под гардеробную. Перед входом в дом есть 2 парковочных места, а на заднем дворе собственное патио площадью 78.2-238.2 кв. м, где можно организовать площадку для отдыха или барбекю. Внутренняя отделкаТаунхаус сдается с полной чистовой отделкой и готовой кухней. В основе дизайн-концепции лежат идеи скандинавского минимализма. Светлые природные оттенки подойдут для воплощения большинства интерьерных идей. В отделке использован износостойкий ламинат 32 класса с древесной фактурой, белые матовые флизелиновые обои под покраску, плинтуса в цвет стен, белые матовые натяжные потолки с креплением под люстру и встроенными спотами, межкомнатные двери из МДФ с черной фурнитурой. В санузлах крупная керамическая плитка с мраморным узором на стенах и серая на полу; унитаз с инсталляцией, белая раковина со смесителем, белая акриловая ванна с экраном. Предусмотрено место для подключения стиральной машины. Кухонный гарнитур спроектирован по индивидуальным параметрам. Корпус и нижний фасад светлого оттенка дуба, а верхний фасад белого цвета. Во внутреннем оснащении есть лоток для столовых приборов и двухуровневая сушилка для посуды. Кухня укомплектована встроенной техникой: 4-конфорочная электрическая варочная поверхность, электрический духовой шкаф, вытяжка, посудомоечная машина, встроенная композитная мойка и смеситель с аэратором. Внешняя отделкаФасад выполнен из трехслойных железобетонных стеновых панелей по монолитной технологии. Поверхность наружного слоя из архитектурного бетона имитирует текстуру и цвет деревянных реек и досок, а также кирпича. Расположение и инфраструктура Жилой комплекс СветЛОасполагается в экологически чистом районе. Он окружен лесами, озерами и заповедниками. На закрытой охраняемой территории свой коммерческий кластер с пунктами выдачи, коворкингом, кафе и ресторанами, магазинами, фитнес-центром; променад длиной 1.5 км, пруд с набережной и пляжной зоной, сухой фонтан, уличные тренажеры, детские площадки, парк для выгула собак. Социальная инфраструктура включает детский сад на 140 мест и общественные прогулочные зоны японский сад и сад трав.

Читать полностью

    Для того, чтобы купить квартирутаунхаус по адресу: Всеволожск, ш. Южное, позвоните по телефону +7 (981) 786-87-19. Торопитесь! Объявление №50016502441 о продаже -1-комнатного таунхауса опубликовано 15 января 2026.

    Позвонить Написать
    18 583 500 Р244 800 $ или 208 700
    Агент
    +7 (981) 786-87-19
    Начать чат с агентом
    Похожие предложения в Всеволожске
    Таунхаус в Ленинградская область, Всеволожск ш. Южное (91 м) - Фото 1
    Таунхаус в Ленинградская область, Всеволожск ш. Южное (91 м) - Фото 2
    2 этажа, общая площадь 90м², участок 4 сотки

    Двухэтажный таунхаус площадью 90.71 кв. м имеет две жилые комнаты (10.56 и 11.65 кв. м), отдельную гостиную (10.75 кв. м) и кухню (10.58 кв. м), просторную гардеробную и маленькую кладовую, два санузла. Во входной зоне предусмотрено место под гардеробную....
    • 2 эт.
    • 90 м²
    • 4 сот.
    18 583 500 Р
    Агент
    +7 (981) Показать номер
    Посмотреть контакты
    Таунхаус в Ленинградская область, Всеволожск Советская ул., 54 (249 м) - Фото 1
    Таунхаус в Ленинградская область, Всеволожск Советская ул., 54 (249 м) - Фото 2
    3 этажа, общая площадь 249м², участок 7 соток

    В тихом, камерном посёлке среди вековых сосен и берёз, в продаже просторный таунхаус, площадью 249 м. Таунхаус расположен на земельном участке 7,5 соток. Такая комплектация размеров объекта и участка является идеальным сочетанием уюта, комфорта и единения...
    • 3 эт.
    • 249 м²
    • 7 сот.
    18 290 000 Р
    Агент
    +7 (981) Показать номер
    Посмотреть контакты
    Таунхаус в Ленинградская область, Всеволожск ш. Южное (91 м) - Фото 1
    Таунхаус в Ленинградская область, Всеволожск ш. Южное (91 м) - Фото 2
    2 этажа, общая площадь 90м², участок 3 сотки

    Двухэтажный таунхаус площадью 90.71 кв. м имеет две жилые комнаты (10.56 и 11.65 кв. м), отдельную гостиную (10.75 кв. м) и кухню (10.58 кв. м), просторную гардеробную и маленькую кладовую, два санузла. Во входной зоне предусмотрено место под гардеробную....
    • 2 эт.
    • 90 м²
    • 3 сот.
    18 583 500 Р
    Агент
    +7 (981) Показать номер
    Посмотреть контакты
    Таунхаус в Ленинградская область, Всеволожск ш. Южное (91 м) - Фото 1
    Таунхаус в Ленинградская область, Всеволожск ш. Южное (91 м) - Фото 2
    2 этажа, общая площадь 90м², участок 4 сотки

    Двухэтажный таунхаус площадью 90.71 кв. м имеет две жилые комнаты (10.56 и 11.65 кв. м), отдельную гостиную (10.75 кв. м) и кухню (10.58 кв. м), просторную гардеробную и маленькую кладовую, два санузла. Во входной зоне предусмотрено место под гардеробную....
    • 2 эт.
    • 90 м²
    • 4 сот.
    18 583 500 Р
    Агент
    +7 (981) Показать номер
    Посмотреть контакты
    Таунхаус в Ленинградская область, Всеволожск ш. Южное (91 м) - Фото 1
    Таунхаус в Ленинградская область, Всеволожск ш. Южное (91 м) - Фото 2
    2 этажа, общая площадь 90м², участок 2 сотки

    Двухэтажный таунхаус площадью 90.71 кв. м имеет две жилые комнаты (10.56 и 11.65 кв. м), отдельную гостиную (10.75 кв. м) и кухню (10.58 кв. м), просторную гардеробную и маленькую кладовую, два санузла. Во входной зоне предусмотрено место под гардеробную....
    • 2 эт.
    • 90 м²
    • 2 сот.
    18 297 600 Р
    Агент
    +7 (981) Показать номер
    Посмотреть контакты

    Не нашли подходящего объявления?

    Оставьте заявку, и наши риэлторы подберут таунхаус в районе Всеволожска

    (0)