21 344 600 Р 267 400 $ или 229 700

Информация о таунхаусе

112 м2
Площадь
1
Этажность
2 cоток
Участок
Развернуть
Агент
+7 (981) 786-87-19
Начать чат с агентом

Таунхаус в Ленинградская область, Всеволожск ш. Южное (112 м)

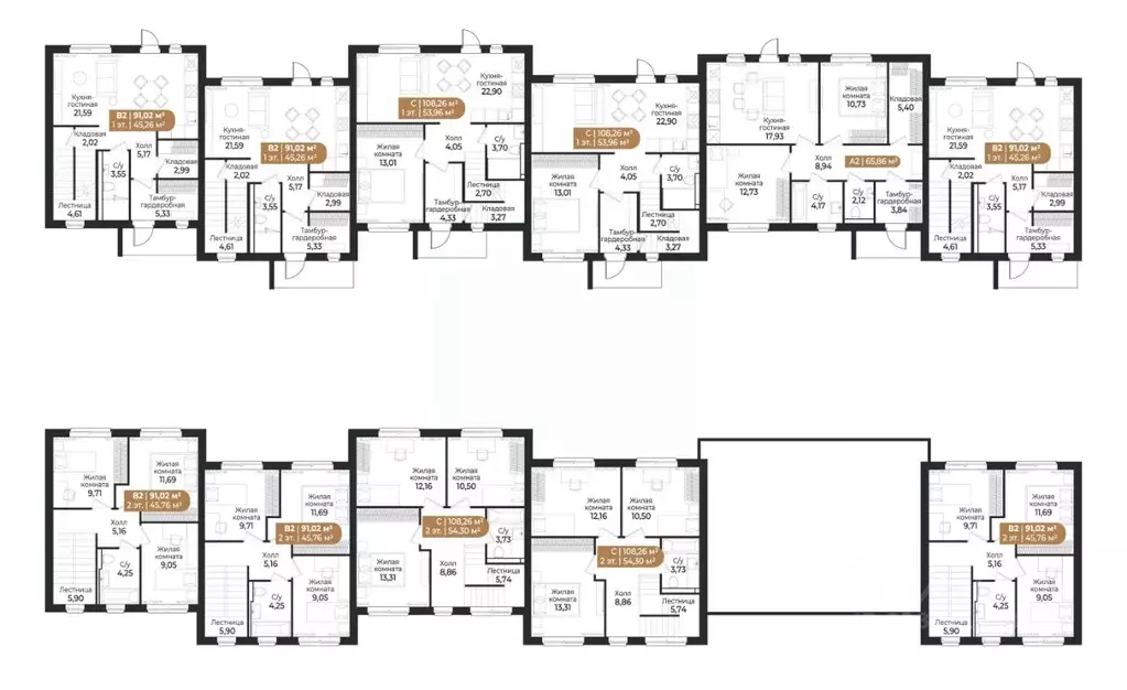
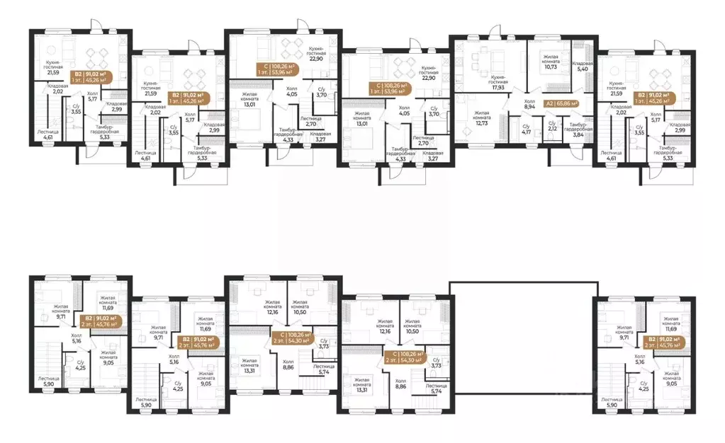
Двухэтажный таунхаус евро-планировки площадью 108.26 кв. м имеет четыре жилые комнаты (10.50, 12.16, 13.01 и 13.31 кв. м), просторную кухню-гостиную (22.90 кв. м), маленькую кладовую и два санузла. Во входной зоне предусмотрено место под небольшую гардеробную зону. Перед входом в дом есть 2 парковочных места, а на заднем дворе собственное патио площадью 146.7-366.7 кв. м, где можно организовать площадку для отдыха или барбекю. Внутренняя отделкаТаунхаус сдается с полной чистовой отделкой и готовой кухней. В основе дизайн-концепции лежат идеи скандинавского минимализма. Светлые природные оттенки подойдут для воплощения большинства интерьерных идей. В отделке использован износостойкий ламинат 32 класса с древесной фактурой, белые матовые флизелиновые обои под покраску, плинтуса в цвет стен, белые матовые натяжные потолки с креплением под люстру и встроенными спотами, межкомнатные двери из МДФ с черной фурнитурой. В санузлах крупная керамическая плитка с мраморным узором на стенах и серая на полу; унитаз с инсталляцией, белая раковина со смесителем, белая акриловая ванна с экраном. Предусмотрено место для подключения стиральной машины. Кухонный гарнитур спроектирован по индивидуальным параметрам. Корпус и нижний фасад светлого оттенка дуба, а верхний фасад белого цвета. Во внутреннем оснащении есть лоток для столовых приборов и двухуровневая сушилка для посуды. Кухня укомплектована встроенной техникой: 4-конфорочная электрическая варочная поверхность, электрический духовой шкаф, вытяжка, посудомоечная машина, встроенная композитная мойка и смеситель с аэратором. Внешняя отделкаФасад выполнен из трехслойных железобетонных стеновых панелей по монолитной технологии. Поверхность наружного слоя из архитектурного бетона имитирует текстуру и цвет деревянных реек и досок, а также кирпича. Расположение и инфраструктура Жилой комплекс СветЛОасполагается в районе с экологически чистом районе. Он окружен лесами, озерами и заповедниками. На закрытой охраняемой территории свой коммерческий кластер с пунктами выдачи, коворкингом, кафе и ресторанами, магазинами, фитнес-центром; променад длиной 1.5 км, пруд с набережной и пляжной зоной, сухой фонтан, уличные тренажеры, детские площадки, парк для выгула собак. Социальная инфраструктура включает детский сад на 140 мест и общественные прогулочные зоны японский сад и сад трав.

Читать полностью

    Для того, чтобы купить квартирутаунхаус по адресу: Всеволожск, ш. Южное, позвоните по телефону +7 (981) 786-87-19. Торопитесь! Объявление №50016368467 о продаже -1-комнатного таунхауса опубликовано 16 октября 2025.

    Позвонить Написать
    21 344 600 Р267 400 $ или 229 700
    Агент
    +7 (981) 786-87-19
    Начать чат с агентом
    Похожие предложения в Всеволожске
    Таунхаус в Ленинградская область, Всеволожск ш. Южное (108 м) - Фото 1
    Таунхаус в Ленинградская область, Всеволожск ш. Южное (108 м) - Фото 2
    2 этажа, общая площадь 108м², участок 2 сотки

    Двухэтажный таунхаус евро-планировки площадью 108.26 кв. м имеет четыре жилые комнаты (10.50, 12.16, 13.01 и 13.31 кв. м), просторную кухню-гостиную (22.90 кв. м), маленькую кладовую и два санузла. Во входной зоне предусмотрено место под небольшую гардеробную...
    • 2 эт.
    • 108 м²
    • 2 сот.
    21 344 600 Р
    Агент
    +7 (981) Показать номер
    Посмотреть контакты
    Таунхаус в Ленинградская область, Всеволожск ш. Южное (108 м) - Фото 1
    Таунхаус в Ленинградская область, Всеволожск ш. Южное (108 м) - Фото 2
    2 этажа, общая площадь 108м², участок 2 сотки

    Двухэтажный таунхаус евро-планировки площадью 108.26 кв. м имеет четыре жилые комнаты (10.50, 12.16, 13.01 и 13.31 кв. м), просторную кухню-гостиную (22.90 кв. м), маленькую кладовую и два санузла. Во входной зоне предусмотрено место под небольшую гардеробную...
    • 2 эт.
    • 108 м²
    • 2 сот.
    21 344 600 Р
    Агент
    +7 (981) Показать номер
    Посмотреть контакты
    Таунхаус в Ленинградская область, Всеволожск ш. Южное (108 м) - Фото 1
    Таунхаус в Ленинградская область, Всеволожск ш. Южное (108 м) - Фото 2
    2 этажа, общая площадь 108м², участок 2 сотки

    Двухэтажный таунхаус евро-планировки площадью 108.26 кв. м имеет четыре жилые комнаты (10.50, 12.16, 13.01 и 13.31 кв. м), просторную кухню-гостиную (22.90 кв. м), маленькую кладовую и два санузла. Во входной зоне предусмотрено место под небольшую гардеробную...
    • 2 эт.
    • 108 м²
    • 2 сот.
    21 344 600 Р
    Агент
    +7 (981) Показать номер
    Посмотреть контакты
    Таунхаус в Ленинградская область, Всеволожск ш. Южное (108 м) - Фото 1
    Таунхаус в Ленинградская область, Всеволожск ш. Южное (108 м) - Фото 2
    2 этажа, общая площадь 108м², участок 2 сотки

    Двухэтажный таунхаус евро-планировки площадью 108.26 кв. м имеет четыре жилые комнаты (10.50, 12.16, 13.01 и 13.31 кв. м), просторную кухню-гостиную (22.90 кв. м), маленькую кладовую и два санузла. Во входной зоне предусмотрено место под небольшую гардеробную...
    • 2 эт.
    • 108 м²
    • 2 сот.
    21 344 600 Р
    Агент
    +7 (981) Показать номер
    Посмотреть контакты
    Таунхаус в Ленинградская область, Всеволожск ш. Южное (108 м) - Фото 1
    Таунхаус в Ленинградская область, Всеволожск ш. Южное (108 м) - Фото 2
    2 этажа, общая площадь 108м², участок 2 сотки

    Двухэтажный таунхаус евро-планировки площадью 108.26 кв. м имеет четыре жилые комнаты (10.50, 12.16, 13.01 и 13.31 кв. м), просторную кухню-гостиную (22.90 кв. м), маленькую кладовую и два санузла. Во входной зоне предусмотрено место под небольшую гардеробную...
    • 2 эт.
    • 108 м²
    • 2 сот.
    21 344 600 Р
    Агент
    +7 (981) Показать номер
    Посмотреть контакты

    Не нашли подходящего объявления?

    Оставьте заявку, и наши риэлторы подберут таунхаус в районе Всеволожска

    (0)