 
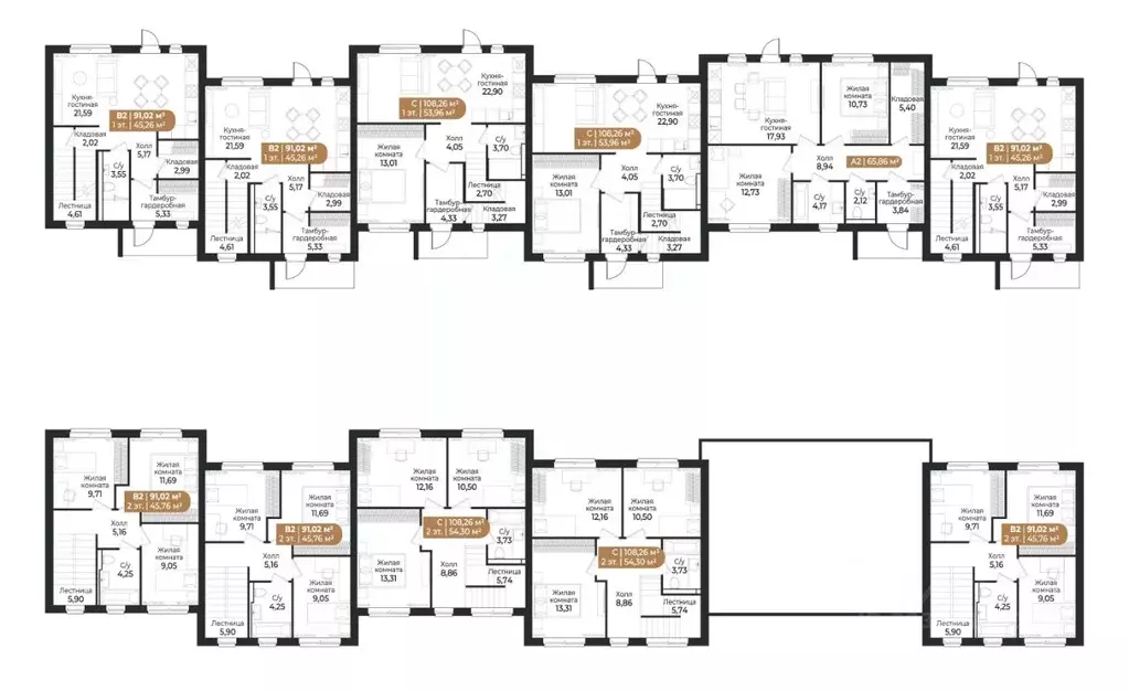
										Двухэтажный таунхаус евро-планировки площадью 90.02 кв. м имеет три небольшие жилые комнаты (9.05, 9.71 и 11.69 кв. м), просторную кухню-гостиную (21.59 кв. м), две кладовые и два санузла. Во входной зоне предусмотрено место под гардеробную. Перед входом в дом есть 2 парковочных места, а на заднем дворе собственное патио площадью 75.2-309.2 кв. м, где можно организовать площадку для отдыха или барбекю. Внутренняя отделкаТаунхаус сдается с полной чистовой отделкой и готовой кухней. В основе дизайн-концепции лежат идеи скандинавского минимализма. Светлые природные оттенки подойдут для воплощения большинства интерьерных идей. В отделке использован износостойкий ламинат 32 класса с древесной фактурой, белые матовые флизелиновые обои под покраску, плинтуса в цвет стен, белые матовые натяжные потолки с креплением под люстру и встроенными спотами, межкомнатные двери из МДФ с черной фурнитурой. В санузлах крупная керамическая плитка с мраморным узором на стенах и серая на полу; унитаз с инсталляцией, белая раковина со смесителем, белая акриловая ванна с экраном. Предусмотрено место для подключения стиральной машины. Кухонный гарнитур спроектирован по индивидуальным параметрам. Корпус и нижний фасад светлого оттенка дуба, а верхний фасад белого цвета. Во внутреннем оснащении есть лоток для столовых приборов и двухуровневая сушилка для посуды. Кухня укомплектована встроенной техникой: 4-конфорочная электрическая варочная поверхность, электрический духовой шкаф, вытяжка, посудомоечная машина, встроенная композитная мойка и смеситель с аэратором. Внешняя отделкаФасад выполнен из трехслойных железобетонных стеновых панелей по монолитной технологии. Поверхность наружного слоя из архитектурного бетона имитирует текстуру и цвет деревянных реек и досок, а также кирпича. Расположение и инфраструктура Жилой комплекс СветЛОасполагается в экологически чистом районе. Он окружен лесами, озерами и заповедниками. На закрытой охраняемой территории свой коммерческий кластер с пунктами выдачи, коворкингом, кафе и ресторанами, магазинами, фитнес-центром; променад длиной 1.5 км, пруд с набережной и пляжной зоной, сухой фонтан, уличные тренажеры, детские площадки, парк для выгула собак. Социальная инфраструктура включает детский сад на 140 мест и общественные прогулочные зоны японский сад и сад трав.
Для того, чтобы купить квартирутаунхаус по адресу: Всеволожск, ш. Южное, позвоните по телефону +7 (981) 786-87-19. Торопитесь! Объявление №50016368442 о продаже -1-комнатного таунхауса опубликовано 15 октября 2025.
 
								 
											
                                                                         
											
                                                                         
											
                                                                         
											
                                                                         
											
                                                                        Оставьте заявку, и наши риэлторы подберут таунхаус в районе Всеволожска
