18 700 000 Р 242 000 $ или 204 800

Информация об помещении

1
Этаж

Состояние и оснащение

Количество этажей
5
Развернуть
Агент
+7 (911) 025-31-63
Начать чат с агентом

Помещение свободного назначения в Ленинградская область, Всеволожск ...

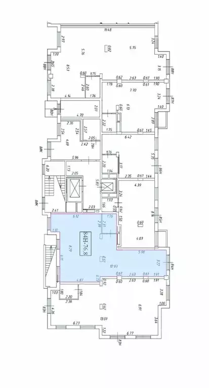
Продается от застройщика коммерческое помещение площадью 95,35 м2, в жилом комплексе бизнес-класса Взлетная 16 . Помещение свободного назначения, располагается на первом этаже в 5-этажном жилом комплексе. Подходит под различные виды бизнеса.Преимущества:- Витринные окна, выходят на оживленную улицу; - 3 отдельных входа, возможность разделения помещения;- Высокие потолки 3,4 метра;- Выделенная мощность 25 кВт, хватит для использования любого оборудования. Есть возможность увеличить мощность;- Две мокрые точки, стены не являются несущим конструктивом;- Два вент канала;- Место под размещение рекламной вывески для каждого помещения;

Читать полностью
    Позвонить Написать
    18 700 000 Р242 000 $ или 204 800
    Агент
    +7 (911) 025-31-63
    Начать чат с агентом
    Похожие предложения
    Продается ПСН 70.21 м2 - Фото 1
    Продается ПСН 70.21 м2 - Фото 2
    Продается ПСН 70.21 м2 - Фото 3
    Продается ПСН 70.21 м2 - Фото 4
    Продается ПСН 70.21 м2 - Фото 5
    Продается ПСН 70.21 м2 - Фото 6
    полезная площадь 70.2м²

    Продаётся нежилое помещение свободного назначения в новом жилом районе Заречный парк от ПИК. Открытая планировка, витринное остекление, удобный вход на уровне земли. Помещение (номер на площадке: №4) расположено по адресу: Ленинградская область, Всеволожский...
    • 70.2 м²
    • 1/24 эт.
    19 672 842 Р
    Агент
    +7 (812) Показать номер
    Посмотреть контакты
    Помещение свободного назначения в Ленинградская область, Кудрово г. ... - Фото 1
    Помещение свободного назначения класса бизнес 63.75 м в ЖК iD Kudrovo II с выдержанными фасадами и превосходным витражным остеклением и современной инженерией. Каждому коммерческому помещению выделена зона для стилизованной вывески. Каждое помещение...
    • 1/9 эт.
    18 168 750 Р
    Агент
    +7 (981) Показать номер
    Посмотреть контакты
    Помещение свободного назначения в Ленинградская область, Кудрово г. ... - Фото 1
    Помещение свободного назначения класса бизнес 76.8 м в ЖК iD Kudrovo с выдержанными фасадами и превосходным витражным остеклением и современной инженерией. Каждому коммерческому помещению выделена зона для стилизованной вывески. Каждое помещение оборудовано...
    • 1/12 эт.
    19 200 000 Р
    Агент
    +7 (981) Показать номер
    Посмотреть контакты
    Помещение свободного назначения в Ленинградская область, Кудрово г. ... - Фото 1
    Помещение свободного назначения класса бизнес 79.7 м в ЖК iD Kudrovo с выдержанными фасадами и превосходным витражным остеклением и современной инженерией. Каждому коммерческому помещению выделена зона для стилизованной вывески. Каждое помещение оборудовано...
    • 1/12 эт.
    19 128 000 Р
    Агент
    +7 (981) Показать номер
    Посмотреть контакты
    Помещение свободного назначения в Ленинградская область, Сертолово ... - Фото 1
    Помещение свободного назначения в Ленинградская область, Сертолово ... - Фото 2
    ПЛАТИМ АГЕНТАМ. Поможем с планом рассадки, ремонтом, мебелью. Строящийся жилой комплекс расположен в г. Сертолово Ленинградской области на ул. Дмитрия Кожемякина, в непосредственной близости от планируемого транспортно-пересадочного узла Сертолово, который...
    • 1/11 эт.
    18 557 500 Р
    Агент
    +7 (933) Показать номер
    Посмотреть контакты

    Не нашли подходящего объявления?

    Оставьте заявку, и наши риэлторы подберут псн в районе Всеволожска

    (0)