12 990 000 Р 159 700 $ или 137 900

Информация о коттедже

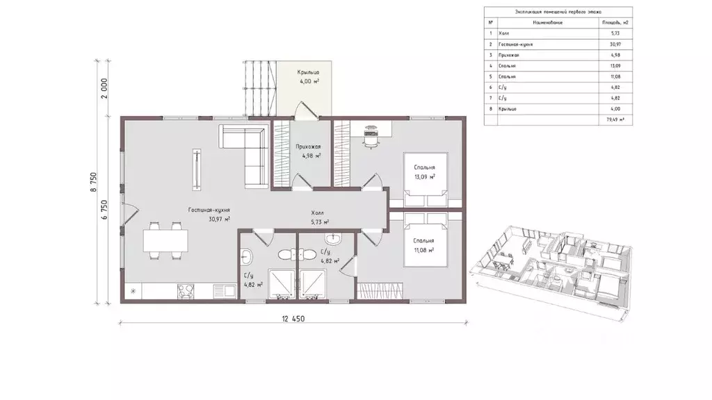
130 м2
Площадь
1
Этажность
8 cоток
Участок

Дополнительная информация

Дом продаётся вместе с участком
есть
Развернуть
Агент
+7 (981) 899-75-95
Начать чат с агентом

Дом, 130 м

В продаже дом из газобетона, который подойдет как для постоянного проживания, так и отдыха. Подходит под Семейную ипотеку.Локация:Дом расположен в коттеджном посёлке Щеглово Сити. Отличное место. Природа рядом с городом. Всего 5 КМ до ВСЕВОЛОЖСКА.Рядом все необходимое - школы, детские сады, магазины, ТЦ, аптеки, фитнес. Вокруг расположены красивые парки и леса, озера, гольф-клуб и пляжи. Отличная транспортная доступность: съезд с КАД в 25 минутах. Ходят автобусы и электрички от Санкт-Петербурга. Рядом остановка общественного транспорта. До поселка новая, отличная асфальтированная дорога. Газификация поселка в 2026 году. Трубы уже проложены. Участок:Участок 8 соток со статусом ИЖС, сухой, ровный, правильной формы разработан, дренажные системы проложены. Расположен вдали от въезда в поселок, благодаря чему отсутствует лишний шум. Из дома на участок выведены резервные проходки для воды и электричества, все продуманно для дальнейшего благоустройства участка и удобства строительства бани, беседки, и создания ландшафтного дизайна.Дом:Дом 2025г., построен по проекту, основательно, с использованием надежных материалов. Готовы предоставить фото фиксацию всех этапов строительства. Стены Газобетон СК 375 мм плотностью D500Утепление по фасаду минвата Роквул 50 ммОблицовка дома силикатно-силиконовая штукатурка VetonitОблицовка Цоколя дома камнем (не пластиковые панели под камень)Фундамент бетонная плита 300 ммОкна черный профиль (в массе) VEKA SL70, фурнитура ROTO, стеклопакеты DS Next. Высота потолков 3 м. В гостиной Второй свет. Панорамные окна.Терраса 18 м2.Утепление кровли 250 мм.Входная дверь с терморазрывом и стеклопакетом. Вода скважина. Канализация - станция биологической очистки (Колос 5). Электричество 15 кВ уже на участке.Вентиляция сделана.Ливневая система с водоотведением сделана.Дом готов под дальнейшую отделку. При желании готовы предложить разработку дизайн проекта, и дальнейший ремонт. Документы: Подходит по семейную ипотеку. Разрешение на строительство есть.Продажа от юридического лица возможна.Можно оформить постоянную прописку.Сейчас в процессе постановки на кадастровый учет.В подарок нашему покупателю помощь с одобрением ипотеки. Арт.

Читать полностью

    Для того, чтобы купить 1-этажный коттедж по адресу: Всеволожск, Южное шоссе, позвоните по телефону +7 (981) 899-75-95. Торопитесь! Объявление №50016531415 о продаже одноэтажного коттеджа опубликовано 29 октября 2025.

    Позвонить Написать
    12 990 000 Р159 700 $ или 137 900
    Агент
    +7 (981) 899-75-95
    Начать чат с агентом
    Похожие предложения
    Дом в Ленинградская область, Всеволожск ул. Евграфова, 29 (198 м) - Фото 1
    Дом в Ленинградская область, Всеволожск ул. Евграфова, 29 (198 м) - Фото 2
    1 этаж, общая площадь 198м², участок 9 соток

    ID: 311507-Уникальное предложение Ценителям спокойной, комфортной жизни за городом -Два жилых дома на одном участке Вариант который идеально подходит для большой, дружной семьи.-Дом расположен в шаговой доступности от станции Мельничный Ручей (...
    • 1 эт.
    • 198 м²
    • 9 сот.
    12 000 000 Р
    Агент
    +7 (981) Показать номер
    Посмотреть контакты
    Коттедж в Ленинградская область, Всеволожск 3-я линия, 1 (148 м) - Фото 1
    Коттедж в Ленинградская область, Всеволожск 3-я линия, 1 (148 м) - Фото 2
    2 этажа, общая площадь 147м², участок 19 соток

    Приватный участок с многовековым дубом и елями. Крайний к реке Лубья.Бернгардовка исторический пригород Санкт-Петербурга ( дата основания 1862 г) тихое, зеленое место с развитой инфраструктурой в 15 минутах города. Дом сруб. Утепление+ облицовка деревом....
    • 2 эт.
    • 147 м²
    • 19 сот.
    14 000 000 Р
    Агент
    +7 (989) Показать номер
    Посмотреть контакты
    Коттедж в Ленинградская область, Всеволожский район, Лесколовское ... - Фото 1
    Коттедж в Ленинградская область, Всеволожский район, Лесколовское ... - Фото 2
    1 этаж, общая площадь 124м², участок 6 соток

    Арт.Современный коттедж Дача у Лесколово За городом, всего 40 мин от Петербурга, среди хвойного леса, чистый воздух и тишина. Здесь по утрам можно увидеть лосей, а вечером — звёзды, которых не видно в городе. Если вы мечтали о доме, где всё продумано...
    • 1 эт.
    • 124 м²
    • 6 сот.
    12 000 000 Р
    Агент
    +7 (981) Показать номер
    Посмотреть контакты
    Дом в Ленинградская область, Всеволожский район, Колтушское городское ... - Фото 1
    Дом в Ленинградская область, Всеволожский район, Колтушское городское ... - Фото 2
    1 этаж, общая площадь 79м², участок 6 соток

    Арт.Ваш будущий дом в деревне Кальтино Уникальный шанс стать владельцем современного, комфортабельного жилья на участке 6 соток Предлагается полностью подготовленный участок с подрядом под зимний уютный дом с чистовой отделкой площадью 75 кв.м. — идеально...
    • 1 эт.
    • 79 м²
    • 6 сот.
    12 846 550 Р
    Агент
    +7 (911) Показать номер
    Посмотреть контакты
    Дом в Ленинградская область, Всеволожский район, Бугровское городское ... - Фото 1
    Дом в Ленинградская область, Всеволожский район, Бугровское городское ... - Фото 2
    2 этажа, общая площадь 157м², участок 15 соток

    Арт.Представляем Вашему вниманию прекрасный дачный дом 157 кв.м на участке 15 соток в деревне Корабсельки Ленинградской области Дом в три этажа с просторной кухней-гостиной занимает небольшую часть ровного сухого участка практически правильной прямоугольной...
    • 2 эт.
    • 157 м²
    • 15 сот.
    13 500 000 Р
    Агент
    +7 (911) Показать номер
    Посмотреть контакты

    Не нашли подходящего объявления?

    Оставьте заявку, и наши риэлторы подберут купить дом в районе Всеволожска

    (0)