32 850 000 Р 415 000 $ или 357 700

Информация о коттедже

280 м2
Площадь
2
Этажность
7 cоток
Участок

Дополнительная информация

Дом продаётся вместе с участком
есть
Развернуть
Агент
+7 (911) 179-26-54
Начать чат с агентом

Дом в Ленинградская область, Всеволожск ул. Воздвиженская, 16 (280 м)

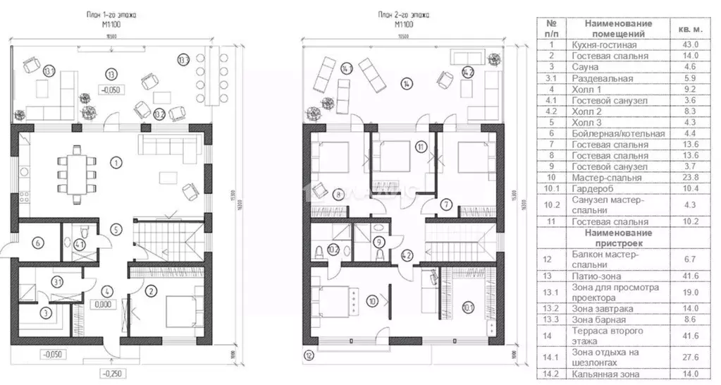
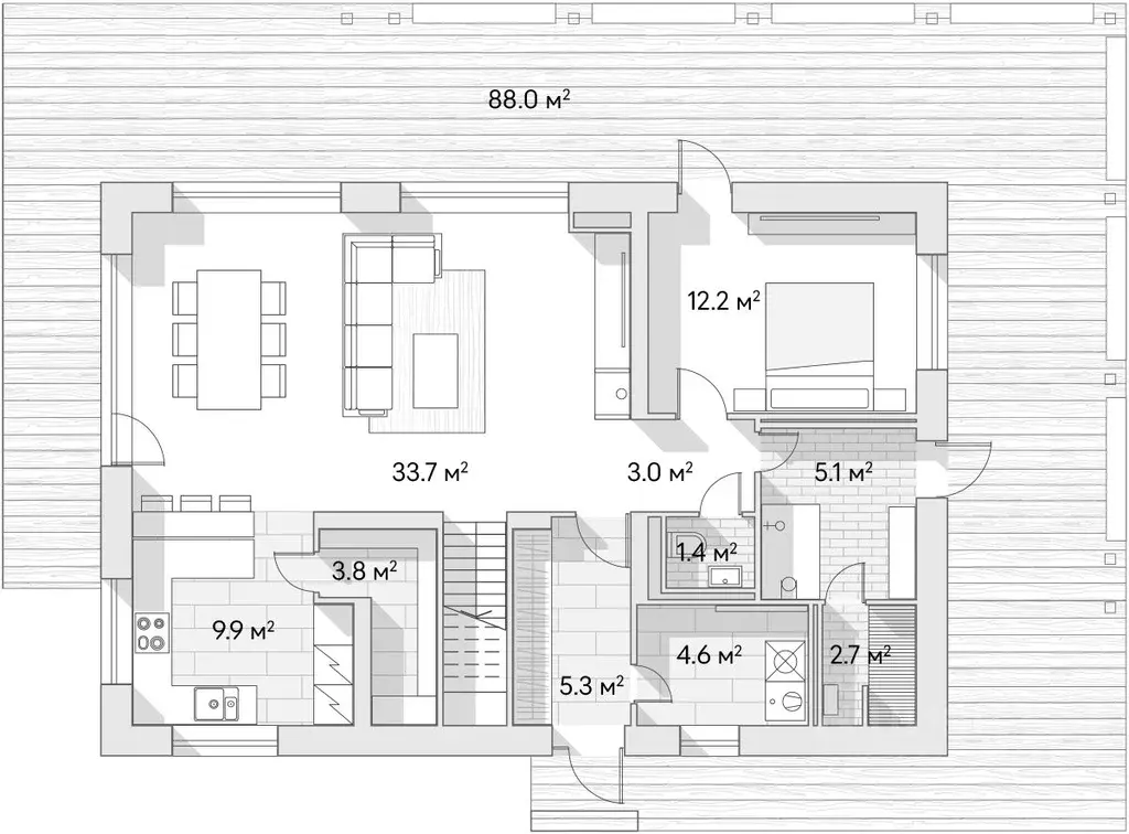
Код объекта: 1330540.В продаже коттедж в элитном загородном комплексе гостиничного типа 4 звезды Дом находится на закрытой охраняемой территории. Круглосуточное обслуживание front office manager, house keeping, инженерная служба, служба безопасности; При передачи коттеджа в управление или аренду управляющей компании чистый годовой доход от . Доходность подтверждаемая. Ландшафтный дизайн участка, современный внутренний интерьер, функциональное зонирование территории резиденции Престижная локация и великолепная транспортная доступность. Всего 20 минут от КАДа. 33 километра до центра Санкт Петербурга. К резиденциям ведут 3 крупных магистрали. В непосредственной близости от комплекса располагаются: - гольф поле международного уровня Mill Creek (прямо за забором); - 5 озер (1-е и 2-е Ждановское, Круглое, Длинное, Бездонное), - 5 парков (Софиевка, Кенша, Румболово, Приютино, Загородное) и 3 большие парковые зоны (Кочубеевская, Достоевская, Державинская); - сосновый лес, гольф поле, СПА-комплекс, - Гипермаркет Лента, зимний парк, конноспортивный клуб, теннисная академия, парашютный клуб Валькирия , Горнолыжный курорт Юкки-Парк , всесезонный курорт Охта-Парк Резиденция построена по самым современным технологиям: - фундамент утепленная шведская плита, - стены 300 мм газобетон плотностью D500, каменная вата, ветро-влагозащита и фальцевая кровля, - двери повышенной шумоизоляцией и энергоэффективные стеклопакеты с защитой от УФ, заполненные аргоном. Благодаря умному зонированию каждый всегда найдет себе занятие по вкусу. Имеется более 10 уникальных функциональных зон. Умная планировка дома- 5 спален с гардеробными, 1 мастер-спальня с собственным санузлом, 2 гостевых санузла +комната для хранения личных вещей владельца. Просторная кухня-гостиная со всей необходимой техникой. Отдельное помещение-сауна, работающая в трех режимах(как финская, русская, турецкая). Терраса с шезлонгами и зоной для загара. Кальянная зона из негорючих материалов. Патио-зона с мягкими диванами и проектором. Барная стойка на открытом воздухе с зоной для завтрака. Закрытая зона для BBQ. Мягкая костровая зона. СПА зона на 8 человек. Резиденция уже оборудована всем необходимым, дополнительные вложения не требуются Вся мебель выполнена на заказ. Кондиционеры с функцией обогрева и охлаждения. Современная система вентиляции. ТВ с кабельными каналами. Проектор. Дорогое постельное белье и текстиль, в соответствии с форматом 4 звезд. Собственная скважина. Подготовка горячей воды в жилом доме осуществляется бойлером косвенного нагрева. Установлена станция биологической очистки. Компрессор мощностью 100 л/мин. Система залпового сброса до 400 литров Рабочий объём в сутки до 1500 литров. Возможно приобретение в ипотеку. 30 домов построены и приносят доход. Одно из самых популярных и дорогих мест для отдыха компанией в Ленинградской области. Звоните, записывайтесь на просмотр Будете удивлены, Вам обязательно понравится

Читать полностью

    Для того, чтобы купить 2-этажный коттедж по адресу: Всеволожск, ул. Воздвиженская, 16, позвоните по телефону +7 (911) 179-26-54. Торопитесь! Объявление №50016515342 о продаже двухэтажного коттеджа опубликовано 26 февраля 2026.

    Позвонить Написать
    32 850 000 Р415 000 $ или 357 700
    Агент
    +7 (911) 179-26-54
    Начать чат с агентом
    Похожие предложения
    Продажа дома, Всеволожск, Всеволожский район, ул. Колхозная - Фото 1
    Продажа дома, Всеволожск, Всеволожский район, ул. Колхозная - Фото 2
    Продажа дома, Всеволожск, Всеволожский район, ул. Колхозная - Фото 3
    Продажа дома, Всеволожск, Всеволожский район, ул. Колхозная - Фото 4
    Продажа дома, Всеволожск, Всеволожский район, ул. Колхозная - Фото 5
    Продажа дома, Всеволожск, Всеволожский район, ул. Колхозная - Фото 6
    Продажа дома, Всеволожск, Всеволожский район, ул. Колхозная - Фото 7
    Продажа дома, Всеволожск, Всеволожский район, ул. Колхозная - Фото 8
    Продажа дома, Всеволожск, Всеволожский район, ул. Колхозная - Фото 9
    Продажа дома, Всеволожск, Всеволожский район, ул. Колхозная - Фото 10
    Продажа дома, Всеволожск, Всеволожский район, ул. Колхозная - Фото 11
    Продажа дома, Всеволожск, Всеволожский район, ул. Колхозная - Фото 12
    Продажа дома, Всеволожск, Всеволожский район, ул. Колхозная - Фото 13
    Продажа дома, Всеволожск, Всеволожский район, ул. Колхозная - Фото 14
    Продажа дома, Всеволожск, Всеволожский район, ул. Колхозная - Фото 15
    Продажа дома, Всеволожск, Всеволожский район, ул. Колхозная - Фото 16
    Продажа дома, Всеволожск, Всеволожский район, ул. Колхозная - Фото 17
    Продажа дома, Всеволожск, Всеволожский район, ул. Колхозная - Фото 18
    Продажа дома, Всеволожск, Всеволожский район, ул. Колхозная - Фото 19
    2 этажа, общая площадь 305м², кол-во комнат 5, год постройки 2023, участок 12 соток

    id:31994. Продается уникальный кирпичный дом у Ковалевского лесопарка Представляем вашему вниманию дом вашей мечты в п. Бернгардовка на границе с Ковалевским лесопарком. Всего несколько минут — и вы в городе. Но ваш дом будет стоять там, где...
    • 2 эт.
    • 305 м²
    • 12 сот.
    • 5-ком
    32 888 000 Р
    Агент
    +7 (931) Показать номер
    Агентство
    ТЕРРАСА
    Посмотреть контакты
    Дом в Ленинградская область, Всеволожск проезд Лескова, 20 (231 м) - Фото 1
    Дом в Ленинградская область, Всеволожск проезд Лескова, 20 (231 м) - Фото 2
    2 этажа, общая площадь 231м², участок 13 соток

    1705635 Предлагается к продаже в самом престижном районе Всеволожска - Мельничныйучей- жилой дом с земельным участком.Жилой дом - 2012 года постройки.Дом - брус (сибирская сосна).Общая площадь: 231,4 кв.м. Вода, газ заведён, канадский котёл с бойлером,...
    • 2 эт.
    • 231 м²
    • 13 сот.
    32 000 000 Р
    Агент
    +7 (911) Показать номер
    Посмотреть контакты
    Дом в Всеволожск, Воздвиженская улица, 1 (280 м) - Фото 1
    Дом в Всеволожск, Воздвиженская улица, 1 (280 м) - Фото 2
    2 этажа, общая площадь 280м², участок 7 соток

    Код объекта: 2063415.В продаже коттедж в элитном загородном комплексе гостиничного типа 4 звезды Дом находится на закрытой охраняемой территории. Круглосуточное обслуживание front office manager, house keeping, инженерная служба, служба безопасности.Доходность...
    • 2 эт.
    • 280 м²
    • 7 сот.
    32 850 000 Р
    Агент
    +7 (905) Показать номер
    Посмотреть контакты
    Дом в Ленинградская область, Всеволожск Колхозная ул., 46 (305 м) - Фото 1
    Дом в Ленинградская область, Всеволожск Колхозная ул., 46 (305 м) - Фото 2
    2 этажа, общая площадь 305м², участок 12 соток

    id:31994. Продается уникальный кирпичный дом у Ковалевского лесопаркаПредставляем вашему вниманию дом вашей мечты в п. Бернгардовка на границе с Ковалевским лесопарком.Всего несколько минут - и вы в городе. Но ваш дом будет стоять там, где рядом - живописный...
    • 2 эт.
    • 305 м²
    • 12 сот.
    33 000 000 Р
    Агент
    +7 (911) Показать номер
    Посмотреть контакты
    Дом в Всеволожск, Колхозная улица, 46 (305 м) - Фото 1
    Дом в Всеволожск, Колхозная улица, 46 (305 м) - Фото 2
    2 этажа, общая площадь 305м², участок 12 соток

    id:31994. Продается уникальный кирпичный дом у Ковалевского лесопаркаПредставляем вашему вниманию дом вашей мечты в п. Бернгардовка на границе с Ковалевским лесопарком.Всего несколько минут — и вы в городе. Но ваш дом будет стоять там, где рядом —живописный...
    • 2 эт.
    • 305 м²
    • 12 сот.
    33 000 000 Р
    Агент
    +7 (981) Показать номер
    Посмотреть контакты

    Не нашли подходящего объявления?

    Оставьте заявку, и наши риэлторы подберут купить дом в районе Всеволожска

    (0)