Реализация объекта недвижимости приостановлена

Информация о коттедже

200.0 м2
Площадь
2
Этажность
13.0 cоток
Участок

Дополнительная информация

Дом продаётся вместе с участком
есть
Развернуть

Коттедж в Ленинградская область, Всеволожск ул. Ломоносова, 59 (200 м)

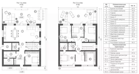
К продаже предлагается коттедж в г. Всеволожск на ул Ломоносова. Общая площадь дома - 200 кв.м. Фундамент - плита. Стены - брус. К дому подведены все городские коммуникации: газ, центральный водопровод, канализация, электричество 15 кВт. На первом этаже - просторная прихожая, кухня, с/у, гостиная, спальня и котельная. На втором этаже 4 спальни, с/у и сауна. Участок 13,6 соток. Огорожен забором, сделан заезд. На участке гостевой дом 50 кв м из кирпича.Отличное место для загородного отдыха и постоянного проживания. Развитая инфраструктура. Рядом школа, детский сад, магазины. Недалеко ж/д станция. Хороший асфальтированный подъезд.Звоните

Читать полностью

    Реализация объекта недвижимости приостановлена

    Не нашли подходящего объявления?

    Оставьте заявку, и наши риэлторы подберут купить дом в районе Всеволожска

    (0)