10 242 209 Р 131 800 $ или 112 300

Информация об помещении

1
Этаж

Состояние и оснащение

Количество этажей
1
Развернуть
Агент
+7 (911) 301-93-88
Начать чат с агентом

Помещение свободного назначения в Ленинградская область, Волхов ул. ...

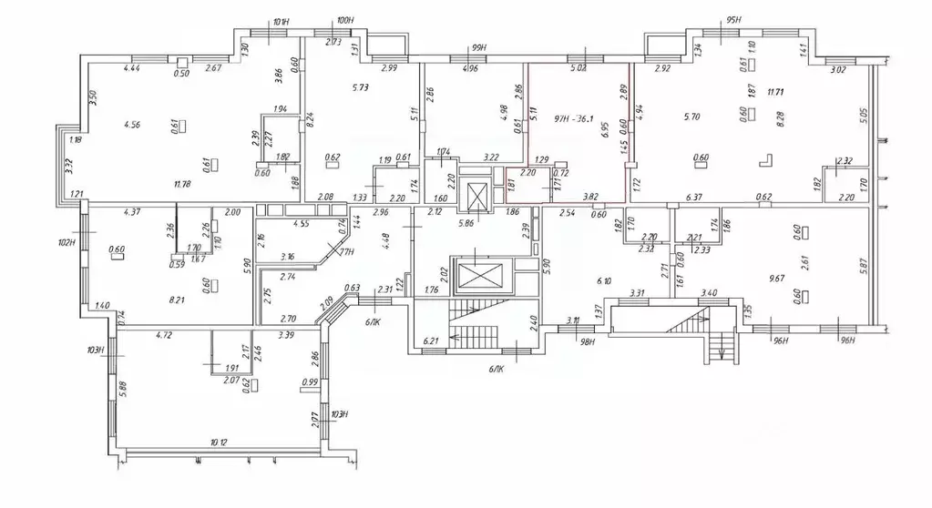
АО ЖТК предлагает к продаже помещение с отдельным входом площадью 146, 6 кв. м первого этажа пятиэтажного панельного жилого дома.Кадастровый 47:12:0000000:4756.Права на земельный участок: общая долевая собственность собственниковпомещений многоквартирного дома.Год постройки 1967. Высота потолка 2, 8 м. Фундамент бутовый ленточный. Стены бетонные блоки. Перегородки гипсолитовые. Перекрытия ж/б. Полы дощатые, плитка. Проемы оконные стеклопакеты, дверные входные металлические. Отделка внутренних помещений штукатурка, окраска, требует косметического ремонта. Коммуникации: водоснабжение - центральное, канализация и отопление - централизованные, электроснабжение (максимальная мощность 15 кВт) имеется.Нежилые помещения расположены в окружении малоэтажной жилой застройки, в 670 м от ж/д вокзала Волховстрой-1. Неподалеку от объекта расположены магазины, детский сад. Транспортная доступность удобная, подъездные пути асфальтированы, рядом со зданием имеются парковочные места.По вопросу осмотра объекта необходимо обратиться по телефону, указанному в объявлении. Просьба звонить в рабочие дни с 9:00 до 18:00 часов.Продажа объекта осуществляется на аукционе в электронной форме.Размер обеспечительного платежа составляет, с учетом НДС.Дата проведения аукциона: 10 июня 2025 года.Дата окончания приема заявок: 4 июня 2025 года.Место и форма проведения аукциона: электронная торговая площадка РТС-Тендер - https://i. rts-tender. ru/main/auction/Trade/Privatization/View. aspx?Id=193947 Guid=1f08451d-9c54-4d7e-8dda-0ebb0 b0aa203Для регистрации на сайте РТС-Тендер необходим электронный ключ.Номер процедуры на сайте РТС-Тендер: 193947.По вопросам предоставления дополнительной информации, а также организации осмотра, Вы можете обратиться по телефону, указанному в разделе Принять участие в торгах .

Читать полностью
    Позвонить Написать
    10 242 209 Р131 800 $ или 112 300
    Агент
    +7 (911) 301-93-88
    Начать чат с агентом
    Похожие предложения
    Помещение свободного назначения в Ленинградская область, Кириши просп. ... - Фото 1
    Данные получены с сайта ГИС Торги.Лот3 Подвергнутое аресту Тосненского РОСП по и/п 103370/25/47025-ИП и принадлежащее должнику ООО ПИРАМИДА заложенное имущество: здание (нежилое) общ.пл. 169,9 кв.м. кадастровый 47:27:0702024:2277, расположенное по...
    • 3 этажа
    10 314 650 Р
    Агент
    +7 (981) Показать номер
    Посмотреть контакты
    Помещение свободного назначения в Ленинградская область, Кудрово г. ... - Фото 1
    Помещение свободного назначения класса бизнес 42.8 м в ЖК iD Kudrovo с выдержанными фасадами и превосходным витражным остеклением и современной инженерией. Каждому коммерческому помещению выделена зона для стилизованной вывески. Каждое помещение оборудовано...
    • 1/12 эт.
    10 272 000 Р
    Агент
    +7 (981) Показать номер
    Посмотреть контакты
    Помещение свободного назначения в Ленинградская область, Кудрово г. ... - Фото 1
    Помещение свободного назначения класса бизнес 41.6 м в ЖК iD Kudrovo с выдержанными фасадами и превосходным витражным остеклением и современной инженерией. Каждому коммерческому помещению выделена зона для стилизованной вывески. Каждое помещение оборудовано...
    • 1/12 эт.
    10 400 000 Р
    Агент
    +7 (981) Показать номер
    Посмотреть контакты
    Помещение свободного назначения в Ленинградская область, Кудрово г. ... - Фото 1
    Помещение свободного назначения класса бизнес 36.1 м в ЖК iD Kudrovo с выдержанными фасадами и превосходным витражным остеклением и современной инженерией. Каждому коммерческому помещению выделена зона для стилизованной вывески. Каждое помещение оборудовано...
    • 1/12 эт.
    9 927 500 Р
    Агент
    +7 (981) Показать номер
    Посмотреть контакты
    Помещение свободного назначения в Ленинградская область, Мурино ... - Фото 1
    Помещение свободного назначения класса бизнес 33.12 м в ЖК iD Murino III с выдержанными фасадами и превосходным витражным остеклением и современной инженерией. Каждому коммерческому помещению выделена зона для стилизованной вывески. Каждое помещение...
    • 1/12 эт.
    10 267 200 Р
    Агент
    +7 (981) Показать номер
    Посмотреть контакты

    Не нашли подходящего объявления?

    Оставьте заявку, и наши риэлторы подберут псн в районе Волхова

    (0)