Россия, Ленинградская область, Тосненский район, коттеджный посёлок Семейные ценности, 92

Реализация объекта недвижимости приостановлена

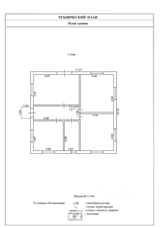
Информация о коттедже

104.0 м2
Площадь
1
Этажность
6.0 cоток
Участок

Дополнительная информация

Дом продаётся вместе с участком
есть
Развернуть

Дом в Ленинградская область, Тосненское городское поселение, Семейные ...

Продается Дом с земельным участком. Подходит под СЕМЕЙНУЮ ипотеку, мат.капитал, прописка, все виды сертификатов продажа возможна, как от юридического, так и физического лица. Документы готовы к сделке. Лучшее предложение в этом районе цена за наличный расчет. О МЕСТЕ: -Новый Дом в близи реки Тосно. От СПб 30 км. - Летом это место просто зеленый рай. В зимний период поселок превращается в Сказку, там настолько красиво и сказочно, что любой праздник и Новый год, вы будете проводить с огромный удовольствием. Посёлок застроен практически весь. Красивые разнообразные частные дома, всегда будут радовать ваш взгляд. -Коттеджный посёлок с огороженной территорией и охраной, расположен на лесной поляне, который огибает река. На въезде автоматические ворота. Магазин. Детская и спортивная площадка. Вдоль реки прогулочная зона с беседками, пляжем и зоной барбекю. Дренаж по всему периметру поселка. Широкие внутриквартальные проезды выложены асфальтовой крошкой. Выход в сосновый лес, где вы сможете собирать грибы и ягоды.О ДОМЕ:-Заезд с асфальта с окружной дороги, 150 метров и вы дома.-Дом оштукатурен, зашпаклеван стены короед, крыша утеплена с открытой резной деревянной подшивой, коллектор, скважина, система канализации будет установлена Лоск -Отопление-Электро котел (тариф сельский).-Пластиковые окна.-Дом достаточно просторный и светлый с оригинальной планировкой.-Теплые полы во всем доме.-Кухня столовая с витринным окном подарит вам много тепла и света 24 кв.м.-Три отдельные комнаты 21+20+15 кв.м.-Просторный коридор 11 кв.м.-Большой светлый санузел с окном 7,5 кв.м. -Внутренняя отделка стен (известковая штукатурка).-Качественная входная дверь.О ЗЕМЛЕ:-Участок правильной формы 6 соток, границы установлены, сухой.ИНФРАСТРУКТУРА: Удобное транспортное сообщение. До автобусной остановки 5 минут пешком. Автобус идет до вокзала 10 мин., курсирует ежедневно. в 4 км от посёлка находится ж/д станция Саблино, до Московского вокзала 30 мин. на электричке. До г. Колпино 20 мин. Яндекс такси. До районного г. Тосно 13 км., где есть школы, дет. сады, бассейн Лазурный, фитнес-центры, торговые центры, салоны красоты, бизнес-центры, нотариусы, поликлиника, роддом, банки, рынок со свежими и натуральными овощами, фруктами и прочим продовольствием. -Недалеко от посёлка расположены Соляные пещеры, Саблинские водопады и конный клуб==========================================Возможность покупки или продажи недвижимости дистанционно.Помощь и оформление ипотеки.Звоните и записывайтесь на просмотр прямо сейчас

Читать полностью

    Реализация объекта недвижимости приостановлена

    Не нашли подходящего объявления?

    Оставьте заявку, и наши риэлторы подберут купить дом в районе Тосненского района

    (0)