45 950 000 Р 582 700 $ или 497 300

Информация о коттедже

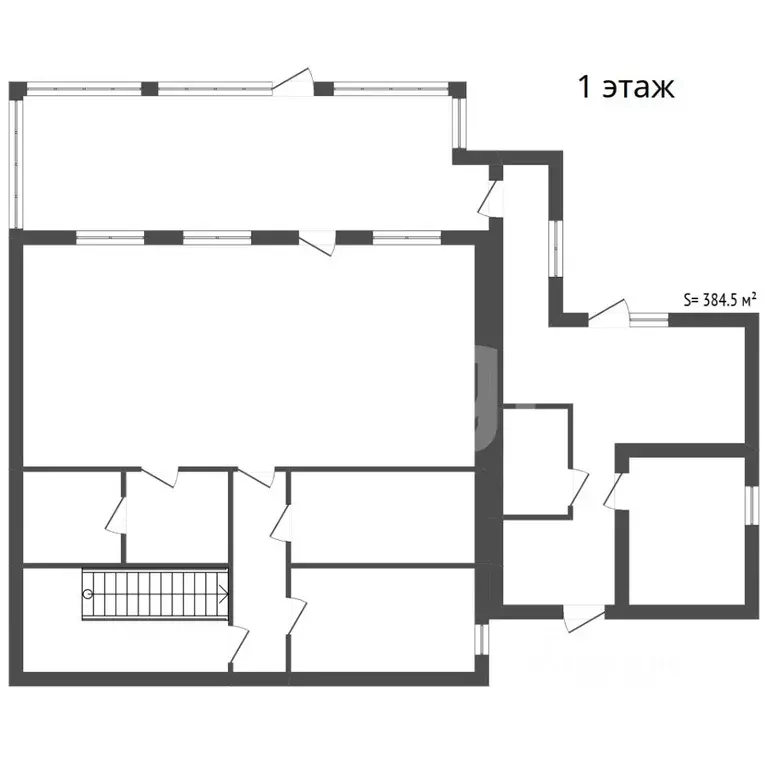
300 м2
Площадь
2
Этажность
10 cоток
Участок

Дополнительная информация

Дом продаётся вместе с участком
есть
Развернуть
Агент
+7 (911) 180-87-39
Начать чат с агентом

Дом в Ленинградская область, Сосновый Бор Новое Керново кп, 10 (300 м)

Покупай сейчас - плати потом На данный объект доступна рассрочка на выгодных условияхПродается роскошный дом общей площадью около 300 кв.м., построенный в 2013 году по технологии Durisоl. Этот дом обеспечивает комфортное проживание в любое время года благодаря своей теплоизоляции и современным системам обогрева. На первом этаже находится просторная гостиная с открытой кухней, а также банное помещение с парной и душем. В гостиной установлен большой камин, а на первом этаже оборудованы теплые полы. Высокие потолки и панорамные окна создают ощущение простора и свободы.Дом предлагает три спальни, одна из которых имеет отдельный санузел, а хозяйская мастер-спальня оборудована собственным санузлом и гардеробной комнатой. Для удобства жильцов установлен мощный дизельный генератор, который автоматически включается при отключении электричества. Весь дом оборудован системой видеонаблюдения, спутниковой тарелкой и телевидением в каждой комнате.На территории участка, размером 10 соток, расположен гостевой дом площадью около 50 кв.м. с террасой. Участок находится на первой линии берега реки Воронка, облагорожен и расширен до реки, что создает уникальные возможности для отдыха и развлечений. Кроме того, на участке имеется сарай на винтовых сваях, оборудованный для хранения лодок.Дом продается полностью меблированным и готовым для круглогодичного проживания. Вся инфраструктура обслуживается в авторизованных центрах. Не упустите возможность стать владельцем волшебного дома Он ждет Вас Код пользователя: 170623Номер в базе: 2297222

Читать полностью

    Для того, чтобы купить 2-этажный коттедж по адресу: Сосновый Бор, Новое Керново кп, 10, позвоните по телефону +7 (911) 180-87-39. Торопитесь! Объявление №50016267227 о продаже двухэтажного коттеджа опубликовано 10 января 2026.

    Позвонить Написать
    45 950 000 Р582 700 $ или 497 300
    Агент
    +7 (911) 180-87-39
    Начать чат с агентом
    Похожие предложения
    Дом в Ленинградская область, Выборгский район, Первомайское с/пос, ... - Фото 1
    Дом в Ленинградская область, Выборгский район, Первомайское с/пос, ... - Фото 2
    3 этажа, общая площадь 256м², участок 20 соток

    Продаётся двухэтажный кирпичный дом в живописном посёлке ИльичёвоЕсли вы ищете уютное место для постоянного проживания или дачи, то этот двухэтажный кирпичный дом, расположенный в очаровательном посёлке Ильичёво, может стать для вас настоящей находкой.Расположение:...
    • 3 эт.
    • 256 м²
    • 20 сот.
    46 800 000 Р
    Агент
    +7 (981) Показать номер
    Посмотреть контакты
    Дом в Ленинградская область, Всеволожский район, Сертоловское ... - Фото 1
    Дом в Ленинградская область, Всеволожский район, Сертоловское ... - Фото 2
    2 этажа, общая площадь 297м², участок 12 соток

    Арт.Предлагается к продаже великолепный дом в стиле Ф.Л. Райта в одном из самых современных и благоустроенных локаций Белоострова - КП Зеленый остров . В доме выполнена предчистовая отделка с разводкой электрики и отопления.Общая площадь 297 м2 включает...
    • 2 эт.
    • 297 м²
    • 12 сот.
    45 701 000 Р
    Агент
    +7 (981) Показать номер
    Посмотреть контакты
    Дом в Ленинградская область, Приозерский район, Запорожское с/пос, ... - Фото 1
    Дом в Ленинградская область, Приозерский район, Запорожское с/пос, ... - Фото 2
    2 этажа, общая площадь 436м², участок 22 сотки

    1431735 Всего 15 км. от Сосново в сторону Ладожского Озера. Чистый воздух с Ладожского Озера в сочетании с живительными эфирными маслами Кедра - способствуют здоровью и долголетию человека. Срочная продажа. Низкая цена. Всего 80 км. от СПб. Карельский...
    • 2 эт.
    • 436 м²
    • 22 сот.
    45 200 000 Р
    Агент
    +7 (911) Показать номер
    Посмотреть контакты
    Коттедж в Ленинградская область, Тосненский район, Федоровское ... - Фото 1
    Коттедж в Ленинградская область, Тосненский район, Федоровское ... - Фото 2
    3 этажа, общая площадь 253м², участок 9 соток

    Продаётся уютный и основательный дом в посёлке Фёдоров Посад — одном из самых зелёных и спокойных уголков Ленобласти. До Павловска — 10 минут, до метро Купчино — прямой автобус. Чистый воздух, хорошие дороги, удобное сообщение с городом.В пяти минутах...
    • 3 эт.
    • 253 м²
    • 9 сот.
    45 000 000 Р
    Агент
    +7 (911) Показать номер
    Посмотреть контакты
    Дом в Ленинградская область, Всеволожский район, Лесколовское с/пос, ... - Фото 1
    Дом в Ленинградская область, Всеволожский район, Лесколовское с/пос, ... - Фото 2
    2 этажа, общая площадь 290м², участок 10 соток

    Арт.Продается семейный дом в коттеджном поселке Шале де Люкс Токсово ЛОКАЦИЯ:Среди живописных холмов, вековых сосен и голубых озёр был создан уникальный клубный посёлок — Chalet De Luxe Toksovo. В 15 минутах от Санкт-Петербурга, в одном из самых красивейших...
    • 2 эт.
    • 290 м²
    • 10 сот.
    46 400 000 Р
    Агент
    +7 (911) Показать номер
    Посмотреть контакты

    Не нашли подходящего объявления?

    Оставьте заявку, и наши риэлторы подберут купить дом в районе Соснового Бора

    (0)