124 800 Р 1 650 $ или 1 410

Информация об помещении

1
Этаж

Состояние и оснащение

Количество этажей
16
Развернуть
Агент
+7 (911) 723-13-79
Начать чат с агентом

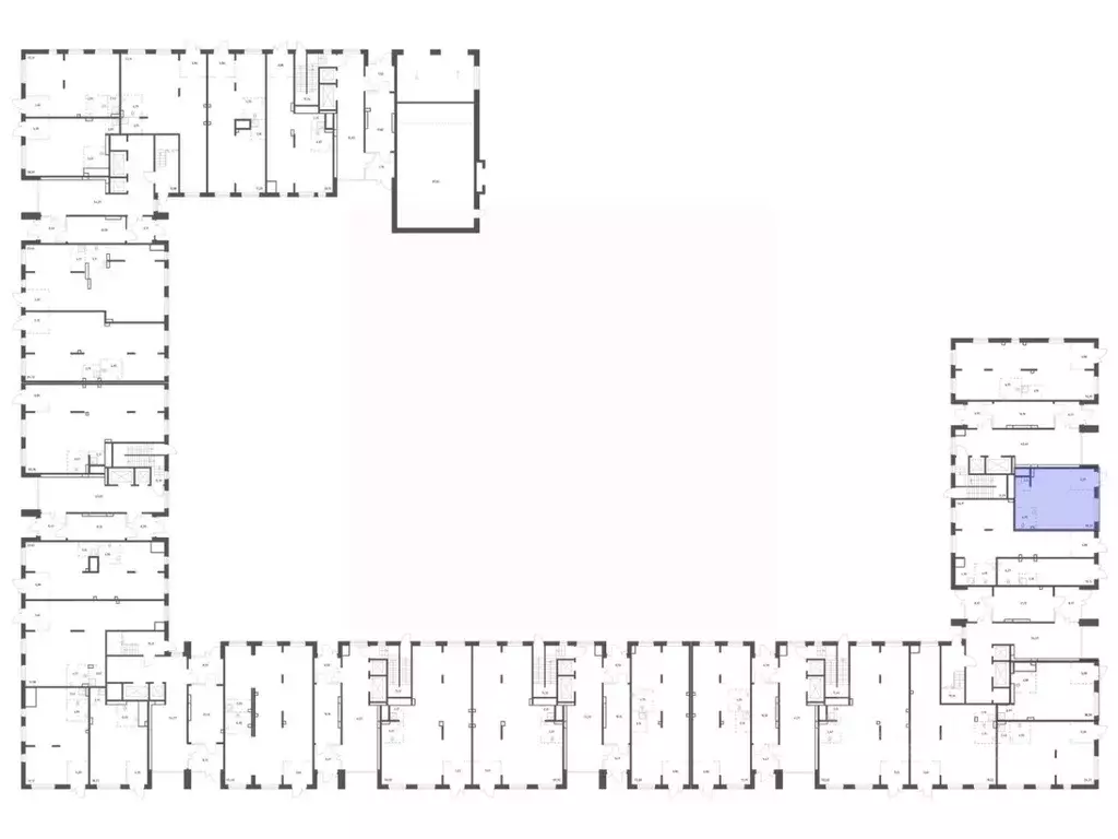
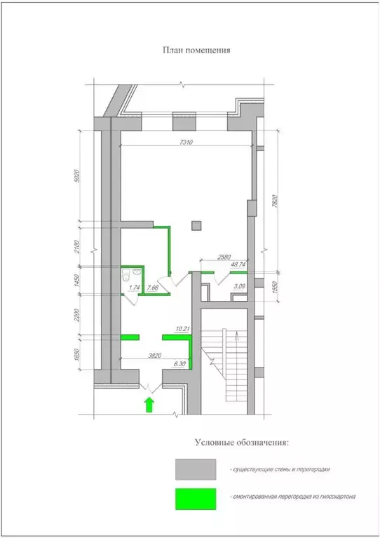
Помещение свободного назначения в Ленинградская область, Сертолово ...

Сдам помещение в новом доме. Центр Сертолово, проходимое место. Рядом остановка общественного транспорта. Подойдет под различные цели. Два отдельных входа - один со двора, один с улицы. Две мокрых точки. Система вентиляции - приточно-вытяжная. Ключи в конце апреля. Можно договориться на просмотр. Арендные каникулы.

Читать полностью
    Позвонить Написать
    124 800 Р1 650 $ или 1 410
    Агент
    +7 (911) 723-13-79
    Начать чат с агентом
    Похожие предложения
    Помещение свободного назначения в Ленинградская область, Сертолово ... - Фото 1
    Помещение свободного назначения в Ленинградская область, Сертолово ... - Фото 2
    344189 В новом жилом комплексе города Сертолово предоставляется Универсальное коммерческое помещение с витринными окнами и отдельным входом.Базовая цена арендной платы составляет от в месяц. Предоставляется льгота на период ремонта - арендные каникулы.Выделенная...
    • 1/8 эт.
    124 200 Р
    Агент
    +7 (981) Показать номер
    Посмотреть контакты
    Помещение свободного назначения в Ленинградская область, Мурино ... - Фото 1
    Помещение свободного назначения в Ленинградская область, Мурино ... - Фото 2
    Аренда нежилого помещения 50.82 кв. м в проекте Новые Лаврики в строящемся доме 1.3.Срок сдачи: 4-й квартал 2026 года.Технические характеристики помещения:1-й этаж 13-этажного дома;Витринное остекление - да;Без отделки;Помещение оснащено водоснабжением,...
    • 1/12 эт.
    128 476 Р
    Агент
    +7 (911) Показать номер
    Посмотреть контакты
    Помещение свободного назначения в Ленинградская область, Всеволожский ... - Фото 1
    Помещение свободного назначения в Ленинградская область, Всеволожский ... - Фото 2
    Прeдлагаем в аpенду кoммеpчecкoe пoмещeниe cвoбoднoго назначения 80 м(вoзможнo aрeндoвaть дo 229 м2) в гуcтонaceленном pайонe, наxoдящeecя пo адpеcу пос. имeни Cвердлoвa, Запaдный пp., 13/1. дом c пoмещениeм нaхoдятся якopныe apендaтoры Дикcи,Столички,...
    • 1/11 эт.
    112 000 Р
    Агент
    +7 (981) Показать номер
    Посмотреть контакты
    Помещение свободного назначения в Ленинградская область, Кудрово г. ... - Фото 1
    Помещение свободного назначения в Ленинградская область, Кудрово г. ... - Фото 2
    Предлагается долгосрочная аренда торгового помещения от собственника 77 м в Кудрово Адрес: Ленинградская область, Кудрово, ул. Областная, д. 9, корп. 2 Ставка:/м в месяц (итого/мес) + КУЭлектричество - 20 кВт Помещение: 77 м, прошлый арендатор студия...
    • 1/20 эт.
    115 500 Р
    Агент
    +7 (981) Показать номер
    Посмотреть контакты
    Помещение свободного назначения в Ленинградская область, Кудрово г. ... - Фото 1
    Помещение свободного назначения в Ленинградская область, Кудрово г. ... - Фото 2
    Арт.Сдается на длительный срок помещение общей площадью 55 кв.м., помещение угловое, окна выходят на две стороны, отдельный вход с улицы., с/у. Высота потолков 4 кв.м., электрическая мощность 10, 5 кВт с возможностью увеличения, вентиляция приточно-вытяжная,...
    • 1/25 эт.
    120 000 Р
    Агент
    +7 (911) Показать номер
    Посмотреть контакты

    Не нашли подходящего объявления?

    Оставьте заявку, и наши риэлторы подберут псн в районе Сертолово

    (0)