Реализация объекта недвижимости приостановлена

Информация об помещении

1
Этаж

Состояние и оснащение

Количество этажей
8
Развернуть

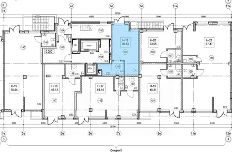
Помещение свободного назначения в Ленинградская область, Сертолово ...

Продается коммерческое помещение, общей площадью 67 м2, в новом микрорайоне Чистый ручей , в Сертолово. Помещение пригодно для различных видов деятельности, магазин, салон красоты, бытовые услуги, офис и прочее. Максимальная электрическая мощность 17 кВт, по трем фазам. В помещении предусмотрено две мокрые зоны. Отопление централизованное. Отделка черновая. Все договоры с ресурсоснабжающими организациями (электроснабжение. водоснабжение, отопление, управляющая компания) заключены. Свет, тепло и вода в рабочем состоянии.Продажа идет на прямую от собственника.

Читать полностью

    Реализация объекта недвижимости приостановлена

    Не нашли подходящего объявления?

    Оставьте заявку, и наши риэлторы подберут псн в районе Сертолово

    (0)