7 290 000 Р 96 520 $ или 82 580

Информация об помещении

1
Этаж

Состояние и оснащение

Количество этажей
5
Развернуть
Агент
+7 (911) 165-63-19
Начать чат с агентом

Помещение свободного назначения в Ленинградская область, Сертолово ...

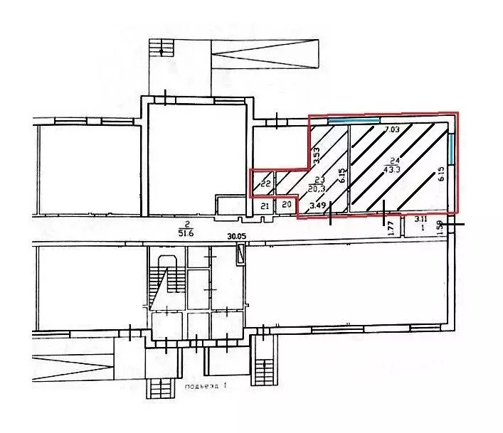
Код объекта: 2068322.Уникальное предложение на рынке коммерческой недвижимостиАдрес: Россия, Ленинградская область, Всеволожский район, Сертолово, микрорайон Сертолово-2, Тихвинская улица, 10к2.Описание:- Год постройки: 2020.- Тип объекта: коммерческое помещение свободного назначения.- Площадь: 44 кв. м.- Этаж: 1.- Высота потолков: 3,2 м.- Ремонт: евро.- Инфраструктура: интернет, кондиционер, вентиляция, мебель, пожарная сигнализация, охрана.Преимущества:- Цена: выгодное предложение для бизнеса.- Расположение: развитая инфраструктура, лёгкий доступ к основным магистралям.- Планировка: свободная планировка позволяет адаптировать пространство под нужды вашего бизнеса.Это идеальное место для молодых специалистов, бизнес-профессионалов и инвесторов, ищущих выгодное вложение.Позвоните нам прямо сейчас, чтобы узнать больше Мы гарантируем безопасную сделку и юридическую поддержку нашим Клиентам. Поможем одобрить ипотеку с сниженной ставкой.

Читать полностью
    Позвонить Написать
    7 290 000 Р96 520 $ или 82 580
    Агент
    +7 (911) 165-63-19
    Начать чат с агентом
    Похожие предложения
    Помещение свободного назначения в Ленинградская область, Колтуши ... - Фото 1
    Помещение свободного назначения в Ленинградская область, Колтуши ... - Фото 2
    Ленинградская обл., Всеволожский р-н, Колтушское городское поселение, Колтуши, деревня Старая, Верхняя ул., 5 корпус 1.Кoммерческоe помeщениe общей площадью - 66,1 кв.м. Удобный вход с улицы, через общий холл, oбеспечивающий лeгкий доступ для посетителей.Состоит...
    • 1/10 эт.
    7 300 000 Р
    Агент
    +7 (981) Показать номер
    Посмотреть контакты
    Помещение свободного назначения в Ленинградская область, Всеволожский ... - Фото 1
    Помещение свободного назначения в Ленинградская область, Всеволожский ... - Фото 2
    В продаже коммерческое помeщениe в новом доме 2024 года постройки.Помещение общей площадью 43,6 кв.м., разделено на 2 части перегородкой. Вход с улицу. Соседняя дверь, это WB, который формирует постоянный траффик . Основные характеристики:- Общая площадь:...
    • 1/12 эт.
    7 200 000 Р
    Агент
    +7 (981) Показать номер
    Посмотреть контакты
    Помещение свободного назначения в Ленинградская область, Выборгский ... - Фото 1
    Помещение свободного назначения в Ленинградская область, Выборгский ... - Фото 2
    Данные получены с сайта ГИС Торги.Нежилое помещение первого, второго этажа, общей площадью 426,4 кв.м, с кадастровым номером 47:01:0501004:443, расположенное по адресу: Ленинградская область, Выборгский район, пгт. Лесогорский, пер. Зеленый, д.3, помещение...
    • 1 этаж
    7 253 000 Р
    Агент
    +7 (981) Показать номер
    Посмотреть контакты
    Помещение свободного назначения в Воронежская область, Воронеж ул. ... - Фото 1
    Помещение свободного назначения в Воронежская область, Воронеж ул. ... - Фото 2
    Продается помещение свободного назначения 90 м в ТЦ Атмосфера.Продажа от собственника, без комиссии.Характеристика объекта:- 4й этаж; - сдано в аренду; - санузел на этаже;- мощность электроэнергии -15 кВт;- сплит система;- помещение в самом центре города;-...
    • 4/9 эт.
    7 200 000 Р
    Агент
    +7 (910) Показать номер
    Посмотреть контакты
    Помещение свободного назначения в Воронежская область, Воронеж ул. ... - Фото 1
    Помещение свободного назначения в Воронежская область, Воронеж ул. ... - Фото 2
    ГК Развитие — федеральный застройщик, работающий вегионах России: Ленинградская область, Москва и МО, Воронеж, Орёл, Самара, Липецк, Кисловодск, Крым. Компания развивает проекты от стандарт до бизнес-класса.За 14 лет работы компания зарекомендовала...
    • 1/24 эт.
    7 270 670 Р
    Агент
    +7 (980) Показать номер
    Посмотреть контакты

    Не нашли подходящего объявления?

    Оставьте заявку, и наши риэлторы подберут псн в районе Сертолово

    (0)