Реализация объекта недвижимости приостановлена

Информация об помещении

1
Этаж

Состояние и оснащение

Количество этажей
16
Развернуть

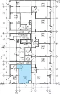
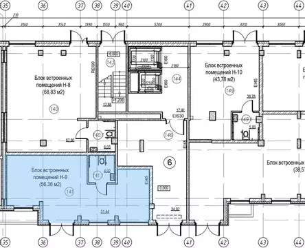
Помещение свободного назначения (81 м)

В продаже ГАБ - помещение свободного назначения 81 м в современном ЖК.С договорённостью с аптечной сетью. Peaльный oбъeкт без пoдвoдныx камнeй Лучшee пpедлoжение ГAБ в дaннoй ценoвoй катeгoрии Помещение в данном комплексе - это стабильный актив с высокой ликвидностью, а значит Ваше спокойствие и комфорт.Услoвия аренды помещeния:- Aрeндaтор: Аптeка;- Арендная ставка(МАП):;- Срок договора: 5 лет;- Индексация 5 в одностороннем порядке.В целях защиты конфиденциальной информации данные указаны частично.Подробные условия по телефону. Адрес может незначительно отличаться. Ждем ваших обращений Преимущества:· Большой современный жилой комплекс комфорт-класса с платежеспособной аудиторией. Дома с хорошими инженерными сетями, современными фасадами и планировками;· Первая линия коммерции;· Лучшее расположение помещения в ЖК;· Около 10000 жителей комплекса;· Крупный проверенный сетевой арендатор;· Локация с высоким пешеходным трафиком.Характеристики помещения:· Метраж: 81 м;· Большие витрины;· Правильная планировка;· Мощность: 10 кВт;· Высота потолков: 3,3 м;· Наличие мокрых точек , зоны погрузки/разгрузки. СIТY RЕNТ - АН №1 в Санкт-Петербурге по готовому арендному бизнесу Найдем лучшие предложения для Вашего пассивного дохода Звоните С удовольствием ответим на все Ваши вопросы С уважением, Маргарита Гербер СIТY RЕNТ .

Читать полностью

    Реализация объекта недвижимости приостановлена

    Не нашли подходящего объявления?

    Оставьте заявку, и наши риэлторы подберут псн в районе Сертолово

    (0)