52 038 000 Р 693 800 $ или 591 500

Информация об помещении

1
Этаж

Состояние и оснащение

Количество этажей
15
Развернуть
Агент
+7 (933) 786-94-18
Начать чат с агентом

Помещение свободного назначения в Ленинградская область, Сертолово ...

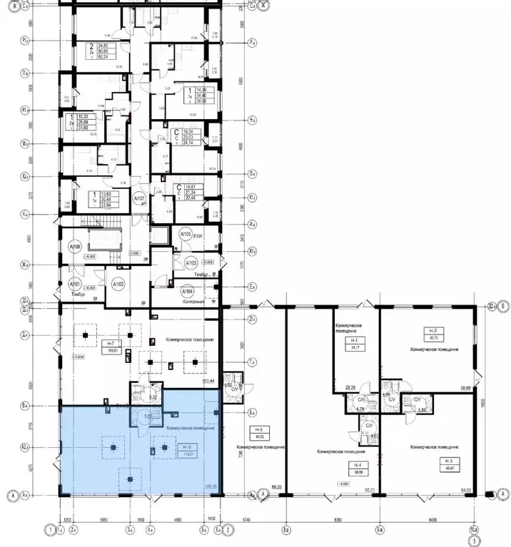
ЖК LOVO трехсекционный жилой дом со встроенными офисными помещениями и подземной автостоянкой. Фасады облицованы штукатуркой в естественных цветах с декоративными панелями из терракоты и с текстурированной под природный камень отделкой цоколя на нижних этажах.Налоговая: 21. Лифты: Есть. Вентиляция: Приточно-вытяжная. Кондиционирование: Сплит-системы. Безопасность: Круглосуточная охрана, Контроль доступа, Система пожаротушений, Видеонаблюдение. Парковка: Подземная, Наземная. Описание помещения: Блок двух помещений 81.4 м2, 93.2 м2 с панорамными окнами.Оснащены всеми необходимыми коммуникациями и системами.В каждом помещении отдельный вход и собственные санузлы.Электрическая мощность 20 кВт.Планировка: открытая. Под чистовую отделку. Высота потолка: 3.3м. Тип налогообложения: УСН. Лот

Читать полностью
    Позвонить Написать
    52 038 000 Р693 800 $ или 591 500
    Агент
    +7 (933) 786-94-18
    Начать чат с агентом
    Похожие предложения
    Помещение свободного назначения в Ленинградская область, Всеволожский ... - Фото 1
    Помещение свободного назначения в Ленинградская область, Всеволожский ... - Фото 2
    РАБОТАЕМ С АГЕНТАМИ И ПЛАТИМ РЕНТАВИК— участник ассоциации агентств КОКОН. Жилой комплекс Рождественский квартал представляет собой проект квартальной застройки, расположенный во Всеволожском районе Ленобласти, в дер. Скотное.Налоговая: 21. Лифты: Есть....
    • 1/8 эт.
    51 140 800 Р
    Агент
    +7 (933) Показать номер
    Посмотреть контакты
    Помещение свободного назначения в Ленинградская область, Кудрово г. ... - Фото 1
    Помещение свободного назначения в Ленинградская область, Кудрово г. ... - Фото 2
    Добрый день Продаётся ГАБ с надёжным арендатором - действующей клиникой косметологии с устойчивым потоком клиентов. МАП - 1ый этаж. Потолки - 4,26 м. Большие окна. Два отдельных входа. Ликвидный инвестиционный актив с доходом с первого дня.Кстати, если...
    • 1/12 эт.
    51 999 999 Р
    Агент
    +7 (981) Показать номер
    Посмотреть контакты
    Помещение свободного назначения (501.7 м) - Фото 1
    Помещение свободного назначения (501.7 м) - Фото 2
    ВНИМАНИЕ Закрытая Продажа от собственника Агентам не беспокоить По просьбе собственника информация может отличаться, подробная презентация об объекте по запросу или при личной встрече Звоните все расскажем и покажем Окупаемость 7,8 лет Основные...
    • 1/1 эт.
    52 200 000 Р
    Агент
    +7 (905) Показать номер
    Посмотреть контакты
    Помещение свободного назначения в Москва Старопетровский проезд, 11к2 ... - Фото 1
    Помещение свободного назначения в Москва Старопетровский проезд, 11к2 ... - Фото 2
    Цена указана с учётом скидки.Продаётся помещение свободного назначения площадью 73.7 кв. м. в новостройке Левел Войковская по адресу Москва, САО, Войковский, Старопетровский проезд, вл 11, корп. 5. Помещение со свободной планировкой. Окна с видом во двор....
    • 1/20 эт.
    52 276 205 Р
    Агент
    +7 (917) Показать номер
    Посмотреть контакты
    Помещение свободного назначения в Калининградская область, Гурьевский ... - Фото 1
    Помещение свободного назначения в Калининградская область, Гурьевский ... - Фото 2
    Код объекта: 1810557.Продается КОНСТРУКТИВ (Без земельного участка)Современное производственное помещение свободной планировки 1453 квм.ДЕМОНТАЖ ВКЛЮЧЕН В СТОИМОСТЬ.Ключевые преимущества:* Большая площадь: 1453 м с высотой потолков 9,5 м и въездным проёмом...
    • 1/1 эт.
    51 000 000 Р
    Агент
    +7 (981) Показать номер
    Посмотреть контакты

    Не нашли подходящего объявления?

    Оставьте заявку, и наши риэлторы подберут псн в районе Сертолово

    (0)