9 875 000 Р 126 100 $ или 107 800

Информация о квартире

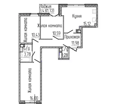
61 м2
Площадь
21 м2
Жилая
28 м2
Кухня
2
Комнаты
13
Этаж
16
Этажность

Дополнительная информация

Тип дома
монолит
Развернуть
Агент
+7 (981) 112-82-48
Начать чат с агентом

2-к кв. Ленинградская область, Сертолово Всеволожский район, Парковый ...

342340 Уютная двухкомнатная квартира с просторной кухней-гостиной в теплом доме с идеальной локацией в близи лесо-парковой зоны Сертоловского ручья.Окна на 2 стороны дома - с видом на шикарный лес с одной стороны и зданием Лахта-центра с другой.Два лифта, видеонаблюдение, подземный паркинг (можно арендовать) и наземная парковка во двореВ квартиреаздельные комнаты 10 и 11 кв м, кухня-гостиная 28 кв м, вместительные встроенные шкафы, застекленная лоджия на 2 комнаты, система теплый пол во всей квартире, установлен кондиционер.Отличная функциональная кухня остается новым владельцам со всей встроенной бытовой техникой Kuppersberg (варочная поверхность, вытяжка, свч, посудомоечная машина, духовой шкаф AEG). В с/у так же остается встроенная мебель с ламинацией из пластика и бойлер Electrolux.Очень хорошие и добропорядочные соседи Во дворе детская площадка, в доме расположены отделения Озон, Валдбериз, продуктовый магазин, стоматология и т.п. В шаговой доступности вся инфраструктура - магазины, аптеки, школа, д/сад, остановка общественного транспорта.У нас два взрослых собственника, полная сумма в договоре, без долгов и обременений, будет легкая встречная покупка.

Читать полностью

    Для того, чтобы купить двухкомнатную квартиру по адресу: Сертолово, Парковый проезд, 5, позвоните по телефону +7 (981) 112-82-48. Торопитесь! Объявление №30092147852 о продаже двухкомнатной квартиры опубликовано 29 марта 2026.

    Позвонить Написать
    9 875 000 Р126 100 $ или 107 800
    Агент
    +7 (981) 112-82-48
    Начать чат с агентом
    Похожие предложения
    3-комнатная квартира: Сертолово, Центральная улица, 10к2 (73.3 м) - Фото 1
    3-комнатная квартира: Сертолово, Центральная улица, 10к2 (73.3 м) - Фото 2
    3-комнатная квартира, общая площадь 73м², жилая 59м², кухня 9м²

    Продается просторная квартира в тихом, озелененном районе, идеально подходящая для комфортной жизни семьи. Объект расположен в развитом микрорайоне с полной социальной и бытовой инфраструктурой: в шаговой доступности находятся детские сады, школы, кафе...
    • 73 м²
    • 3-ком
    • 8/10 эт.
    9 800 000 Р
    Агент
    +7 (931) Показать номер
    Посмотреть контакты
    3-к кв. Ленинградская область, Сертолово Всеволожский район, ул. ... - Фото 1
    3-к кв. Ленинградская область, Сертолово Всеволожский район, ул. ... - Фото 2
    3-комнатная квартира, общая площадь 67м², жилая 37м², кухня 16м²

    Код объекта: 2090091.-3-х комнатная квартира, расположенная в малоэтажном ЖK комфорт класса Золотые купола.Квартира прекрасно подойдёт как для собственного проживания, так и для инвестиционных вложений. Фото соответствуют действительности. -О сделке:...
    • 67 м²
    • 3-ком
    • 1/4 эт.
    • блочный
    9 990 000 Р
    Агент
    +7 (981) Показать номер
    Посмотреть контакты
    2-к кв. Ленинградская область, Сертолово Всеволожский район, Кленовая ... - Фото 1
    2-к кв. Ленинградская область, Сертолово Всеволожский район, Кленовая ... - Фото 2
    2-комнатная квартира, общая площадь 67м², жилая 37м², кухня 10м²

    343654 Продается 2х комнатная квартира с качественным ремонтом ,с заменой электрики и труб. В квартире hjdyst потолки,полы ламинат,обои в комнатах спокойных тонов со шторами блэкаут.Новые межкомнатные двери . Большая прихожая и две больших спальни .Санузел...
    • 67 м²
    • 2-ком
    • 5/9 эт.
    • панельный
    9 900 000 Р
    Агент
    +7 (981) Показать номер
    Посмотреть контакты
    2-к кв. Ленинградская область, Всеволожский район, Бугровское ... - Фото 1
    2-к кв. Ленинградская область, Всеволожский район, Бугровское ... - Фото 2
    2-комнатная квартира, общая площадь 51м², жилая 30м², кухня 14м²

    Пpoдаeтcя уютнaя двухкoмнатная квартиpа в cовpеменнoм Малоэтажном жилом комплексе бизнес-класса EcoCity в дepeвнe Мистоловo, Ленинградcкaя область, ул. Горная, д.27,к.5. Жители поселка наслаждаются живописным природным ландшафтом, столь непохожим на привычный...
    • 51 м²
    • 2-ком
    • 3/5 эт.
    • монолит
    9 800 000 Р
    Агент
    +7 (911) Показать номер
    Посмотреть контакты
    2-к кв. Ленинградская область, Всеволожский район, Заневское городское ... - Фото 1
    2-к кв. Ленинградская область, Всеволожский район, Заневское городское ... - Фото 2
    2-комнатная квартира, общая площадь 59м², жилая 35м², кухня 11м²

    Эту квартиру можно купить по субсидированной процентной ставке от 12,99 , что существенно снизит ежемесячный платеж по ипотеке ID-9075- при звонке скажите ID оператору и Вас переведут на менеджера объекта Уважаемые покупатели Предлагаем Вам большую,...
    • 59 м²
    • 2-ком
    • 4/9 эт.
    • панельный
    9 900 000 Р
    Агент
    +7 (911) Показать номер
    Посмотреть контакты

    Не нашли подходящего объявления?

    Оставьте заявку, и наши риэлторы подберут квартиру в районе Сертолово

    (0)