Реализация объекта недвижимости приостановлена

Информация о квартире

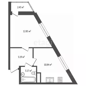
50.0 м2
Площадь
26.0 м2
Жилая
12.0 м2
Кухня
2
Комнаты
1
Этаж
4
Этажность
Развернуть

2-к кв. Ленинградская область, Сертолово Всеволожский район, ул. ...

Продаётся уютная двухкомнатная квартира в современном жилом комплексе комфорт класса ЖК Золотые купола (РСИ)Данную квартиру можно приобрести в ипотеку ПАО Сбербанк со ставкой от 9.2 О квартире:* удобная планировка: Кухня 12,2 кв/м расположенная в центре квартиры, разделяющая дву комнаты, спальню 11м и уютную гостиную с био камином (который придаст тепла и уюта в прекрасные вечера), раздельный санузел и просторная прихожая с возможность расположения вдоль стены просторного гардероба. Квартира расположена на первом этаже (под домом есть техническое помещение). Окна квартиры смотрят в сторону улицы (Западное направление) *Потолки 2.75h, отделка (ремонт) квартиры делалась для личного проживания.* Общая площадь квартиры 50.7мО доме: Во дворе жилого комплекса расположены детские и спортивный площадки На территории комплекса и в парадных ведется круглосуточное видео наблюдение Тихий и уютный двор с элементами ландшафтного дизайна Всегда есть места для парковки Во дворе детский садЭто обособленный камерный жилой комплекс низкой застройки в своем архитектурном исполнение Колясочная в каждом подъездеТранспортная доступность: До центра Сертолово 6,5 км, до ближайшей станции метро 30 минут на машине Удобный выезд на КАД и Курортное направление (излюбленное место отдыха Петербуржцев) До центра города можно добраться за часОбщие условия продажи: прямая продажа, два собственника, подходит под ипотеку и материнский капитал, полная цена Просмотры по предварительной договоренности

Читать полностью

    Реализация объекта недвижимости приостановлена

    Не нашли подходящего объявления?

    Оставьте заявку, и наши риэлторы подберут квартиру в районе Сертолово

    (0)