8 167 435 Р 100 400 $ или 86 710

Информация о квартире

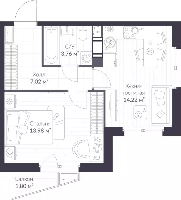
51 м2
Площадь
26 м2
Жилая
14 м2
Кухня
2
Комнаты
4
Этаж
11
Этажность

Дополнительная информация

Тип дома
монолит
Развернуть
Агент
+7 (982) 090-27-76
Начать чат с агентом

2-к кв. Ленинградская область, Сертолово Всеволожский район, Верен ...

Спешите оформить бронирование на этих условиях Предложение ограничено Стоимость квартиры указана со скидкой, ваша экономия составит 1,441,312 RUB. По всем вопросам звоните в офис продаж, наши менеджеры вам все расскажут 2-комн. квартира в Veren Nort Сертолово на 4 этаже. Квартира без отделки, новый владелец может сделать ремонт по своему дизайн-проекту. Общая площадь: 51.46 кв.м., жилая: 26.43 кв.м., площадь просторной куxни-гостиной: 14.33 кв.м. Квартира угловая, идеально подойдет любителям тишины и панорамных видов. В квартире один совмещенный санузел. Высота потолков 2.82 м. Квартира находится в корпусе 4. Дом монолитный, одноподъездный, высотой 11 этажей. На этаже 14 квартир. В подъезде 1 пассажирский и 1 грузовой лифт. Начало строительства - 3 квартал 2023 года. Окончание строительства - 4 квартал 2025 года. Оформление сделки по договору долевого участия. Евро-планировка, вид на приватный двор. Сочетание современной архитектуры и отличной экологии севера Лен. области. Выразительный облик домов разработан именитым архитектурным бюро Остоженка . Характеристики жилого комплекса исключительны: продуманный ландшафтный дизайн, оригинальные парадные, разработанные по индивидуальному дизайн-проекту, современные детские и многофункциональные спортивные площадки, летний кинотеатр под открытым небом, два детских сада. Комплекс создается в уже сложившейся инфраструктуре г. Сертолово и обладает удобным транспортным сообщением с Санкт-Петербургом. В 300 метрах от VEREN NORT сертолово планируется транспортно-пересадочный узел Сертолово , который обеспечит удобную железнодорожную связь с Финляндским вокзалом Санкт-Петербурга. zWCdoZ

Читать полностью
    Позвонить Написать
    8 167 435 Р100 400 $ или 86 710
    Агент
    +7 (982) 090-27-76
    Начать чат с агентом
    Похожие предложения в Сертолово
    1-комнатная квартира: Сертолово, ЖК Верен Норт Сертолово (39.52 м) - Фото 1
    1-комнатная квартира: Сертолово, ЖК Верен Норт Сертолово (39.52 м) - Фото 2
    1-комнатная квартира, общая площадь 39м², жилая 13м², кухня 14м²

    Apт.2500703. Спешите оформить бронирование на этих условиях Предложение ограничено Стоимость квартиры указана со скидкой, ваша экономия составит 818,477 RUB. По всем вопросам звоните в офис продаж, наши менеджеры вам все расскажут Продается 1-комн....
    • 39 м²
    • 1-ком
    • 8/11 эт.
    8 184 769 Р
    Агент
    +7 (981) Показать номер
    Посмотреть контакты
    1-комнатная квартира: Сертолово, ЖК Верен Норт Сертолово (39.74 м) - Фото 1
    1-комнатная квартира: Сертолово, ЖК Верен Норт Сертолово (39.74 м) - Фото 2
    1-комнатная квартира, общая площадь 39м², жилая 11м², кухня 14м²

    Apт.2418152. Спешите оформить бронирование по акционной цене Предложение ограничено Стоимость квартиры указана со скидкой, ваша экономия составит 827,184 RUB. По всем вопросам звоните в офис продаж, наши менеджеры вам все расскажут Продается 1-комн....
    • 39 м²
    • 1-ком
    • 6/11 эт.
    8 271 844 Р
    Агент
    +7 (981) Показать номер
    Посмотреть контакты
    1-комнатная квартира: Сертолово, ЖК Верен Норт Сертолово (41.5 м) - Фото 1
    1-комнатная квартира: Сертолово, ЖК Верен Норт Сертолово (41.5 м) - Фото 2
    1-комнатная квартира, общая площадь 41м², жилая 11м², кухня 15м²

    Apт.2411753. Торопитесь забронировать на этих условиях Срок акции ограничен Стоимость квартиры указана со скидкой, ваша экономия составит 1,899,407 RUB. По всем вопросам обращайтесь в офис продаж, наши менеджеры вам все расскажут Продается однокомнатная...
    • 41 м²
    • 1-ком
    • 9/11 эт.
    8 258 291 Р
    Агент
    +7 (981) Показать номер
    Посмотреть контакты
    1-комнатная квартира: Сертолово, ЖК Верен Норт Сертолово (39.74 м) - Фото 1
    1-комнатная квартира: Сертолово, ЖК Верен Норт Сертолово (39.74 м) - Фото 2
    1-комнатная квартира, общая площадь 39м², жилая 11м², кухня 14м²

    Apт.2418151. Спешите оформить бронирование, пока действует скидка Период акции ограничен Стоимость квартиры указана со скидкой, ваша экономия составит 820,009 RUB. Информация по телефону, мы вам все подробно расскажем Продается 1-комн. квартира с...
    • 39 м²
    • 1-ком
    • 5/11 эт.
    8 200 094 Р
    Агент
    +7 (981) Показать номер
    Посмотреть контакты
    1-к кв. Ленинградская область, Сертолово Всеволожский район, Верен ... - Фото 1
    1-к кв. Ленинградская область, Сертолово Всеволожский район, Верен ... - Фото 2
    1-комнатная квартира, общая площадь 39м², жилая 14м², кухня 14м²

    Спешите забронировать по этой цене Предложение ограничено Стоимость квартиры указана со скидкой, ваша экономия составит 2,431,680 RUB. Информация по телефону, наши менеджеры вам все расскажут Просторная 1-комн. квартира в Veren Nort Сертолово на 11...
    • 39 м²
    • 1-ком
    • 11/11 эт.
    • монолит
    8 140 842 Р
    Агент
    +7 (982) Показать номер
    Посмотреть контакты

    Не нашли подходящего объявления?

    Оставьте заявку, и наши риэлторы подберут квартиру в новостройке в районе Сертолово

    (0)