Россия, Санкт-Петербург, пос. Шушары, Московское ш., 177к3с1
2 853 875 Р 36 730 $ или 31 590

Информация об помещении

1
Этаж

Состояние и оснащение

Количество этажей
3
Развернуть
Агент
+7 (981) 899-74-35
Начать чат с агентом

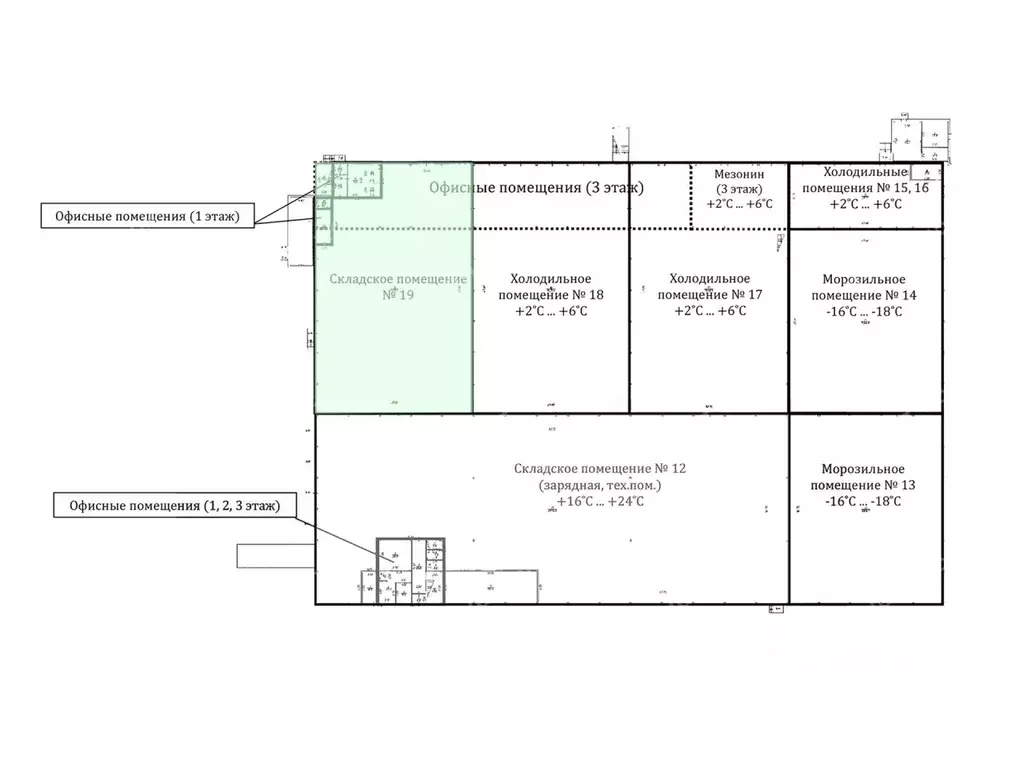
Склад в Санкт-Петербург пос. Шушары, Московское ш., 177к3с1 (1445 м)

Уникальный мультитемпературный складской комплекс класса А в формате кросс-док с офисными и бытовыми помещениями, парковками для операционного грузового транспорта и стоянками для автомашин сотрудников, отвечающий современным требованиям.Налоговая: 20. Лифты: Нет. Вентиляция: Естественная. Кондиционирование: Сплит-системы. Безопасность: Круглосуточный доступ, Круглосуточная охрана, Контроль доступа, Система пожаротушений, Видеонаблюдение. Парковка: Наземная. Описание помещения: Температурный режим плюс 2-6 градусов.Площадь сухого склада 1345 м2.Площадь АБК 99.4 м2.Высота потолков склада 12,5 м.Высота уровня пола 1,2 м.Равномерно распределенная нагрузка 6 тонн на м2.Доки, оборудованные доклевеллерами и докшелтерами - 3 шт.Планировка: открытая. Типовой ремонт. Высокие потолки. Высота потолка: 12.5м. Тип налогообложения: С НДС. Доп. параметры склада и производства: Холодильные камеры. Лот

Читать полностью
    Позвонить Написать
    2 853 875 Р36 730 $ или 31 590
    Агент
    +7 (981) 899-74-35
    Начать чат с агентом
    Похожие предложения
    Склад в Санкт-Петербург Кубинская ул., 75к2Д (4536 м) - Фото 1
    Склад в Санкт-Петербург Кубинская ул., 75к2Д (4536 м) - Фото 2
    Складское помещение 4 536 кв. м в Интертерминал ПроЛоджис, класс В от собственника.Направление: Юг. Шоссе: Пулковское. Расстояние от КАД: 1 км. Характеристики:- Класс: B; - Тип склада: Мультитемпературный склад, Сухой склад; - Высота потолков: 7.5...
    • 1/1 эт.
    2 948 400 Р
    Агент
    +7 (981) Показать номер
    Посмотреть контакты
    Склад в Санкт-Петербург пос. Шушары, Московское ш., 177к2К (1445 м) - Фото 1
    Склад в Санкт-Петербург пос. Шушары, Московское ш., 177к2К (1445 м) - Фото 2
    Складское помещение 1 445.1 кв. м в FW Group от собственника. Объект скоро освободится. Успейте забронировать на выгодных условиях. Готовность ко въезду уточняется по запросу. Направление: Юг. Шоссе: Московское. Расстояние от КАД: 6.7 км. Характеристики:-...
    • 1/1 эт.
    2 851 084 Р
    Агент
    +7 (981) Показать номер
    Посмотреть контакты
    ПОКАЗ В УДОБНЫЙ ДЕНЬ И ЧАС. Агентам платим вознаграждение за клиента. Склад утеплённый, отопление тепловые завесы.На территории оборудованы площадки для маневрирования большегрузного транспорта, парковка для легковых и грузовых автомобилей.Налоговая:...
    • 1/1 эт.
    2 880 000 Р
    Агент
    +7 (981) Показать номер
    Посмотреть контакты
    ПОКАЗ В УДОБНЫЙ ДЕНЬ И ЧАС. Агентам платим вознаграждение за клиента. Производственно-складское здание, расположено в 15 минутах от общественного транспорта, выезд на КАД ЗСД 5 км, выезд на приморское шоссе 4,5 км. Ближайшая станция метро Беговая.Налоговая:...
    • 1/5 эт.
    2 962 080 Р
    Агент
    +7 (981) Показать номер
    Посмотреть контакты
    Склад в Санкт-Петербург ул. Степана Разина, 9 (2824 м) - Фото 1
    Склад в Санкт-Петербург ул. Степана Разина, 9 (2824 м) - Фото 2
    Складской комплекс расположен в историческом центре Санкт-Петербурга. Комплекс динамично развивается, этому способствует и чрезвычайно комфортное расположение не только фактически в центре города, но и непосредственно вблизи современных транспортных развязок.Налоговая:...
    • 1/2 эт.
    2 824 000 Р
    Агент
    +7 (981) Показать номер
    Посмотреть контакты

    Не нашли подходящего объявления?

    Оставьте заявку, и наши риэлторы подберут склад в районе Санкт-Петербурга

    (0)