1 530 000 Р 19 930 $ или 16 950

Информация об помещении

1
Этаж

Состояние и оснащение

Количество этажей
1
Развернуть
Агент
+7 (981) 145-24-02
Начать чат с агентом

Склад в Санкт-Петербург 1-й Верхний пер., 12 (1500 м)

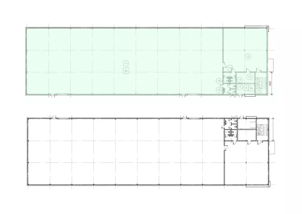
Складское помещение 1 500 кв. м в Reforma Парнас-2 . Объект на стадии активного строительства, готовность ко въезду уточняется по запросу. Направление: Север. Шоссе: Новоприозерское. Расстояние от КАД: 2 км. Характеристики:- Класс: B; - Ворота: Ворота; - Тип склада: Сухой склад; - Высота потолков: 6 м; - Нагрузка на пол: 8 т/ кв.м; - Система пожаротушения: Внешние гидранты и внутренние пожарные краны; - Тип пола: С антипылевым покрытием; - Пожарная сигнализация: Да; - Шаг колонн: 6x18 м. Арендная ставка:/кв. м в месяц. Финансовые условия: - В стоимость включено: OPEX, Коммунальные услуги, НДС; - Налог: Включая НДС. Без комиссии и скрытых платежей для арендатора.Готовы оперативно организовать просмотр в удобное время, предоставить PDF-презентацию и план. Точное местоположение объекта можно найти по данным координатам: 60.064740,30.380214 ID = c_1766594

Читать полностью
    Позвонить Написать
    1 530 000 Р19 930 $ или 16 950
    Агент
    +7 (981) 145-24-02
    Начать чат с агентом
    Похожие предложения
    Склад в Санкт-Петербург 1-й Верхний пер., 12 (1728 м) - Фото 1
    Склад в Санкт-Петербург 1-й Верхний пер., 12 (1728 м) - Фото 2
    Код объекта: 7920 Складское помещение в аренду , высота 12.5 м Адрес: г. Санкт-Петербург, 1-й Верхний переулок, дом 12, литер А, Выборгский район.Близость к метро: Проспект Просвещения, Озерки, Гражданский проспект, Парнас, Девяткино, Академическая,...
    • 1/1 эт.
    1 416 960 Р
    Агент
    +7 (911) Показать номер
    Посмотреть контакты
    Склад в Санкт-Петербург Кубинская ул., 75к1литЗ (1125 м) - Фото 1
    Склад в Санкт-Петербург Кубинская ул., 75к1литЗ (1125 м) - Фото 2
    Склад класса А в аренду: современное решение для вашего бизнесаПредлагаем в аренду тёплый склад класса А площадью 1125,04 м2 — полностью подготовленное пространство для эффективного ведения бизнеса.Ключевые параметры- Высота потолков: 14 м.- Нагрузка...
    • 1/1 эт.
    1 518 750 Р
    Агент
    +7 (911) Показать номер
    Посмотреть контакты
    Склад в Санкт-Петербург пос. Парголово, проезд Толубеевский, 8к2 (1500 ... - Фото 1
    Склад в Санкт-Петербург пос. Парголово, проезд Толубеевский, 8к2 (1500 ... - Фото 2
    Здание находится в одном из самых динамичных и густонаселенных районов города.Налоговая: 17. Лифты: Есть. Вентиляция: Приточно-вытяжная. Кондиционирование: Сплит-системы. Безопасность: Круглосуточный доступ, Круглосуточная охрана, Контроль доступа, Система...
    • -1/20 эт.
    1 500 000 Р
    Агент
    +7 (933) Показать номер
    Посмотреть контакты
    Склад в Санкт-Петербург Лахта тер., ул. Колхозная, 38 (1460 м) - Фото 1
    Склад в Санкт-Петербург Лахта тер., ул. Колхозная, 38 (1460 м) - Фото 2
    Аренда склада в Курортном районеСклад площадью 1460м2, находится на охраняемой территории рядом с кольцевой дорогой (КАД). До города всего 15 минут на машине.Все коммунальные расходы включены в стоимость аренды.Преимущества:Удобный выезд на КАД и отличное...
    • 1/2 эт.
    1 533 000 Р
    Агент
    +7 (911) Показать номер
    Посмотреть контакты
    Склад в Санкт-Петербург Кубинская ул., 75к1И (1125 м) - Фото 1
    Склад в Санкт-Петербург Кубинская ул., 75к1И (1125 м) - Фото 2
    Складское помещение 1 125 кв. м в Интертерминал ПроЛоджис, класс А . Объект скоро освободится. Успейте забронировать на выгодных условиях. Готовность ко въезду уточняется по запросу. Направление: Юг. Шоссе: Пулковское. Расстояние от КАД: 6.8 км. Характеристики:-...
    • 1/1 эт.
    1 518 750 Р
    Агент
    +7 (981) Показать номер
    Посмотреть контакты

    Не нашли подходящего объявления?

    Оставьте заявку, и наши риэлторы подберут склад в районе Санкт-Петербурга

    (0)