1 140 000 Р 14 570 $ или 12 550

Информация об помещении

1
Этаж

Состояние и оснащение

Количество этажей
2
Развернуть
Агент
+7 (981) 145-24-02
Начать чат с агентом

Склад в Санкт-Петербург ул. Салова, 56литО (1200 м)

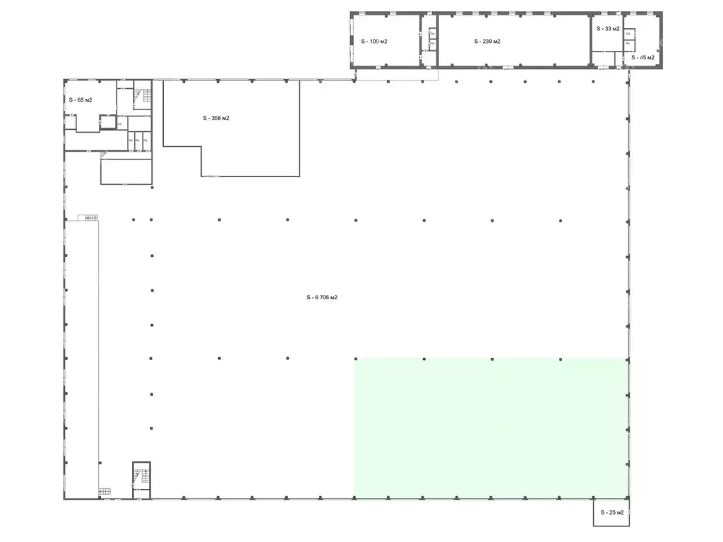
Складское помещение 1 200 кв. м в Технопарк Салова 56 от собственника.Направление: Юг. Шоссе: Мурманское. Расстояние от КАД: 7 км. Характеристики:- Класс: B; - Ворота: Ворота; - Ограничения по электроэнергии: 100 кВт; - Тип склада: Производственное помещение, Сухой склад; - Высота потолков: 11 м, 16 м, 9 м; - Нагрузка на пол: 5 т/ кв.м; - Система пожаротушения: Внешние гидранты и внутренние пожарные краны; - Тип пола: Бетонный пол, С антипылевым покрытием; - Пожарная сигнализация: Да. Арендная ставка:/кв. м в месяц. Финансовые условия: - Коммунальные услуги стоимость: 100; - В стоимость включено: НДС; - Оплачивается отдельно: OPEX, Коммунальные услуги; - Налог: Включая НДС. Прямой договор с собственником. Без комиссии и скрытых платежей. Оперативно организуем просмотр и предоставим необходимую информацию. Точное местоположение объекта можно найти по данным координатам: 59.888232,30.386427 ID = c_1777820

Читать полностью
    Позвонить Написать
    1 140 000 Р14 570 $ или 12 550
    Агент
    +7 (981) 145-24-02
    Начать чат с агентом
    Похожие предложения
    Склад в Санкт-Петербург пос. Шушары, Московское ш., 107к3 (1200 м) - Фото 1
    Склад в Санкт-Петербург пос. Шушары, Московское ш., 107к3 (1200 м) - Фото 2
    Складское помещение 1 200 кв. м в Маммингер от собственника.Направление: Юг. Шоссе: Московское. Расстояние от КАД: 6.7 км. Характеристики:- Класс: B; - Ворота: Доки; - Ограничения по электроэнергии: 150 кВт; - Тип склада: Сухой склад; - Высота потолков:...
    • 1/1 эт.
    1 080 000 Р
    Агент
    +7 (981) Показать номер
    Посмотреть контакты
    Склад (1000 м) - Фото 1
    Склад (1000 м) - Фото 2
    Арт.Аренда помещения в промзоне Коломяги. Общая площадь: 1 000 кв.м. Этажность: 1 этаж Потолки: 1 этаж - 5 метров (нагрузка 1 т.) 2, 3 этажи - 4 метра (нагрузка 500 кг) Лифт 1,5 т. (1,5х1,7) Есть дебаркадер для разгрузки. Более подробную информацию...
    • 1/3 эт.
    1 200 000 Р
    Агент
    +7 (931) Показать номер
    Посмотреть контакты
    Склад (1200 м) - Фото 1
    Склад (1200 м) - Фото 2
    Складское помещение 1 200 кв. м в «А Плюс Парк Колпино-2 от собственника.Направление: Юг. Шоссе: Софийская ул. Расстояние от КАД: 15 км. Характеристики:- Класс: B; - Ограничения по электроэнергии: 1.7 мВт; - Тип склада: Производственное помещение, Сухой...
    • 1 этаж
    1 152 000 Р
    Агент
    +7 (981) Показать номер
    Посмотреть контакты
    Склад (2000 м) - Фото 1
    Склад (2000 м) - Фото 2
    Код объекта: 20682 Санкт-Петербург, Московский район,ул. Предпортовая , м. МосковскаяАренда склада-термоса от 1000 до 2000 м с панудсом в городеСдается в аренду склад-термос общей площадью 2000 м. Возможность арендовать помещения блоками по 1000 м. Высота...
    • 1/1 эт.
    1 100 000 Р
    Агент
    +7 (906) Показать номер
    Посмотреть контакты
    Склад в Санкт-Петербург пос. Парголово, проезд Толубеевский, 8к2 (1000 ... - Фото 1
    Склад в Санкт-Петербург пос. Парголово, проезд Толубеевский, 8к2 (1000 ... - Фото 2
    Здание находится в одном из самых динамичных и густонаселенных районов города.Налоговая: 17. Лифты: Есть. Вентиляция: Приточно-вытяжная. Кондиционирование: Сплит-системы. Безопасность: Круглосуточный доступ, Круглосуточная охрана, Контроль доступа, Система...
    • -1/20 эт.
    1 000 000 Р
    Агент
    +7 (981) Показать номер
    Посмотреть контакты

    Не нашли подходящего объявления?

    Оставьте заявку, и наши риэлторы подберут склад в районе Санкт-Петербурга

    (0)