Россия, Санкт-Петербург, пос. Шушары, проезд 3-й Бадаевский, 7к1с2
5 544 000 Р 71 980 $ или 60 760

Информация об помещении

1
Этаж

Состояние и оснащение

Количество этажей
1
Развернуть
Агент
+7 (981) 145-24-02
Начать чат с агентом

Склад в Санкт-Петербург пос. Шушары, проезд 3-й Бадаевский, 7к1с2 ...

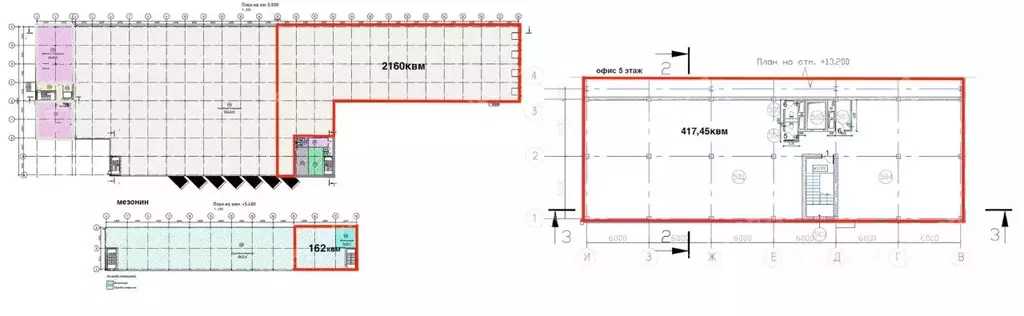
Складское помещение 5 040 кв. м в Бадаевский 7 .Направление: Юг. Шоссе: Московское. Расстояние от КАД: 2.6 км. Характеристики:- Класс: B; - Ворота: Ворота; - Тип склада: Сухой склад; - Высота потолков: 11 м, 8 м; - Нагрузка на пол: 5 т/ кв.м; - Тип пола: Бетонный пол, С антипылевым покрытием; - Уровень пола: 1.2 м; - Шаг колонн: 6x24 м. Арендная ставка:/кв. м в месяц. Финансовые условия: - В стоимость включено: OPEX; - Налог: УСН. Без комиссии и скрытых платежей для арендатора.Готовы оперативно организовать просмотр в удобное время, предоставить PDF-презентацию и план. Точное местоположение объекта можно найти по данным координатам: 59.799049,30.417214 ID = c_1768617

Читать полностью
    Позвонить Написать
    5 544 000 Р71 980 $ или 60 760
    Агент
    +7 (981) 145-24-02
    Начать чат с агентом
    Похожие предложения
    Склад в Санкт-Петербург пос. Парголово, Горское ш., 6соор1 (2260 м) - Фото 1
    Склад в Санкт-Петербург пос. Парголово, Горское ш., 6соор1 (2260 м) - Фото 2
    ПЛАТИМ АГЕНТАМ. Поможем с планом рассадки, ремонтом, мебелью. Многофункциональный логистический комплекс Осиновая роща расположен на севере Санкт-Петербурга на пересечении Горского, Выборгского шоссе и КАД.Налоговая: 17. Лифты: Нет. Вентиляция: Приточно-вытяжная....
    • 1/1 эт.
    5 424 000 Р
    Агент
    +7 (933) Показать номер
    Посмотреть контакты
    Склад в Москва Международное ш., 4 (3600 м) - Фото 1
    Склад в Москва Международное ш., 4 (3600 м) - Фото 2
    Складское помещение 3 600 кв. м в Логистический центр Вашутино .Направление: Северо-Запад. Шоссе: Ленинградское. Округ: Северо-Западный (СЗАО). Расстояние от МКАД: 5 км. Характеристики:- Класс: A; - Ограничения по электроэнергии: 460 кВт; - Тип склада:...
    • 1/1 эт.
    5 400 000 Р
    Агент
    +7 (915) Показать номер
    Посмотреть контакты
    Склад в Московская область, Наро-Фоминский городской округ, д. Свитино ... - Фото 1
    Склад в Московская область, Наро-Фоминский городской округ, д. Свитино ... - Фото 2
    Складское помещение 4 841.6 кв. м в Свитино .Направление: Юго-Запад. Шоссе: Киевское. Расстояние от МКАД: 35 км. Характеристики:- Класс: A; - Ворота: Доки; - Ограничения по электроэнергии: 600 кВт; - Водоотведение: Да; - Водоснабжение: Да; - Тип склада:...
    • 1/1 эт.
    5 538 814 Р
    Агент
    +7 (915) Показать номер
    Посмотреть контакты
    Склад в Московская область, Клин Волоколамское ш., 4 (4711 м) - Фото 1
    Склад в Московская область, Клин Волоколамское ш., 4 (4711 м) - Фото 2
    Складское помещение 4 711 кв. м в Индустриальный парк Клин .Направление: Север. Шоссе: Волоколамское, Ленинградское. Расстояние от МКАД: 80 км. Характеристики:- Класс: A; - Ворота: Доки, Ворота на нулевой отметке; - Ограничения по электроэнергии: 5.5...
    • 1/1 эт.
    5 417 650 Р
    Агент
    +7 (915) Показать номер
    Посмотреть контакты
    Склад в Москва Чермянская ул., 2С8 (5000 м) - Фото 1
    Склад в Москва Чермянская ул., 2С8 (5000 м) - Фото 2
    Уникальный номер помещения.Склад ответственного хранения класса А в МосквеУдобное расположение: 4 км. до МКАД.Добавьте объявление в избранное, чтобы не упустить выгодное предложение Высота потолка 12 м. Пол бетон-антипыль. Ворота доковые 6 шт. Напольное...
    • 1/1 эт.
    5 400 000 Р
    Агент
    +7 (980) Показать номер
    Посмотреть контакты

    Не нашли подходящего объявления?

    Оставьте заявку, и наши риэлторы подберут склад в районе Санкт-Петербурга

    (0)