Россия, Санкт-Петербург, посёлок Парголово, Толубеевский проезд, 8к2
220 400 Р 2 930 $ или 2 480

Информация об помещении

1
Этаж

Состояние и оснащение

Количество этажей
20
Развернуть
Агент
+7 (962) 712-84-79
Начать чат с агентом

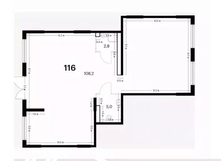
Помещение свободного назначения (115.9 м)

Предлагаем в аренду качественное помещение с панорамными окнами, 115,9 м2, с двумя входами и правильной формы, имеются два обособленных вентканала, 40 кВт, на высоком трафике, слева вход в огромный апарт-отель с 3500 квартирами Комплекс находится вблизи станции метро Парнас.Основные характеристики:• Площадь: 115,9 м2;• Мощность электросети: 40 кВт;• Высота потолков: 4 м;• Этаж: 1;• Два отдельных входа;•Панорамные окна;•Имеются отдельные шахты вентиляции;• Наружные блоки системы кондиционирования размещаются в подвальном помещении;• Распoлaгается нeпосрeдcтвеннo пepeд входoм на реcепшн кoмплекcа апаpтaментoв Start, спрaвa пpи вхoде на рeсeпшн;• В 10 минутах от метро Парнас;Стоимость, условия сделки:• Арендная ставка -/мес.;• Обеспечительный платеж - 100 ();• Срок договора - длительный (от 11 мес.);Описание:• Высокий пешеходный и автомобильный трафик;• Жилой комплeкc на 3500 кваpтиp;• Вывеска, места под рекламу;• Помещение в хорошем состоянии;• Все коммуникации: телефонные линии, водоснабжение, канализация, теплоснабжение;• Юр. статус: собственность. Подойдет под любой вид деятельности; Добавьте объявление в Избранное, чтобы не потерять С Уважением, Артур Гаджимурадов.Недвижимость Северо-Запада.Номер объекта: 5/559496/18014

Читать полностью
    Позвонить Написать
    220 400 Р2 930 $ или 2 480
    Агент
    +7 (962) 712-84-79
    Начать чат с агентом
    Похожие предложения
    Помещение свободного назначения в Санкт-Петербург ул. Тосина, 1к1 (116 ... - Фото 1
    Помещение свободного назначения в Санкт-Петербург ул. Тосина, 1к1 (116 ... - Фото 2
    Арт.Предлагаю Вашему вниманию перспективное коммерческое помещение в жк Аэронавт Помещение свободного назначения, фасадное, подойдет под самые различные цели.СУБАРЕНДАОсновные характеристики:высота потолка 3.8 метравыделенная мощность 23 кВтотдельный...
    • 1/12 эт.
    220 400 Р
    Агент
    +7 (911) Показать номер
    Посмотреть контакты
    Помещение свободного назначения в Санкт-Петербург Ленинский просп., ... - Фото 1
    Помещение свободного назначения в Санкт-Петербург Ленинский просп., ... - Фото 2
    Без комиссии Предлагается помещение свободного назначения общей площадью 113 м2.Помещениеасположено на первом этаже бизнес центра и в данной конфигурации идеально подходит под размещение отделения банка.Помещение имеет отдельный вход с площади Конституции...
    • 1/8 эт.
    214 700 Р
    Агент
    +7 (981) Показать номер
    Посмотреть контакты
    Помещение свободного назначения в Санкт-Петербург 17-я Васильевского ... - Фото 1
    Помещение свободного назначения в Санкт-Петербург 17-я Васильевского ... - Фото 2
    Сдаётся в аренду помещение свободного назначения площадью 99,1 м2 по адресу: г. СанктПетербург, 17я линия Васильевского острова, 20 (вторая линия). Основные характеристики:— Помещение находится в Особняке купца Х. И. Лоргуса;— 1 этаж;— отдельный вход...
    • 1/4 эт.
    220 000 Р
    Агент
    +7 (981) Показать номер
    Посмотреть контакты
    Помещение свободного назначения в Санкт-Петербург просп. Стачек, 4/1 ... - Фото 1
    Помещение свободного назначения в Санкт-Петербург просп. Стачек, 4/1 ... - Фото 2
    Аренда помещения 71,9 м2 у метро Нарвская , пр. Стачек, 4/1Сдаётся в аренду просторное офисное помещение площадью 71,9 м2 на 1м этаже (из 5) по адресу: г. СанктПетербург, проспект Стачек, 4/1 (Кировский район). Всего 3 минуты пешком до станции метро...
    • 1/5 эт.
    220 000 Р
    Агент
    +7 (981) Показать номер
    Посмотреть контакты
    Помещение свободного назначения в Санкт-Петербург ул. Некрасова, 48 ... - Фото 1
    Помещение свободного назначения в Санкт-Петербург ул. Некрасова, 48 ... - Фото 2
    Сдается в аренду помещение свободного назначения, стрит-ритейл в центре Санкт-Петербурга 96 м, по адресу: ул. Некрасова, д. 48.Отличное торговое помещение на углу ул. Некрасова и Лиговского проспекта. ПЕРВАЯ ЛИНИЯ Пять окон на улицу, свободная планировка....
    • 1/6 эт.
    230 000 Р
    Агент
    +7 (911) Показать номер
    Посмотреть контакты

    Не нашли подходящего объявления?

    Оставьте заявку, и наши риэлторы подберут псн в районе Санкт-Петербурга

    (0)