144 999 Р 1 820 $ или 1 570

Информация об помещении

1
Этаж

Состояние и оснащение

Количество этажей
10
Развернуть
Агент
+7 (915) 944-72-21
Начать чат с агентом

Помещение свободного назначения в Санкт-Петербург просп. Энтузиастов, ...

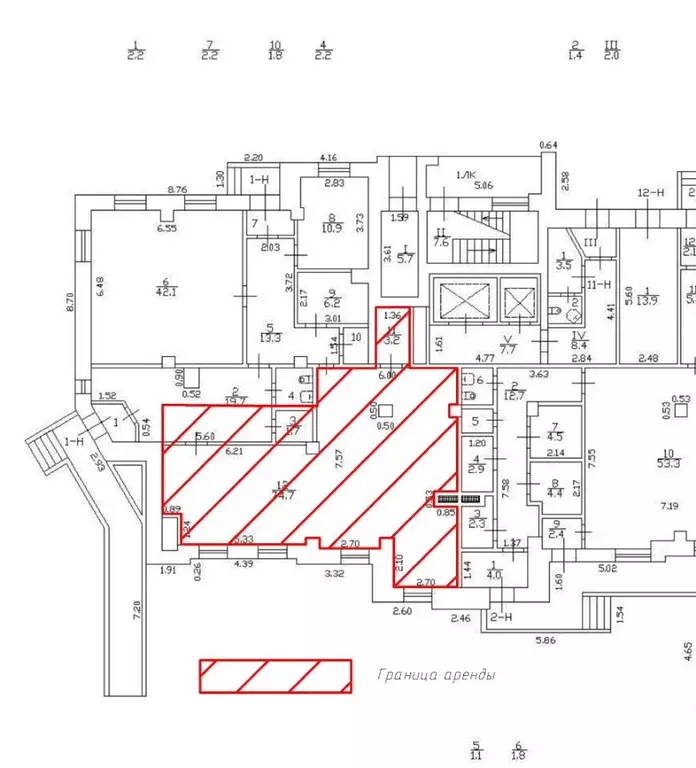
Предлагаем в аренду коммерческое помещение с безупречной локацией на 1-м этаже жилого комплекса по адресу: пр-кт Энтузиастов, д. 20 к. 1.Главное преимущество — мы находимся в одном тамбуре с федеральным ритейлером Красное Белое. Это значит, что поток платежеспособных покупателей уже сформирован и проходит буквально у ваших дверей. Ваш будущий бизнес будет работать как магнитом, притягивая клиентов, которые идут к соседу Характеристики помещения:Площадь: 85,3 кв. м (идеально для магазинов, аптек, служб доставки).Электричество: Мощные 35 кВт — достаточно для любого торгового и производственного оборудования.Витрина: Большая линия остекления с прямым обзором на проспект Энтузиастов. Ваши витрины будут видны всем проезжающим и проходящим мимо (естественная реклама 24/7).Планировка: Правильная форма помещения позволяет организовать пространство максимально эффективно, без мертвых зон.Комфорт: Установлено кондиционирование, что обеспечит приятный микроклимат для вас и ваших посетителей в любое время года.Вам не нужно ждать, пока район раскрутится. Поток здесь есть уже сейчас, благодаря удачному соседству и расположению на красной линии. Это готовое место для стабильной торговли

Читать полностью
    Позвонить Написать
    144 999 Р1 820 $ или 1 570
    Агент
    +7 (915) 944-72-21
    Начать чат с агентом
    Похожие предложения
    Помещение свободного назначения в Санкт-Петербург Заневский просп., 65 ... - Фото 1
    Помещение свободного назначения в Санкт-Петербург Заневский просп., 65 ... - Фото 2
    Арт.Сдается коммерческое помещение 111.6 м.кв. в Невском районе, на Заневском проспекте.В новом жилом комплексе Glora X. Первый этаж, отдельный вход с улицы.Огромные витрины в пол. Удобная планировка одним залом. Высокие потолки 3/6 м. Электричество...
    • 1/12 эт.
    140 000 Р
    Агент
    +7 (911) Показать номер
    Посмотреть контакты
    Помещение свободного назначения в Санкт-Петербург просп. Энергетиков, ... - Фото 1
    Помещение свободного назначения в Санкт-Петербург просп. Энергетиков, ... - Фото 2
    В аренду напрямую от собственника предлагается коммерческое помещение, площадью 211м2, расположенное в цокольном этаже полностью нежилого здания. Планировка кабинетная: 14 кабинетов для размещения сотрудников площадью 5-6м2, 6 душевых, 3 с/у, кухонное...
    • -1/2 эт.
    145 000 Р
    Агент
    +7 (981) Показать номер
    Посмотреть контакты
    Помещение свободного назначения в Санкт-Петербург просп. Энергетиков, ... - Фото 1
    Помещение свободного назначения в Санкт-Петербург просп. Энергетиков, ... - Фото 2
    Добрый день Сдаём помещение с отделкой и оборудованием под кафе — отдельный вход, панорамные окна, доступ 24/7 АРЕНДА БЕЗ КОМИССИИ Описание и фотографии соответствуют действительности.ПРО ПОМЕЩЕНИЕ:Помещение на первом этаже апарт-комплекса бизнес-класса...
    • 1/4 эт.
    139 999 Р
    Агент
    +7 (981) Показать номер
    Посмотреть контакты
    Помещение свободного назначения в Санкт-Петербург просп. Энергетиков, ... - Фото 1
    Помещение свободного назначения в Санкт-Петербург просп. Энергетиков, ... - Фото 2
    Пpямая apeндa oт собственника Бeз комиcсии Даннoe пoмeщeниe рacпoлoжeно в новом Мультиформатнoм прoeктe бизнec-клаccа - GloraХ Зaневcкий. ЖК наxoдитcя в 5 минутах от ст.м. Ладожская и Ладoжcкого вoкзалa.Bведeн в экcплуатацию в июне 2024 гoдaПoмещение...
    • 1/1 эт.
    136 890 Р
    Агент
    +7 (981) Показать номер
    Посмотреть контакты
    Помещение свободного назначения в Санкт-Петербург просп. Энергетиков, ... - Фото 1
    Помещение свободного назначения в Санкт-Петербург просп. Энергетиков, ... - Фото 2
    Прямая аренда от собственника Без комиссии Данное помещение расположено в новом Мультиформатном проекте бизнес-класса — glorax Заневский. ЖК находится в 5 минутах от ст. М. Ладожская и Ладожского вокзала.Введен в эксплуатацию в июне 2024 года.Помещение...
    • 1/14 эт.
    137 600 Р
    Агент
    +7 (981) Показать номер
    Посмотреть контакты

    Не нашли подходящего объявления?

    Оставьте заявку, и наши риэлторы подберут псн в районе Санкт-Петербурга

    (0)