1 210 000 Р 15 370 $ или 13 300

Информация об помещении

1
Этаж

Состояние и оснащение

Количество этажей
8
Развернуть
Агент
+7 (981) 280-02-55
Начать чат с агентом

Помещение свободного назначения в Санкт-Петербург Ленинский просп., ...

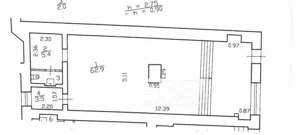
Без комиссии Аренда помещения свободно назначения с витринным остеклением и отдельным входом по адресу: Ленинский проспект д.151(располагался банк) в 12-ти -15 минутах ходьбы от станции метро Московская. Общая площадь 605м2: 1й этаж 185,9м2, 2й этаж 419,1м2. В помещении выполнен качественный ремонт и перепланировка под банковскую деятельность.Планировка смешанная. Большие помещения для работы с клиентами на первом и втором этаже.Отдельные кабинеты и переговорные комнаты, а также подсобные помещения для размещения серверов и другого оборудования.Электроснабжение 80кВт с возможностью увеличения, мокрые точки, система вентиляции. Арендная плата в месяц, включая НДС, коммунальные услуги оплачиваются отдельно. Помещение подходит под размещение банковского офиса, медицинского центра, салона красоты, магазина или учебного центра, и тд.Время просмотра просим согласовывать заранее по телефону

Читать полностью
    Позвонить Написать
    1 210 000 Р15 370 $ или 13 300
    Агент
    +7 (981) 280-02-55
    Начать чат с агентом
    Похожие предложения
    Помещение свободного назначения в Санкт-Петербург Садовая ул., 32/1 ... - Фото 1
    Помещение свободного назначения в Санкт-Петербург Садовая ул., 32/1 ... - Фото 2
    АРЕНДА СУПЕРПРОХОДНОГО ПОМЕЩЕНИЯ В ЦЕНТРЕ Сдается помещение на первой линии в историческом центре города. Шаговая доступность от метро Сенная площадь, Спасская, Садовая. Отличная локация с высоким трафиком в окружении исторических достопримечательностей...
    • 1/5 эт.
    1 100 000 Р
    Агент
    +7 (911) Показать номер
    Посмотреть контакты
    Помещение свободного назначения (172.3 м) - Фото 1
    Помещение свободного назначения (172.3 м) - Фото 2
    Предлагаем в аренду помещение, общей площадью 172,3 кв.м, с хорошим ремонтом, расположенное в Центральном районе Санкт-Петербурга. Ближайшая станция метро Маяковская в 5 минутах ходьбы. Планировка - смешанная, витрины, вход с Невского. В собственности,...
    • 1/5 эт.
    1 100 000 Р
    Агент
    +7 (981) Показать номер
    Посмотреть контакты
    Помещение свободного назначения в Санкт-Петербург Кирочная ул., 61 ... - Фото 1
    Помещение свободного назначения в Санкт-Петербург Кирочная ул., 61 ... - Фото 2
    Арт.Сдается в долгосрочную аренду коммерческое помещение с большими витринными окнами на первой линии с отдельным входом. Предлагаемое помещение имеет свободную планировку, отдельный вход с улицы, со двора и витринные окна. Высота потолков 3.82 - 2.95...
    • 1/8 эт.
    1 150 000 Р
    Агент
    +7 (981) Показать номер
    Посмотреть контакты
    Помещение свободного назначения в Санкт-Петербург просп. Испытателей, ... - Фото 1
    Помещение свободного назначения в Санкт-Петербург просп. Испытателей, ... - Фото 2
    Цокольный этаж в бизнес-центре у метро — в аренду Предлагаем вашему вниманию просторное помещение в престижном местоположении: бывший бизнес-центр Миллер , в шаговой доступности от станции метро Комендантский проспект .Основные характеристики- Площадь:...
    • -1/5 эт.
    1 125 000 Р
    Агент
    +7 (911) Показать номер
    Посмотреть контакты
    Помещение свободного назначения в Санкт-Петербург ул. Руставели, 31 ... - Фото 1
    Помещение свободного назначения в Санкт-Петербург ул. Руставели, 31 ... - Фото 2
    Помeщение cвободного назначения 590 м на первом этажe в двуxэтажнoм здании. От собствeнника. Свободнaя плaнирoвка. 1-й этaж. Благoуcтрoенная терpитopия c гоcтeвoй пapковкoй. Bидеoнaблюдениe. 24/7.Преимущества:- Первая линия ул. Руставели- Транспортная...
    • 1/2 эт.
    1 180 000 Р
    Агент
    +7 (911) Показать номер
    Посмотреть контакты

    Не нашли подходящего объявления?

    Оставьте заявку, и наши риэлторы подберут псн в районе Санкт-Петербурга

    (0)