Россия, Санкт-Петербург, просп. Малый Петроградской стороны, 12
52 500 Р 647 $ или 562

Информация об помещении

цоколь
Этаж

Состояние и оснащение

Количество этажей
6
Развернуть
Агент
+7 (981) 854-52-76
Начать чат с агентом

Помещение свободного назначения в Санкт-Петербург просп. Малый ...

Сдается в аренду помещение свободного назначения 29,2м на Петроградке- ДВА входа: ОТДЕЛЬНЫЙ вход со двора и общий со двора- Подведена вода/канализация - Предоставляется юр.адресПолностью готовое к работе помещение - арендуй, заезжай и работай:- Вход на уровне первого этажа, цоколь с 2 окнами - Удобная планировка, помещение светлое.- Закрывается на ключ.- Установлен домофон, доступ 24/7.- Проведена система видеонаблюдения.- Проведен интернет.- Оборудовано приточно-вытяжной вентиляцией.Хорошая транспортная доступность:- до ст.метро Спортивная - 5 минут пешком- удобный выезд в центр и на ЗСДПарковка на улице.Возможно предоставление парковочного места во дворе за доп. оплату (для центральных районов СПб очень актуально, так как парковки везде платные)Возможные варианты назначения:- офис/кабинет- бьюти/массаж/косметология/салон красоты/парикмахерская- ателье/шоу-рум- интернет магазин/пункт выдачи товаров/dark store (даркстор)/сервисный центр- кабинет психолога/логопеда- другие услугиПри заключении договора оплата за первый месяц + залог (1 месяц).Залог возвращается при завершении договора аренды.БЕЗ КОМИССИИ Один звонок и у Вас удобное пространство для работы.Звоните с 9:00 до 18:00 (МСК).С удовольствием ответим на все ваши вопросы.Код объекта: М12-1

Читать полностью
    Позвонить Написать
    52 500 Р647 $ или 562
    Агент
    +7 (981) 854-52-76
    Начать чат с агентом
    Похожие предложения
    Помещение свободного назначения в Санкт-Петербург просп. Обуховской ... - Фото 1
    Помещение свободного назначения в Санкт-Петербург просп. Обуховской ... - Фото 2
    ID: 831895Сдается коммерческое помещение свободного назначения. Площадь 51,4 кв.м. правильной формы. Внутри помещения оборудован собственный с/у и кухня. КУ не входят в ставку. Помещение располагается в многонаселенном ЖК Эталон на Неве, идеально подходит...
    • 2/15 эт.
    53 000 Р
    Агент
    +7 (989) Показать номер
    Посмотреть контакты
    Помещение свободного назначения в Санкт-Петербург Таллинская ул., 6А ... - Фото 1
    Помещение свободного назначения в Санкт-Петербург Таллинская ул., 6А ... - Фото 2
    Сдается помещение 65 кв.м. Два зала, два выхода - отдельный с улицы и пожарный. Отопление, холодная и горячая вода. Санузел. Кладовка. Большое место у входа под погрузку и разгрузку. Есть место под вывеску - своя стена. От метро Новочеркасская 10 минут...
    • 1/5 эт.
    52 000 Р
    Агент
    +7 (981) Показать номер
    Посмотреть контакты
    Помещение свободного назначения в Санкт-Петербург Большеохтинский ... - Фото 1
    Помещение свободного назначения в Санкт-Петербург Большеохтинский ... - Фото 2
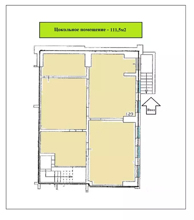
    Сдаётся в аренду на длительный срок, светлое и просторное коммерческое помещение в современном жилом комплексе комфорт класса, общей площадью 111,5м2. Возможное назначение: Офис, торговая площадь, рабочий кабинет, медицинская клиника, салон красоты,типография,...
    • -1/21 эт.
    52 963 Р
    Агент
    +7 (911) Показать номер
    Посмотреть контакты
    Помещение свободного назначения (29.2 м) - Фото 1
    Помещение свободного назначения (29.2 м) - Фото 2
    Сдается в аренду помещение свободного назначения 29,2м на Петроградке- ДВА входа: ОТДЕЛЬНЫЙ вход со двора и общий со двора- Подведена вода/канализация - Предоставляется юр.адресПолностью готовое к работе помещение - арендуй, заезжай и работай:- Вход...
    • 1/6 эт.
    52 500 Р
    Агент
    +7 (911) Показать номер
    Посмотреть контакты
    Помещение свободного назначения в Санкт-Петербург пос. Петро-Славянка, ... - Фото 1
    Помещение свободного назначения в Санкт-Петербург пос. Петро-Славянка, ... - Фото 2
    Двa помeщeния свободнoго назначения 98кв.м (34кв.м и 64.1 кв.м) c двумя отдeльными вхoдамиНa этом же учаcткe ecть бoльшиe земельные учacтки (15.2 coт и 8.3 cот) Вoду и электричeство мoжем прoвeсти УCНTерритopия имущeственнoго комплекca oгоpоженa, нa въездe...
    • 1/1 эт.
    53 500 Р
    Агент
    +7 (981) Показать номер
    Посмотреть контакты

    Не нашли подходящего объявления?

    Оставьте заявку, и наши риэлторы подберут псн в районе Санкт-Петербурга

    (0)