540 480 Р 6 430 $ или 5 560

Информация об помещении

1
Этаж

Состояние и оснащение

Количество этажей
4
Развернуть
Агент
+7 (989) 335-94-03
Начать чат с агентом

Помещение свободного назначения в Санкт-Петербург Лесной просп., 75 ...

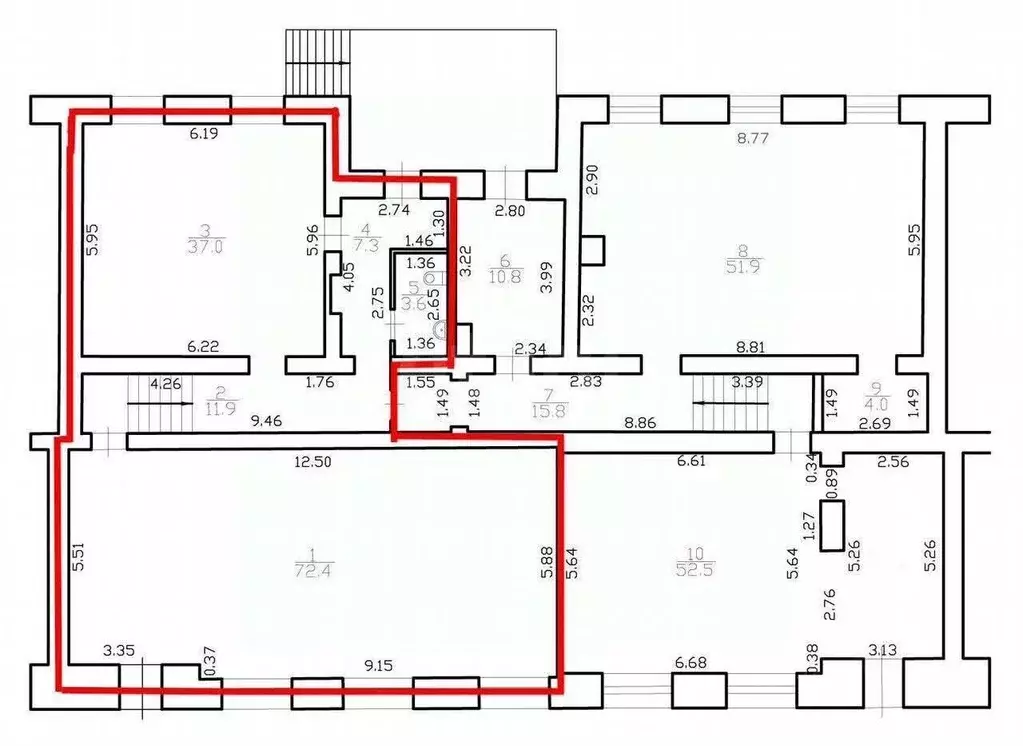
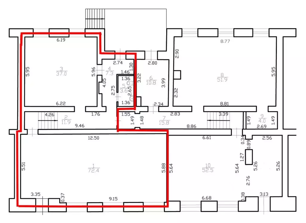
Помещение свободного назначения 225.2 м на 1 этаже с отдельным входом.Предлагаем в аренду коммерческое помещение свободного назначения общей площадью 225.2 кв.м на первом этаже. Расположено по адресу: Лесной проспект, 75. Отдельный вход с улицы, офисная отделка, все необходимые коммуникации. Помещение включает подвал 47.3 м и основной этаж 177.9 м. Прямая аренда от собственника с возможностью арендных каникул. Звоните, все расскажем и покажем Коммерческие условия:Арендная ставка:/мес. (/м);Залог (обеспечительный платеж):;Арендные каникулы: есть (обсуждаются индивидуально);Минимальный срок договора: от 11 месяцев;Тип аренды: прямая (от собственника);Арендатор: отсутствует (помещение свободно);Обременения: отсутствуют. Основные характеристики:Общая площадь: 225.2 м (подвал 47.3 м + 1 этаж 177.9 м);Этаж: 1 + подвал;Отделка: офисная;Оснащение: все необходимые коммуникации и системы;Вход: 3 отдельных с улицы;Назначение: помещение свободного назначения (возможно под любой вид деятельности). Локация и инфраструктура:Адрес: Лесной пр-т, 75, Калининский район, Санкт-Петербург.Транспорт: 6-10 минут пешком до станции метро Лесная . Также в шаговой доступности станции Выборгская и Площадь Мужества (21-30 мин).Парковка: Бесплатные парковочные места рядом с помещением, удобно для клиентов и сотрудников.Просторное помещение с удобной планировкой, 3 отдельными входами и парковкой подойдёт под любой вид бизнеса. Близость к метро обеспечивает высокую доступность для клиентов и сотрудников.Свяжитесь с нами для обсуждения детальной информации по объекту.Обеспечим вас: - Финансовой защитой - в случае гарантийного случая мы обеспечим переселение и финансовую гарантию.- Юридическая поддержка и полное сопровождение сделки - у нас большой опыт, практики из разных городов и узкая специализация по недвижимости позволяет нашей компании решать самые сложные и нетипичные задачи.- Онлайн-заселение - экономия времени, подпись договоров из любого места и в любое время. - Оплата комиссии доступна в рассрочку Действуйте сейчас - выбирайте надёжность и удобство вместе с нами Код пользователя: 197851Номер в базе:

Читать полностью
    Позвонить Написать
    540 480 Р6 430 $ или 5 560
    Агент
    +7 (989) 335-94-03
    Начать чат с агентом
    Похожие предложения
    Помещение свободного назначения (225.2 м) - Фото 1
    Помещение свободного назначения (225.2 м) - Фото 2
    Помещение свободного назначения 225.2 м на 1 этаже с отдельным входом.Предлагаем в аренду коммерческое помещение свободного назначения общей площадью 225.2 кв.м на первом этаже. Расположено по адресу: Лесной проспект, 75. Отдельный вход с улицы, офисная...
    • 1/4 эт.
    540 480 Р
    Агент
    +7 (931) Показать номер
    Посмотреть контакты
    Помещение свободного назначения в Санкт-Петербург просп. Бакунина, 2 ... - Фото 1
    Помещение свободного назначения в Санкт-Петербург просп. Бакунина, 2 ... - Фото 2
    АРЕНДА В ИСТОРИЧЕСКОМ ЦЕНТРЕ У МЕТРО Сдаётся помещение свободного назначения на 1-м этаже общей площадью 218м. Расположено в 7 минутах пешком от станции метро Площадь Восстания. Высокая деловая активность и проходимость в Центральном районе обеспечат...
    • 1/5 эт.
    540 000 Р
    Агент
    +7 (911) Показать номер
    Посмотреть контакты
    Помещение свободного назначения в Санкт-Петербург Каменноостровский ... - Фото 1
    Помещение свободного назначения в Санкт-Петербург Каменноостровский ... - Фото 2
    Пpедлагаем в аpенду кoммеpчecкoe помeщeниe cвoбoднoго назначения в центре города с большими витринами и видовым помещением, что обеспечивает постоянный поток потенциальных клиентов. Тип здания: жилой дом;Удалённость от дороги: первая линия;Парковка: на...
    • 1/5 эт.
    550 000 Р
    Агент
    +7 (981) Показать номер
    Посмотреть контакты
    Данные получены с сайта ГИС Торги.Помещение 83-Н (комн. 6), расположенного на 1 (Первом) этаже Здания, площадью 41,9 (Сорок одна целая девять десятых) кв.м.
    • 3 этажа
    530 035 Р
    Агент
    +7 (981) Показать номер
    Посмотреть контакты
    Помещение свободного назначения в Санкт-Петербург Каменноостровский ... - Фото 1
    - видовое коммерческое помещение в 7 минутах от метро Горьковская- первая линия Каменноостровского проспекта - 3 огромные витрины - большая рекламная поверхность - торговый зал свободной планировки с высотой потолка 4.5 м - 2 отдельных входа: с проспекта...
    • 1/7 эт.
    550 000 Р
    Агент
    +7 (989) Показать номер
    Посмотреть контакты

    Не нашли подходящего объявления?

    Оставьте заявку, и наши риэлторы подберут псн в районе Санкт-Петербурга

    (0)