114 310 Р 1 440 $ или 1 240

Информация об помещении

1
Этаж

Состояние и оснащение

Количество этажей
18
Развернуть
Агент
+7 (911) 167-52-69
Начать чат с агентом

Помещение свободного назначения в Санкт-Петербург ул. Салова, 61 (50 ...

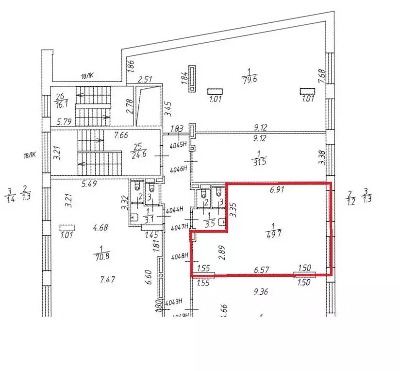
Сдается коммерческое помещение площадью 49,7 кв.м в апарт-комплексе VALO ?Предлагаем в аренду светлое и современное коммерческое помещение, расположенное на 2-м этаже 18-этажного здания. Помещение свободно и полностью готово к приему вашего бизнеса.Технические характеристики:- Высота потолков: 2,8 м.- Состояние: Выполнен качественный чистовой ремонт.- Коммуникации: Подведены все инженерные сети, включая водоснабжение.- Безопасность: Установлена система пожаротушения и приточная вентиляция с выделенным вентиляционным каналом.?Локация и трафик: - Расположение прямо напротив входа метро Бухарестская .- Ежедневный пешеходный трафик в непосредственной близости составляет более 20 000 человек.- Свыше 8 700 человек проживают в ближайших жилых кварталах, и 56 000 человек в муниципальном округе.— От 9 000 до 14 000 человек — это сотрудники офисов и студенты учебных заведений, расположенных рядом.— Около 5 000 проживающих непосредственно в VALO, а также окружение из 3 700 апартаментов категорий 3* и 4*, включая международные сети.Помещение идеально подходит для:- ? Бьюти-сферы: Бьюти-коворкинг, кабинет косметолога, маникюрный кабинет или салон массажа.- ? Деловой среды: Коворкинг, классический офис или организованное рабочее место.Дополнительные преимущества для арендаторов:- Предусмотрено место для размещения наружной рекламы.- Возможны партнерские программы и рекламное продвижение совместно с комплексом VALO.Продуманная концепция расположения арендаторов обеспечивает комфортное соседство и приток клиентов. Обращаем ваше внимание, что в апарт-комплексе имеются и другие коммерческие помещения в аренду. Мы поможем подобрать площадь, идеально соответствующую вашим задачам.Коммерческое помещение 4048Номер предложения 4048

Читать полностью
    Позвонить Написать
    114 310 Р1 440 $ или 1 240
    Агент
    +7 (911) 167-52-69
    Начать чат с агентом
    Похожие предложения
    Помещение свободного назначения в Санкт-Петербург 7-я Васильевского ... - Фото 1
    Помещение свободного назначения в Санкт-Петербург 7-я Васильевского ... - Фото 2
    ПРЯМАЯ АРЕНДА ОТ СОБСТВЕННИКА Помещение 80м у метро ВасилеостровскаяСдаётся в аренду помещение свободного назначения площадью 80м на первом этаже в Василеостровском районе Санкт-Петербурга. Объект расположен в шаговой доступности от станции метро Василеостровская...
    • 1/4 эт.
    110 000 Р
    Агент
    +7 (981) Показать номер
    Посмотреть контакты
    Помещение свободного назначения в Санкт-Петербург Лиговский просп., ... - Фото 1
    Помещение свободного назначения в Санкт-Петербург Лиговский просп., ... - Фото 2
    Идеальная локация для вашего бизнеса в самом сердце города Арендуйте помещение в историческом центре Петербурга — апарт-отель UNO.Предлагаем в аренду коммерческое помещение свободного назначения в статусном апарт-отеле UNO, расположенном в исторической...
    • 1/6 эт.
    105 000 Р
    Агент
    +7 (911) Показать номер
    Посмотреть контакты
    Помещение свободного назначения в Санкт-Петербург просп. Малый ... - Фото 1
    Помещение свободного назначения в Санкт-Петербург просп. Малый ... - Фото 2
    Сдаётся в аренду помещение площадью 36.2 кв. м на фудкорте торгового центра Шкиперский Молл . Прекрасно подойдет для открытия ресторана быстрого питания или кафе-мороженого. Предлагаемая площадь уже оснащена выделенной электроэнергией, отоплением и освещением....
    • 3/6 эт.
    108 564 Р
    Агент
    +7 (981) Показать номер
    Посмотреть контакты
    Помещение свободного назначения в Санкт-Петербург Уральская ул., 19к8 ... - Фото 1
    Помещение свободного назначения в Санкт-Петербург Уральская ул., 19к8 ... - Фото 2
    Аренда помещения 108,5 кв. м без посредников под кафе-пекарню. Бизнес-центр Урал Плаза , 1 этаж, отдельный вход с улицы. Помещение находится в действующем бизнес-центре, который ежедневно открыт для сотрудников и посетителей. Более того, рядом расположены...
    • 1/6 эт.
    110 128 Р
    Агент
    +7 (981) Показать номер
    Посмотреть контакты
    Помещение свободного назначения в Санкт-Петербург пос. Шушары, ул. ... - Фото 1
    Помещение свободного назначения в Санкт-Петербург пос. Шушары, ул. ... - Фото 2
    В аренду напрямую от собственника предлагается часть углового фасадного коммерческого помещения, расположенного в окружении высотных многоквартирных домов в активной части пос.Шушары. Общий вход с пекарней Все дома - популярное место притяжения жителей...
    • 1/14 эт.
    110 000 Р
    Агент
    +7 (981) Показать номер
    Посмотреть контакты

    Не нашли подходящего объявления?

    Оставьте заявку, и наши риэлторы подберут псн в районе Санкт-Петербурга

    (0)