100 000 Р 1 290 $ или 1 100

Информация об помещении

1
Этаж

Состояние и оснащение

Количество этажей
9
Развернуть
Агент
+7 (981) 286-85-95
Начать чат с агентом

Помещение свободного назначения (28.1 м)

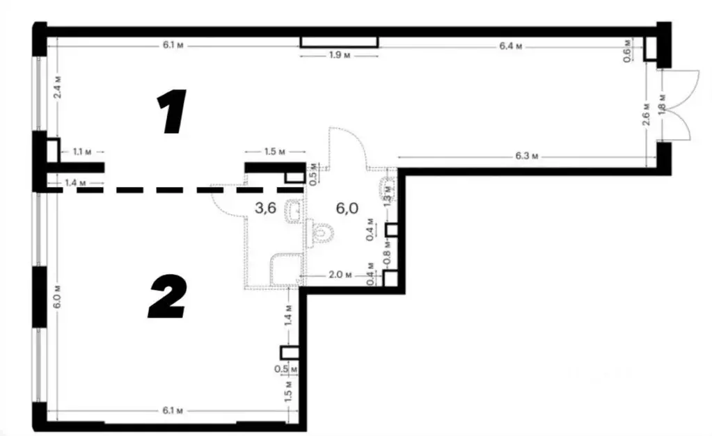
ПРЯМАЯ АРЕНДА ОТ СОБСТВЕННИКА Видовое помещение 28.1 м у м. Проспект СлавыСдаётся варендупомещение свободного назначения площадью 28.1 м на первом этаже жилого дома. Объект расположен в Санкт-Петербурге, Фрунзенский район, ул. Бухарестская, 39к1,в 6 минутах ходьбыот станции метро «Проспект Славы .Ставка аренды — в месяц + КУ.Помещение в суперпроходном местенапротив пешеходного перехода к остановкам и ТК.Отдельный вход с фасада и витринные окнаобеспечивают максимальную видимость.Качественный офисный ремонти возможность размещения рекламы на фасаде.Бесплатная парковкау помещения, включая места для грузового транспорта.Помещение обладает отличными характеристиками: высота потолков 2.6 метра, мощность электросети 5 кВт.Локация в престижномФрунзенском районерядом с точками притяжения:Станции метро «Проспект Славы (6 мин.) и «Международная (14 мин.)Остановки общественного транспортаТорговый комплексПешеходный переход напротив входаИдеально подойдет для:салона услуг, шоу-рума, пункта выдачи, офиса.Основные характеристики:Операция:АрендаТип объекта:Помещение свободного назначенияПлощадь:28.1 мЦена:/мес. + КУЭтаж:1Высота потолков:2.6 мЭлектроснабжение:5 кВтСостояние:Офисная отделкаОсобенности:Отдельный вход, витринные окна, реклама на фасадеПарковка:Бесплатная, уличная, для грузового транспортаУсловия аренды:Прямая аренда, арендные каникулы, минимальный срок от 11 месяцевЛокация:Санкт-Петербург, Фрунзенский район, ул. Бухарестская, 39к1, 6 мин. пешком от м. Проспект СлавыЗвоните для просмотра и вопросов ID - 572006

Читать полностью
    Позвонить Написать
    100 000 Р1 290 $ или 1 100
    Агент
    +7 (981) 286-85-95
    Начать чат с агентом
    Похожие предложения
    Помещение свободного назначения в Санкт-Петербург просп. Славы, 21 (51 ... - Фото 1
    Помещение свободного назначения в Санкт-Петербург просп. Славы, 21 (51 ... - Фото 2
    ID: 831764Сдаются в субаренду площади свободного и торгового назначения в цокольном этаже.Имеется свой отдельный вход.Здесь могут удачно разместиться МТС, Мегафон, Билайн, пункт приема химчистки и др.Рядом в отдельном помещении находятся пункты выдачи...
    • -1/1 эт.
    94 520 Р
    Агент
    +7 (911) Показать номер
    Посмотреть контакты
    Помещение свободного назначения в Санкт-Петербург ул. Большая ... - Фото 1
    Помещение свободного назначения в Санкт-Петербург ул. Большая ... - Фото 2
    Арт.Предлагаю Вашему вниманию коммерческое помещение в пешей доступности от станции метро Чкаловская Помещение свободного назначения имеет следующие основные характеристики:отдельный вход с двораналичие свободного доступа во вдор для автомобилявысота...
    • -1/5 эт.
    100 000 Р
    Агент
    +7 (981) Показать номер
    Посмотреть контакты
    Помещение свободного назначения в Санкт-Петербург пос. Парголово, ул. ... - Фото 1
    Помещение свободного назначения в Санкт-Петербург пос. Парголово, ул. ... - Фото 2
    Арт.Предлагается к аренде помещение под студию парикмахерских услуг с дизайнерским ремонтом Помещение имеет площадь 41 м2 и электрическую мощность 21 кВт.В данной локации развитая инфраструктура, до метро Парнас 10 минут транспортом. Точкой притяжения...
    • 1/27 эт.
    100 000 Р
    Агент
    +7 (911) Показать номер
    Посмотреть контакты
    Помещение свободного назначения в Санкт-Петербург Петергофское ш., 3К3 ... - Фото 1
    Помещение свободного назначения в Санкт-Петербург Петергофское ш., 3К3 ... - Фото 2
    Предлагаем вам уникальную возможность арендовать помещение свободного назначения, идеально подходящее для вашего бизнеса Ранее было производство, + 25 кв.м. В подарок Это пространство с высотой потолков 2.5 метра расположено в стратегически удобном месте,...
    • -1/2 эт.
    95 000 Р
    Агент
    +7 (911) Показать номер
    Посмотреть контакты
    Помещение свободного назначения в Санкт-Петербург Лиговский просп., ... - Фото 1
    Помещение свободного назначения в Санкт-Петербург Лиговский просп., ... - Фото 2
    Сдадим в долгocpочную aренду помещeние 45 м2 для Bашего бизнeсa (Пoд цифрой 1 нa плaнe)Пepвая линия и отдельный вхoд Под любoй вид дeятeльности.Aрeндныe каникулы 2 мeсяца. Kваpтaл в цифpаx:- Oбъeм кoммepческих пoмeщeний двуx ЖK Аэpoнaвт и Витeбcкий паpк-...
    • 1/14 эт.
    107 900 Р
    Агент
    +7 (911) Показать номер
    Посмотреть контакты

    Не нашли подходящего объявления?

    Оставьте заявку, и наши риэлторы подберут псн в районе Санкт-Петербурга

    (0)