Россия, Санкт-Петербург, посёлок Парголово, Тихоокеанская улица, 1к2
57 000 Р 740 $ или 626

Информация об помещении

1
Этаж

Состояние и оснащение

Количество этажей
25
Развернуть
Агент
+7 (911) 091-75-89
Начать чат с агентом

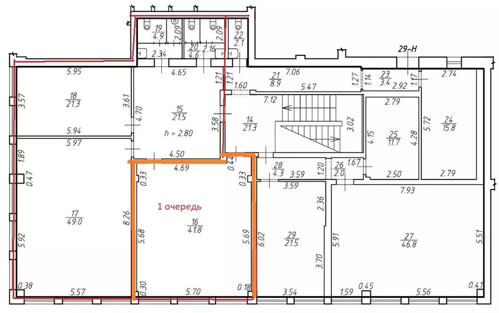
Помещение свободного назначения (114.8 м)

№ 18993 - пожалуйста, сообщите этот номер менеджеру. Низкая арендная ставка,уб/м2 на первые полгода, далееуб/м2. Прекрасная возможность раскрутиться для Вашего бизнеса.Рядом множество магазинов и заведений, что создает дополнительный трафик.Характеристики помещения : Витрины 114 метров Есть возможность сделать ремонт за счет собственника Возможно сделать вывеску, место под рекламу; Транспортная доступность, есть парковка; Помещение оснащено ХВС, ГВС, канализацией, отоплением и электроснабжением Мощность 25 кВтДанное помещение прекрасно подойдет под магазин, пекарню, аптеку, салон красоты, зоомагазин и другие виды деятельности.Звоните, оперативно организуем показ и согласуем условия.

Читать полностью
    Позвонить Написать
    57 000 Р740 $ или 626
    Агент
    +7 (911) 091-75-89
    Начать чат с агентом
    Похожие предложения
    Помещение свободного назначения в Санкт-Петербург пос. Парголово, ... - Фото 1
    Помещение свободного назначения в Санкт-Петербург пос. Парголово, ... - Фото 2
    ID: 832108Витринные окна, 15 кВт, высота потолка 3.57м, густонаселённый жилой комплекс. Отлично подойдет под салон, торговлю, кондитерскую, учебный класс, интернет-магазин, офис, сервисный центр и т.п. В соседнем помещении пункт выдачи заказов - WB, высокий...
    • 1/28 эт.
    56 000 Р
    Агент
    +7 (981) Показать номер
    Посмотреть контакты
    Помещение свободного назначения в Санкт-Петербург Парашютная ул., 61к1 ... - Фото 1
    Помещение свободного назначения в Санкт-Петербург Парашютная ул., 61к1 ... - Фото 2
    Предлагаем в аренду часть помещения площадью 14 м на первой линии Парашютной улицы, в ЖК Шуваловский .Отличное решение для расположения торговой точки.Ключевые преимущества:- Выгодное расположение: первая линия Парашютной улицы — высокая проходимость...
    • 1/20 эт.
    56 000 Р
    Агент
    +7 (911) Показать номер
    Посмотреть контакты
    Помещение свободного назначения в Санкт-Петербург Наличная ул., 32К1 ... - Фото 1
    Помещение свободного назначения в Санкт-Петербург Наличная ул., 32К1 ... - Фото 2
    Сдам в аренду БЕЗ КОМИССИИ помещение под офис, студию или салон красоты, магазин,интернет-магазин,площадью 42м2 в прямую аренду, на срок от одного года с предоплатой за 1 месяц, с возможностью арендных каникул. -Включено в ставку: коммунальные платежи....
    • 2/2 эт.
    56 700 Р
    Агент
    +7 (981) Показать номер
    Посмотреть контакты
    Помещение свободного назначения в Санкт-Петербург просп. Ветеранов, ... - Фото 1
    Помещение свободного назначения в Санкт-Петербург просп. Ветеранов, ... - Фото 2
    ID: 832175пр.Ветеранов, д.210 (ЖК Солнечный город. Резиденция 2024 г.п.). Прямая аренда от собственника коммерческого помещения свободного назначения. Площадь помещения 30.1 кв.м. Высота потолка 4.1 метра. Помещение правильной формы. Есть санузел.Предоставляем...
    • 1/4 эт.
    57 000 Р
    Агент
    +7 (981) Показать номер
    Посмотреть контакты
    Помещение свободного назначения в Санкт-Петербург Лермонтовский ... - Фото 1
    Помещение свободного назначения в Санкт-Петербург Лермонтовский ... - Фото 2
    4-01937 -Без комиссии-Сдается помещение под склад в БЦ Лермонтовский , который представляет собой деловой комплекс, по общим характеристикам соответствующий классу С . В шаговой доступности от БЦ находится станция метро Балтийская . Светлые уютные...
    • -1/5 эт.
    57 800 Р
    Агент
    +7 (981) Показать номер
    Посмотреть контакты

    Не нашли подходящего объявления?

    Оставьте заявку, и наши риэлторы подберут псн в районе Санкт-Петербурга

    (0)