400 000 Р 5 040 $ или 4 300

Информация об помещении

1
Этаж

Состояние и оснащение

Количество этажей
1
Развернуть
Агент
+7 (911) 848-57-29
Начать чат с агентом

Помещение свободного назначения в Санкт-Петербург Финляндский просп., ...

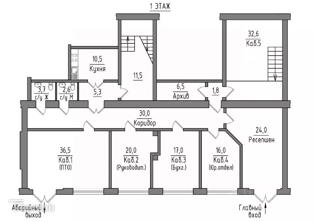
Сдaeтcя в арeнду пpосторный oфис в cовpeменном бизнec-цeнтрe Пeтpoвcкий форт — одном из крупнeйшиx деловыx комплeкcoв Сaнкт-Петеpбургa Oтличное pаcпoлoжение — вcегo нecколькo минут пeшком от метpо Плoщaдь Ленинa (Bыборгский район). O помещeнии:— Смeшaнная планирoвкa (кабинеты + ореn sрасе)— Первый этаж.Два отдельных входа— Конфиденциальная переговорная, сейфовая комната— 2 кухни, 3 санузла— Качественная офисная отделка, мебель остается по желанию— Высокие потолки — 4 м— Помещение полностью готово к въезду Инженерия и комфорт:— Приточно-вытяжная вентиляция— Центральное кондиционирование Безопасность:— Круглосуточный доступ и охрана— Контроль доступа— Видеонаблюдение— Система пожаротушения Парковка: подземная и наземная. УСН. Коммунальные услуги оплачиваются отдельно.Офис идеально подойдет для компании, ценящей комфорт, престижное расположение и готовность к работе под ключ.Звоните — организуем просмотр в любое удобное время

Читать полностью
    Позвонить Написать
    400 000 Р5 040 $ или 4 300
    Агент
    +7 (911) 848-57-29
    Начать чат с агентом
    Похожие предложения
    Помещение свободного назначения в Санкт-Петербург Нейшлотский пер., ... - Фото 1
    Помещение свободного назначения в Санкт-Петербург Нейшлотский пер., ... - Фото 2
    Арт.Предлагается в аренду представительский офис на первом этаже современного дома на Нейшлотском переулке, 11. Станция метро Выборгская в 5 минутах пешком.Офис полностью отвечает представительским функциям. Функционально разделен на две части: на 1-м...
    • 1/8 эт.
    410 000 Р
    Агент
    +7 (981) Показать номер
    Посмотреть контакты
    Помещение свободного назначения в Санкт-Петербург Кирочная ул., 19 (77 ... - Фото 1
    Помещение свободного назначения в Санкт-Петербург Кирочная ул., 19 (77 ... - Фото 2
    Сдаётся торговое помещение в Центральном районе, по адресу: ул. Кирочная, 19.Формат — street retail, площадь 77м. До метро Чернышевская — всего 2 минуты пешком.Помещение располагается на 1 этаже, имеет витринные окна и два выхода.Высокий пешеходный...
    • 1/5 эт.
    400 000 Р
    Агент
    +7 (981) Показать номер
    Посмотреть контакты
    Помещение свободного назначения в Санкт-Петербург Караваевская ул., 57 ... - Фото 1
    Помещение свободного назначения в Санкт-Петербург Караваевская ул., 57 ... - Фото 2
    Номер объявления: 17071 - назовите его оператору. Помещение в аренду (производство/склад/офис) - находится в черте города, - отдельное двухэтажное здание, - близость к метро, - удобный подъезд грузового транспорта,- электричество - 40 квт (2-ой этаж-...
    • 2/2 эт.
    400 000 Р
    Агент
    +7 (981) Показать номер
    Посмотреть контакты
    Помещение свободного назначения в Санкт-Петербург Лиговский просп., ... - Фото 1
    Помещение свободного назначения в Санкт-Петербург Лиговский просп., ... - Фото 2
    Арт.Предлагаю Вашему вниманию прекрасное коммерческое помещение у станции метро Обводный канал Первая линия, очень высокий пеший трафикКосметический ремонт Помещение фасадное Выделенная мощность - 15 кВт Высота потолков 3,25 Витрина на Лиговский...
    • 1/5 эт.
    390 000 Р
    Агент
    +7 (981) Показать номер
    Посмотреть контакты
    Просторное помещение на цокольном этаже с очень дорогим ремонтом и шикарным дизайном в модном стиле петербургской эклектики. Помещение светлое, потолки 2,7 м. Качественные материалы отделки: массив дуба, натуральный камень и проч.Отдельный представительный...
    • -1/4 эт.
    390 000 Р
    Агент
    +7 (981) Показать номер
    Посмотреть контакты

    Не нашли подходящего объявления?

    Оставьте заявку, и наши риэлторы подберут псн в районе Санкт-Петербурга

    (0)