145 000 Р 1 830 $ или 1 560

Информация об помещении

1
Этаж

Состояние и оснащение

Количество этажей
10
Развернуть
Агент
+7 (911) 277-01-42
Начать чат с агентом

Помещение свободного назначения в Санкт-Петербург Варшавская ул., 6к2 ...

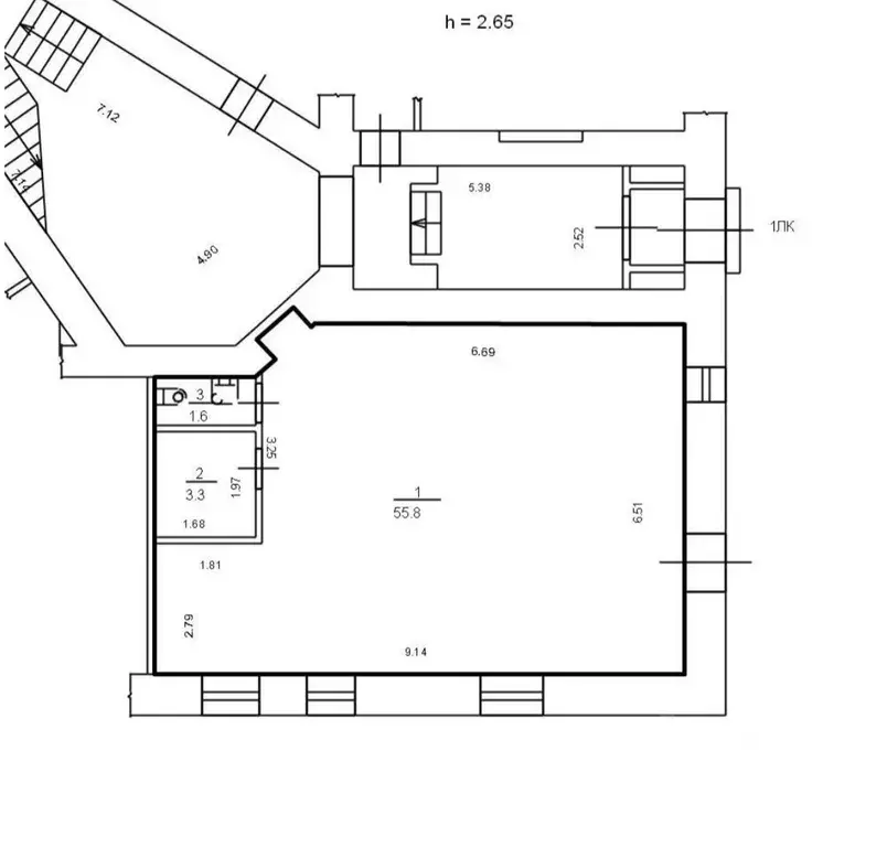
Арт.Сдаётся коммерческое помещение 74,5 м2 в долгосрочную аренду. Помещение свободного назначения, в нём можно разместить салон красоты, массажный кабинет, медицинский кабинет любого профиля, химчистку и многое другое.Помещение находится в Жилом комплексе Московский квартал , недалеко от станции метро Электросила , Многофункциональный жилой комплекс бизнес-класса вмещает в себя 1600 квартир. Территория Московского квартала благоустроена детскими игровыми и спортивными площадками, зонами отдыха и наземными автостоянками. Месторасположение новостройки выбрано удачно. Рядом гипермаркет Окей , БЦ, 3 детских сада, школа, несколько клиник, общежитие, кафе и пр. На первом этаже отведены площади под коммерческие помещения с отдельным от жилой части входами, все помещения сданы и имеют различное назначение.

Читать полностью
    Позвонить Написать
    145 000 Р1 830 $ или 1 560
    Агент
    +7 (911) 277-01-42
    Начать чат с агентом
    Похожие предложения
    Помещение свободного назначения в Санкт-Петербург, Санкт-Петербург, ... - Фото 1
    Помещение свободного назначения в Санкт-Петербург, Санкт-Петербург, ... - Фото 2
    337500 В Курортном Сестрорецке, ул.1 Мая д.3 сдается коммерческое помещение, 129,5кв.м. Идеальное место под СТОМАТОЛОГИЮ, СПОРТИВНЫЙ ЗАЛ, Пекарня с Кофейней и различные офисы....Есть электричество 26кВт. ,отопление, газ можно подключить. Высота потолков...
    • 1/5 эт.
    160 000 Р
    Агент
    +7 (981) Показать номер
    Посмотреть контакты
    Помещение свободного назначения в Санкт-Петербург ул. Мира, 25 (61 м) - Фото 1
    Помещение свободного назначения в Санкт-Петербург ул. Мира, 25 (61 м) - Фото 2
    Предлагается в аренду на длительный срок помещение свободного назначения в Петроградском районе. Вход с улицы, витринные окна, общая площадь 60.7 кв.м, первый этаж, высота потолков 2.6 м.Прямой договор с собственником.По всем интересующим вопросам звоните...
    • 1/5 эт.
    150 000 Р
    Агент
    +7 (911) Показать номер
    Посмотреть контакты
    Помещение свободного назначения в Санкт-Петербург Дрезденская ул., ... - Фото 1
    Помещение свободного назначения в Санкт-Петербург Дрезденская ул., ... - Фото 2
    Сдается в Аренду помещение 72,5Помещение расположено в заселенной локацииХВС и ГВС, 12 кВт, отдельный вход, окна на три стороны домаПредоставим время на въездАренда от собственникаБез комиссииПросмотры по предварительной договоренностиАрендная ставка...
    • 1/5 эт.
    140 000 Р
    Агент
    +7 (911) Показать номер
    Посмотреть контакты
    Помещение свободного назначения в Санкт-Петербург 11-я Красноармейская ... - Фото 1
    Помещение свободного назначения в Санкт-Петербург 11-я Красноармейская ... - Фото 2
    Сдается в аренду помещение 59 кв.мВ помещении выполнен качественный ремонтСейчас в помещении действующий салон красоты15 кВт, ХВС и ГВС, витринная окна и входная группа, вентканалАренда от собственникаБез комиссииГотовы рассмотреть долгосрочный договорАрендная...
    • 1/7 эт.
    145 000 Р
    Агент
    +7 (911) Показать номер
    Посмотреть контакты
    Помещение свободного назначения в Санкт-Петербург просп. Большой ... - Фото 1
    Помещение свободного назначения в Санкт-Петербург просп. Большой ... - Фото 2
    Арт.В двух минутах от станции метро Спортивная .В аренду помещение свободного назначения, на Большом пр.П.С.Открытый двор, вход со Ждановской наб.Нежилой фонд. Жилой дом.Общая площадь 86.8 м.кв.Кабинетная планировка - 5 изолированных кабинетов, широкий...
    • 1/2 эт.
    150 000 Р
    Агент
    +7 (981) Показать номер
    Посмотреть контакты

    Не нашли подходящего объявления?

    Оставьте заявку, и наши риэлторы подберут псн в районе Санкт-Петербурга

    (0)