945 200 Р 11 940 $ или 10 290

Информация об помещении

1
Этаж

Состояние и оснащение

Количество этажей
4
Развернуть
Агент
+7 (933) 786-94-18
Начать чат с агентом

Помещение свободного назначения в Санкт-Петербург Лесной просп., 75 ...

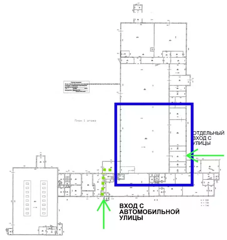
ПЛАТИМ АГЕНТАМ. Поможем с планом рассадки, ремонтом, мебелью. Многоквартирный жилой дом построен в стиле дореволюционной застройки в 1906 году. Дом - четырехэтажный кирпичный двухподъездный. Находится в районе с плотной жилой и общественно-деловой застройкой. Отличная транспортная и пешеходная доступность, развитая инфраструктура.Налоговая: 17. Лифты: Нет. Вентиляция: Естественная. Кондиционирование: Сплит-системы. Безопасность: Круглосуточный доступ, Система пожаротушений, Видеонаблюдение. Парковка: Наземная. Описание помещения: Двухуровневый блок. Помещение оснащено всеми необходимыми коммуникациями и системами.Отдельный вход с улицы. Витринные окна. Возможно размещение вывески. Планировка: смешанная. Типовой ремонт. Подходит под: медцентр, банк, учебные цели. Тип налогообложения: УСН. Лот

Читать полностью
    Позвонить Написать
    945 200 Р11 940 $ или 10 290
    Агент
    +7 (933) 786-94-18
    Начать чат с агентом
    Похожие предложения
    Помещение свободного назначения в Санкт-Петербург наб. Реки Карповки, ... - Фото 1
    Помещение свободного назначения в Санкт-Петербург наб. Реки Карповки, ... - Фото 2
    Арт.Аренда просторного помещения площадью 328 м2 на первом этаже современного, нoвoго жилого кoмплекcа. Петроградский район, наб. Реки Карповки 31к2, ст. метро Петроградская, Чкаловская, Горьковская.Общая площадь - 328 м2 (возможно разделение площади...
    • 1/3 эт.
    951 200 Р
    Агент
    +7 (981) Показать номер
    Посмотреть контакты
    Помещение свободного назначения в Санкт-Петербург Лиговский просп., ... - Фото 1
    ПЛАТИМ АГЕНТАМ. Поможем с планом рассадки, ремонтом, мебелью. Бизнес-центр класса А во Фрунзенском районе Санкт-Петербурга. Здание выполнено в стиле современной эстетики.Налоговая: 27. Лифты: Есть. Вентиляция: Приточно-вытяжная. Кондиционирование: Центральное....
    • 1/8 эт.
    950 000 Р
    Агент
    +7 (933) Показать номер
    Посмотреть контакты
    Помещение свободного назначения в Санкт-Петербург, Санкт-Петербург, ... - Фото 1
    Помещение свободного назначения в Санкт-Петербург, Санкт-Петербург, ... - Фото 2
    Арт.Предлагаю Вашему вниманию коммерческое помещение в городе Кронштадт на улице АммерманаПомещение свободного назначения расположено на первом этаже,имеет следующие характеристики:2 входа с фасада, 2 с дворамножество оконвысота потолка 2.9450 кВтмногофункциональная...
    • 1/3 эт.
    943 500 Р
    Агент
    +7 (981) Показать номер
    Посмотреть контакты
    Помещение свободного назначения в Санкт-Петербург, Санкт-Петербург, ... - Фото 1
    Помещение свободного назначения в Санкт-Петербург, Санкт-Петербург, ... - Фото 2
    Бизнес площадка А9 (Автомобильная ул. 9) — идеальное место для вашего бизнеса Мы предлагаем вам уникальную возможность арендовать современное помещение на первом этаже с отдельным входом с улицы и 6 метровыми потолками между двумя динамично развивающимися...
    • 1/1 эт.
    954 940 Р
    Агент
    +7 (911) Показать номер
    Посмотреть контакты
    Отдельно стоящее здание, расположенное в Приморском районе Санкт-Петербурга, в непосредственной близости от Лахта Центра, ближайшая ст.метро Беговаяаренда, 1-й этаж, 560м2, под отделку, все городские коммуникации, 150 кВт, есть вент-канал , есть газ...
    • 1/3 эт.
    952 000 Р
    Агент
    +7 (981) Показать номер
    Посмотреть контакты

    Не нашли подходящего объявления?

    Оставьте заявку, и наши риэлторы подберут псн в районе Санкт-Петербурга

    (0)