Россия, Санкт-Петербург, пос. Шушары, просп. Старорусский, 3к2
105 000 Р 1 290 $ или 1 120

Информация об помещении

1
Этаж

Состояние и оснащение

Количество этажей
12
Развернуть
Агент
+7 (981) 174-93-04
Начать чат с агентом

Помещение свободного назначения в Санкт-Петербург пос. Шушары, просп. ...

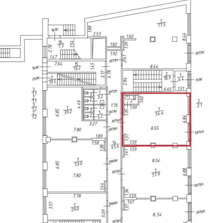
ID: 832236Помещение в ЖК Аэросити 5 с двумя отдельными входами с улицы, напротив школа, в 100м., в соседнем здании открывается новая Городская поликлиника 60. Панорамные окна, высота потолков 3,3м., 1 мокрая точка (ХВС и ГВС), 10кВт (возможно увеличение), парковка рядом с помещением. Черновая отделка (возможность ремонта под свои варианты коммерческого использования), арендные каникулы на период ремонта. Подойдет для: аптеки, медицинской деятельности, стоматологии, салона красоты, парикмахерской, барбершопа, студии маникюра, химчистки, ателье, пунктов выдачи, магазина цветов, фруктов, сладостей, зоомагазина, салона груминга и т.д. Высокий пешеходный трафик: помещение находится на пути из детского сада, двух школ и поликлиники. Рядом остановки скоростного трамвая (от ст.м.Купчино).

Читать полностью
    Позвонить Написать
    105 000 Р1 290 $ или 1 120
    Агент
    +7 (981) 174-93-04
    Начать чат с агентом
    Похожие предложения
    Помещение свободного назначения в Санкт-Петербург пос. Шушары, просп. ... - Фото 1
    Помещение свободного назначения в Санкт-Петербург пос. Шушары, просп. ... - Фото 2
    ID: 832273Сдается помещение свободного назначения под любой вид деятельности Помещение имеет два отдельных входа и два санузла, можно использовать под двух арендаторов В 2026 году напротив входа в помещение будет располагаться трамвайная линия, планируется...
    • 1/24 эт.
    120 000 Р
    Агент
    +7 (911) Показать номер
    Посмотреть контакты
    Помещение свободного назначения в Санкт-Петербург пос. Шушары, ул. ... - Фото 1
    Помещение свободного назначения в Санкт-Петербург пос. Шушары, ул. ... - Фото 2
    ID: 831581Сдается в аренду помещение с отделкой от собственника. Плитка на полу, сантехника, разводка электрики, стены крашенные, потолок - бетон - покрашен. Помещение идеально подойдет под: общепит, кофейню, магазин, офис, шоурум, аптеку, студию красоты...
    • 1/14 эт.
    100 000 Р
    Агент
    +7 (981) Показать номер
    Посмотреть контакты
    Помещение свободного назначения в Санкт-Петербург ул. Димитрова, 2 (77 ... - Фото 1
    Помещение свободного назначения в Санкт-Петербург ул. Димитрова, 2 (77 ... - Фото 2
    Арт.Сдается в аренду торгово-офисное помещение по адресу ул. Димитрова 2Характеристики помещения:общая площадь - 77,2 м21 этажотдельный входа с улицыэл. мощность 15 кВтвысота потолков 4 мсвободная планировка (все перегородки можно демонтировать)место...
    • 1/16 эт.
    120 000 Р
    Агент
    +7 (911) Показать номер
    Посмотреть контакты
    Помещение свободного назначения в Санкт-Петербург Литейный просп., 35 ... - Фото 1
    Помещение свободного назначения в Санкт-Петербург Литейный просп., 35 ... - Фото 2
    Сдается светлое, полностью готовое к работе помещение с отдельным входом со двора. Идеальный вариант для офиса, шоурума, кабинета или сферы услуг. О ПОМЕЩЕНИИ: Площадь: 61 м (удобная открытая планировка под ваши задачи). Вход: Отдельный, со двора. Состояние:...
    • 1/5 эт.
    110 000 Р
    Агент
    +7 (911) Показать номер
    Посмотреть контакты
    Помещение свободного назначения в Санкт-Петербург ул. Губина, 20 (70 ... - Фото 1
    Помещение свободного назначения в Санкт-Петербург ул. Губина, 20 (70 ... - Фото 2
    Арт.. Коммерческое помещение площадью 70 квадратных метров идеально подойдет для реализации ваших бизнес-проектов.Расположено оно на первом этаже нового жилого дома Дом на Барминской , обеспечивающего высокий уровень проходимости потенциальных клиентов.Особое...
    • 1/7 эт.
    110 000 Р
    Агент
    +7 (987) Показать номер
    Посмотреть контакты

    Не нашли подходящего объявления?

    Оставьте заявку, и наши риэлторы подберут псн в районе Санкт-Петербурга

    (0)