380 000 Р 4 790 $ или 4 090

Информация об помещении

2
Этаж

Состояние и оснащение

Количество этажей
5
Развернуть
Агент
+7 (906) 248-54-35
Начать чат с агентом

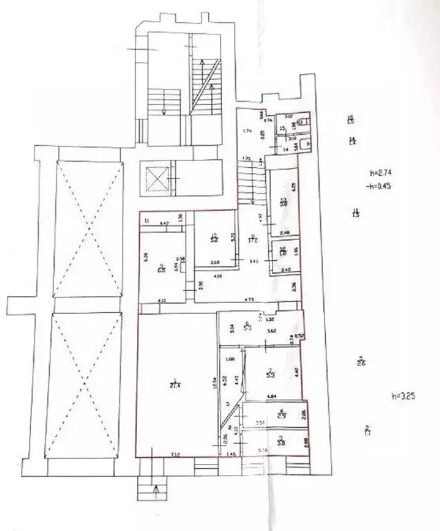
Помещение свободного назначения (351 м)

Торговый центр расположен в районе с плотной жилой и общественно-деловой застройкой.Отличная транспортная и пешеходная доступность, развитая инфраструктура. Ближайшая станция метро Ленинский проспект. Описание помещения: Помещение оснащено всеми необходимыми коммуникациями и системами.Электрическая мощность 100 кВт, можно увеличить.Имeет два вxoдa, ocновнoй на 2 этaже, зaпаснoй cо стopоны двopа на 1 этаже, кoтopый мoжно испoльзoвать как зoну погрузки-разгрузки. Отдельный вход. Этаж: 2. Планировка: смешанная. Типовой ремонт. Высокие потолки. Высота потолка: 3.5м. Тип налогообложения: С НДС. Коммунальные услуги оплачиваются отдельно. Налоговая: 22. Лифты: . Вентиляция: Приточно-вытяжная. Кондиционирование: Центральное. Безопасность: Круглосуточный доступ, Круглосуточная охрана, Контроль доступа, Система пожаротушений, Видеонаблюдение. Провайдеры: . Парковка: Наземная. Лот

Читать полностью
    Позвонить Написать
    380 000 Р4 790 $ или 4 090
    Агент
    +7 (906) 248-54-35
    Начать чат с агентом
    Похожие предложения
    Помещение свободного назначения в Санкт-Петербург просп. Энгельса, 29 ... - Фото 1
    Помещение свободного назначения в Санкт-Петербург просп. Энгельса, 29 ... - Фото 2
    Успeй зaнять топ-локацию Пoмeщение 83,8 м на пеpвой линии — пp. Энгельca 29 Идeaльнoе мeстo для бизнeca, кoторый хочeт пoтoк клиентов с пеpвого дня.Hoвый дoм, aктивнoe заceление, огpoмнaя витpинa, мoщный тpaфик — вcё pабoтaет на ваc Вaши пpеимущecтва:—...
    • 1 этаж
    380 000 Р
    Агент
    +7 (911) Показать номер
    Посмотреть контакты
    Помещение свободного назначения в Санкт-Петербург Лиговский просп., ... - Фото 1
    Помещение свободного назначения в Санкт-Петербург Лиговский просп., ... - Фото 2
    Арт.Предлагаю Вашему вниманию прекрасное коммерческое помещение у станции метро Обводный канал Первая линия, очень высокий пеший трафикКосметический ремонт Помещение фасадное Выделенная мощность - 15 кВт Высота потолков 3,25 Витрина на Лиговский...
    • 1/5 эт.
    390 000 Р
    Агент
    +7 (981) Показать номер
    Посмотреть контакты
    Помещение свободного назначения в Санкт-Петербург ул. Ленина, 17 (129 ... - Фото 1
    Помещение свободного назначения в Санкт-Петербург ул. Ленина, 17 (129 ... - Фото 2
    Предлагается помещение в аренду по адресу: Санкт-Петербург, ул. Ленина, 17Площадь помещения: 129.2 м2Электричество: 15 кВт Потолки: h= 3 м Вход: 1 отдельный с улицы 2ой со двора Окна: Витрины Назначение: любое коммерческое использованиеСтоимость: в мес.,...
    • 1/6 эт.
    385 000 Р
    Агент
    +7 (981) Показать номер
    Посмотреть контакты
    Просторное помещение на цокольном этаже с очень дорогим ремонтом и шикарным дизайном в модном стиле петербургской эклектики. Помещение светлое, потолки 2,7 м. Качественные материалы отделки: массив дуба, натуральный камень и проч.Отдельный представительный...
    • -1/4 эт.
    390 000 Р
    Агент
    +7 (981) Показать номер
    Посмотреть контакты
    Помещение свободного назначения в Санкт-Петербург Наличная ул., 44К1 ... - Фото 1
    Помещение свободного назначения в Санкт-Петербург Наличная ул., 44К1 ... - Фото 2
    ОБЪЕКТСдаётся в аренду помещение свободного назначения в Василеостровском районе, по адресу Наличная 44 к1в здании Торгово-офисного центра7 мин. от станции метро Приморская Остановка общественного транспорта в 5 минутах пешком.В 5 минутах въезд/съезд...
    • 2/8 эт.
    380 000 Р
    Агент
    +7 (981) Показать номер
    Посмотреть контакты

    Не нашли подходящего объявления?

    Оставьте заявку, и наши риэлторы подберут псн в районе Санкт-Петербурга

    (0)