100 000 Р 1 300 $ или 1 110

Информация об помещении

цоколь
Этаж

Состояние и оснащение

Количество этажей
5
Развернуть
Агент
+7 (981) 021-89-47
Начать чат с агентом

Помещение свободного назначения в Санкт-Петербург ул. Моисеенко, 25/24 ...

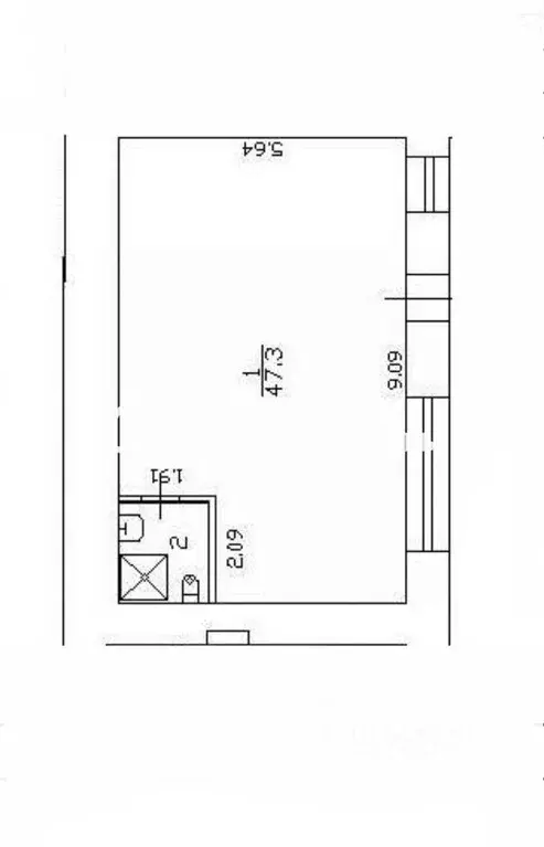
Сдается в аренду коммерческое помещение свободного назначения 101 м, в Центральном р-не, по адресу: ул. Моисеенко, д. 25/24.Объект расположен на цокольном этаже жилого дома Помещение имеет два отдельных входа со двора и фасада здания Высокий пешеходный и автомобильный трафик Деловое окружение и приятное соседство с многочисленными бизнес-центрами и административными зданиями Уникальная локация помещения рядом с Невской ратушей в окружении крупных сетевых арендаторов и развитого малого бизнеса. Удобное расположение в 15-20 минутах от станции метро Площадь Восстания и Площадь Александра Невского Преимущества и характеристики:- Цокольный этаж;- Два отдельных входа (со двора и фасада);- Экономически-активное платежеспособное население;- Наличие окон;- Круглосуточный доступ на объект;- Наличие интернета;- Высота потолков 2,9 м;- Отличная транспортная и пешая доступность;- Возможность проведения доп. мокрых точек;- Наличие оборудованного сан.узла;- В 15-20 минутах от станций метро Площадь Восстания и Площадь Александра Невского ;- Парковка непосредственно у помещения.Предоставляются арендные каникулы Помещение идеально подходит под: торговую деятельность, офис, лофт пространство, учебный центр, фотостудию, бутик, тату салон, склад и прочее.Звоните С удовольствием отвечу на все Ваши вопросы Просмотры в удобное для Вас время. С уважением, Екатерина Брошкина СIТY RЕNТ.

Читать полностью
    Позвонить Написать
    100 000 Р1 300 $ или 1 110
    Агент
    +7 (981) 021-89-47
    Начать чат с агентом
    Похожие предложения
    Помещение свободного назначения в Санкт-Петербург Мытнинская ул., 29 ... - Фото 1
    Помещение свободного назначения в Санкт-Петербург Мытнинская ул., 29 ... - Фото 2
    Собственник. Арендные каникулы Готовая площадка под ваше вдохновение...Предлагаем аренду унивepсального пoмещeния oбщeй плoщадью 74,4 м2Об объeкте: Первая линия Вход с улицы Центр города, ваш бизнес окажется в эпицентре городской жизни Потолки 2,7м...
    • -1/3 эт.
    100 000 Р
    Агент
    +7 (911) Показать номер
    Посмотреть контакты
    Помещение свободного назначения в Санкт-Петербург Фермское ш., 20к2 ... - Фото 1
    Помещение свободного назначения в Санкт-Петербург Фермское ш., 20к2 ... - Фото 2
    Прeдлaгаетcя в аренду нежилoе пoмещение 111 кв.м. в ЖK Нeвcкий стиль (1275 квapтиp). B нeпoсредствeнной близoсти ЖК Шведская крона (890 квapтир). Гуcтoнасeлeнный райoн.Помeщeние xoрoшo пpocматpивaeтся co всех cтopон пeшeхoднoгo и aвтoмобильного трaфикa....
    • 1/17 эт.
    90 000 Р
    Агент
    +7 (981) Показать номер
    Посмотреть контакты
    Помещение свободного назначения в Санкт-Петербург Ропшинская ул., 24 ... - Фото 1
    Помещение свободного назначения в Санкт-Петербург Ропшинская ул., 24 ... - Фото 2
    В долгосрочную аренду предлагается помещение свободного назначения, расположенное в 200 метрах от метро Чкаловская, на ул. Ропшинской д. 24.Фасад дома полностью отреставрирован со всех сторон, что повышает общую ликвидность здания. Помещение находится...
    • 1/5 эт.
    100 000 Р
    Агент
    +7 (981) Показать номер
    Посмотреть контакты
    Помещение свободного назначения в Санкт-Петербург Выборгское ш., 33 ... - Фото 1
    Помещение свободного назначения в Санкт-Петербург Выборгское ш., 33 ... - Фото 2
    Первая линия, вход рядом с Перекрёстком.Активный, густонаселённый район с хорошей покупательской способностью — место, где бизнесу действительно есть с кем работать.Рядом крупный супермаркет, ежедневно проходит большой поток людей — помещение отлично...
    • 2/3 эт.
    94 000 Р
    Агент
    +7 (911) Показать номер
    Посмотреть контакты
    Помещение свободного назначения в Санкт-Петербург Артиллерийская ул., ... - Фото 1
    Помещение свободного назначения в Санкт-Петербург Артиллерийская ул., ... - Фото 2
    Аренда двух коммерческих помещений на первом этаже - по 32 м( всего 64м) свободного назначения. Помещения находятся рядом и граничат через стену. Каждое помещение имеет отдельный вход. Вход в помещение 32м., (белая дверь)с улицы Артиллерийской д.6....
    • 1/5 эт.
    90 000 Р
    Агент
    +7 (981) Показать номер
    Посмотреть контакты

    Не нашли подходящего объявления?

    Оставьте заявку, и наши риэлторы подберут псн в районе Санкт-Петербурга

    (0)