120 800 Р 1 480 $ или 1 290

Информация об помещении

1
Этаж

Состояние и оснащение

Количество этажей
13
Развернуть
Агент
+7 (981) 899-74-35
Начать чат с агентом

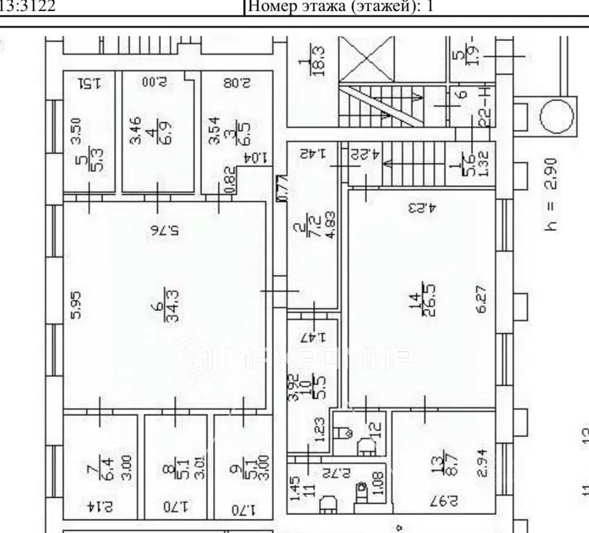
Помещение свободного назначения в Санкт-Петербург Планерная ул., 93 ...

Жилом комплекс комфорт- класса New Time на Планерной улице в тихой и живописной части Приморского района. New Time находится фактически у леса, однако при этом обладает всей необходимой инфраструктурой для комфортной городской жизни.Налоговая: 26. Лифты: Есть. Вентиляция: . Кондиционирование: . Безопасность: Контроль доступа. Парковка: Наземная. Описание помещения: Помещение свободного назначения, не рассматривают только под пункты выдачи.Отдельный вход с улицы. Витринные окна. Собственный санузел в блоке. Электрическая мощность 14 кВт.Планировка: кабинетная. Типовой ремонт. Тип налогообложения: УСН. Лот

Читать полностью
    Позвонить Написать
    120 800 Р1 480 $ или 1 290
    Агент
    +7 (981) 899-74-35
    Начать чат с агентом
    Похожие предложения
    Жилом комплекс комфорт- класса New Time на Планерной улице в тихой и живописной части Приморского района. New Time находится фактически у леса, однако при этом обладает всей необходимой инфраструктурой для комфортной городской жизни.Налоговая: 26. Лифты:...
    • 1/13 эт.
    115 605 Р
    Агент
    +7 (981) Показать номер
    Посмотреть контакты
    Помещение свободного назначения в Санкт-Петербург Комендантский ... - Фото 1
    Помещение свободного назначения в Санкт-Петербург Комендантский ... - Фото 2
    В аренду напрямую от собственника (ООО на УСН) предлагается коммерческое помещение площадью 48 м2 (оранжевый контур на плане) в ТЦ, расположенном в обжитом очень густонаселенном микрорайоне Чистое небо, в зоне супер-активного пешеходного трафика. В ТЦ...
    • 1/6 эт.
    120 000 Р
    Агент
    +7 (981) Показать номер
    Посмотреть контакты
    Помещение свободного назначения (70 м) - Фото 1
    Помещение свободного назначения (70 м) - Фото 2
    Аренда помещения рядом с самокатомОсновные характеристики:• Площадь:70 м2;• Мощность электросети: 10 кВт (возможно увеличение);• 1 этажСтоимость, условия сделки:• Арендная ставка в месяц• Обеспечительный платёж -100 • Срок аренды от 11 мес.Описание:•...
    • 1/11 эт.
    126 000 Р
    Агент
    +7 (905) Показать номер
    Посмотреть контакты
    Помещение свободного назначения в Санкт-Петербург ул. Ильюшина, 5к1 ... - Фото 1
    Помещение свободного назначения в Санкт-Петербург ул. Ильюшина, 5к1 ... - Фото 2
    Арт.Павильон находится в удачном расположение, в близи точки притяжения Торгового центра, в старом состоявшемся районе. 18м2 возможно деление. Мощность 40 кВт. Подойдет под любой вид деятельности. Хорошая видимость павильона, хорошая проходимость, хорошая...
    • 1/1 эт.
    130 000 Р
    Агент
    +7 (981) Показать номер
    Посмотреть контакты
    Помещение свободного назначения в Санкт-Петербург ул. Решетникова, 13 ... - Фото 1
    Помещение свободного назначения в Санкт-Петербург ул. Решетникова, 13 ... - Фото 2
    Арт.Без комиссии 500м до метро Электросила.Сдается коммерческое помещение . Один отдельный вход с улицы и один со двора. Окна выходят на 2 стороны, на улицу и во двор. Электричество , водоснабжение.Ремонт возможно сделать под арендатора ( по согласованию)Помещение...
    • 1/6 эт.
    130 000 Р
    Агент
    +7 (911) Показать номер
    Посмотреть контакты

    Не нашли подходящего объявления?

    Оставьте заявку, и наши риэлторы подберут псн в районе Санкт-Петербурга

    (0)