484 358 Р 5 980 $ или 5 160

Информация об помещении

2
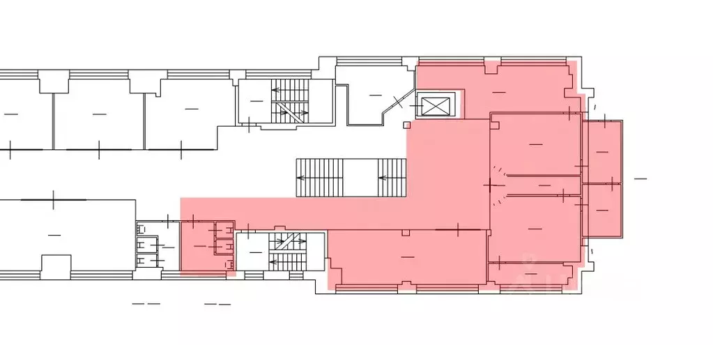
Этаж

Состояние и оснащение

Количество этажей
2
Развернуть
Агент
+7 (981) 195-17-16
Начать чат с агентом

Помещение свободного назначения в Санкт-Петербург Думская ул., 4 (242 ...

Арт.БЕЗ КОМИССИИ ДЛЯ АРЕНДАТОРАПредлагается в аренду свободная площадь, в историческом центре Санкт-Петербурга- Помещение 242,3м на первой линии- Этаж: 2- Высота потолков: 3,66 м- Отдельный вход: с улицы- Отделка: чистовая- Мощность: по запросу- Доступ 24/7- Напольное покрытие: кафель и линолеумПРЯМОЙ ДОГОВОР С СОБСТВЕННИКОМПоказы в удобное время, по договоренности.Обращайтесь, отвечу на ваши вопросы

Читать полностью
    Позвонить Написать
    484 358 Р5 980 $ или 5 160
    Агент
    +7 (981) 195-17-16
    Начать чат с агентом
    Похожие предложения
    Помещение свободного назначения в Санкт-Петербург Думская ул., 4 (241 ... - Фото 1
    Помещение свободного назначения в Санкт-Петербург Думская ул., 4 (241 ... - Фото 2
    Арт.БЕЗ КОМИССИИ ДЛЯ АРЕНДАТОРАПредлагается в аренду свободная площадь, в историческом центре Санкт-Петербурга- Помещение 241,2м на первой линии- Этаж: 2- Высота потолков: 3,66 м- Отдельный вход: с улицы- Отделка: чистовая- Мощность: по запросу- Доступ...
    • 2/2 эт.
    482 158 Р
    Агент
    +7 (981) Показать номер
    Посмотреть контакты
    Помещение свободного назначения в Санкт-Петербург Думская ул., 4 (240 ... - Фото 1
    Помещение свободного назначения в Санкт-Петербург Думская ул., 4 (240 ... - Фото 2
    Без комиссии Аренда от собственника универсального помещения площадью 240,1 кв.м. на 2 этаже ТК Перинные ряды . Подойдёт для размещения клиентского офиса, современного магазина одежды, брендового бутика, торгового пространства премиум-класса и т.п.Идеальное...
    • 2/4 эт.
    479 960 Р
    Агент
    +7 (911) Показать номер
    Посмотреть контакты
    Помещение свободного назначения в Санкт-Петербург ул. Опочинина, 29 ... - Фото 1
    Помещение свободного назначения в Санкт-Петербург ул. Опочинина, 29 ... - Фото 2
    ID: 832126Сдается в аренду коммерческое помещение в Василеостровскомайоне . Расположено на углу улицы Опочинина и Шкиперского протока. Район густо населен, отличный пешеходный трафик. Общая сдаваемая площадь 254,4 метра. Возможно сдача в аренду части...
    • 1/7 эт.
    490 000 Р
    Агент
    +7 (981) Показать номер
    Посмотреть контакты
    Помещение свободного назначения в Санкт-Петербург ул. Льва Толстого, 5 ... - Фото 1
    Помещение свободного назначения в Санкт-Петербург ул. Льва Толстого, 5 ... - Фото 2
    ПЕРВАЯ ЛИНИЯ на Петроградской Субаренда коммерческого помещения 98м на первой линии в престижном Петроградском районе. Всего 2 минуты пешком от метро Петроградская . Идеальная видимость и высокая проходимость.Помещение обладает чистовой отделкой и отдельным...
    • 1/4 эт.
    480 000 Р
    Агент
    +7 (981) Показать номер
    Посмотреть контакты
    Помещение свободного назначения в Санкт-Петербург наб. Крюкова Канала, ... - Фото 1
    Помещение свободного назначения в Санкт-Петербург наб. Крюкова Канала, ... - Фото 2
    Предлагаем АРЕНДОВАТЬ КОММЕРЧЕСКОЕ ПОМЕЩЕНИЕпо адресу: г. Санкт-Петербург, наб. Крюкова канала, 7/2-Площадь 169,7 кв.м.-Высота потолка 3,02 м. -Эл. мощность 72,2 кВт.-Витринные окна-Приточно-вытяжная система/свечка-2 ВходаМожно использовать под:...
    • 1/5 эт.
    475 160 Р
    Агент
    +7 (981) Показать номер
    Посмотреть контакты

    Не нашли подходящего объявления?

    Оставьте заявку, и наши риэлторы подберут псн в районе Санкт-Петербурга

    (0)